Staffordshire Street, Peckham
TO

Staffordshire Street, Peckham

By Tony Alan Estates

£ 699,950

Reviews

3 out of 5 stars

Tony Alan Estates says ..

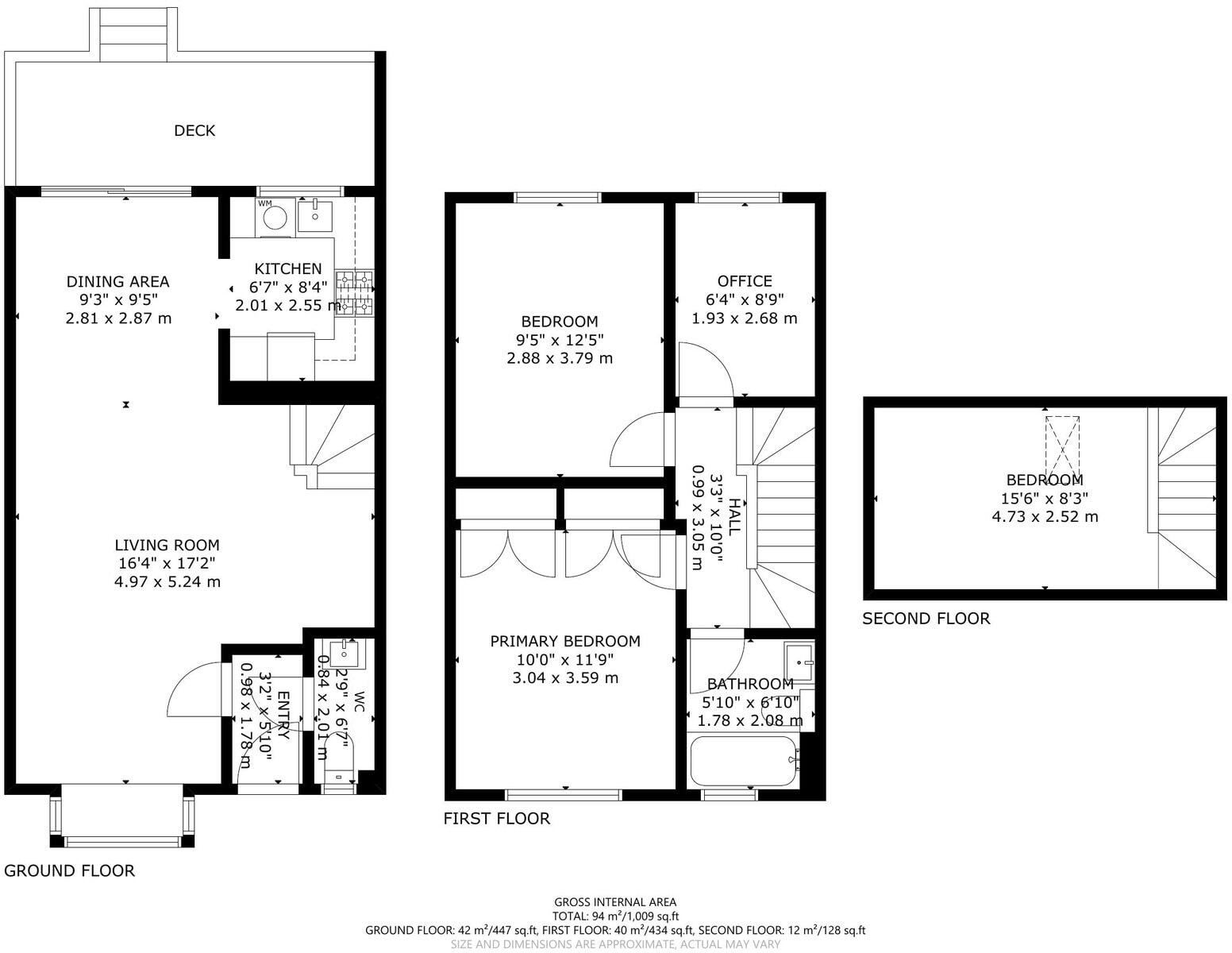
Tony Alan Estates is proud to offer this Charming 3-Bedroom End-of-Terrace with Garden in the Heart of Peckham. Located on the ever-popular Staffordshire Street, this well-presented house offers a fantastic opportunity for families, professionals, or investors seeking space, light and convenience...

Property Oracle says ..

This is a three-bedroom end-of-terrace house located on Staffordshire Street, Peckham. The property is listed with Tony Alan Estates for £699,950. It features one bathroom and a garden. The property is located in a convenient location, close to schools and transportation links. While the property is in reasonable condition, it could benefit from some modernisation. The garden is a good size and provides outdoor space. The price is reasonable for the location and property type.

Therefore, we give this property 6 / 10. *Disclaimer: This is our option and does constitute a recommendation or financial advice. Do your own research. *

Price
6
Condition
6
Location
7
Land
7
Bedrooms
3
Bathrooms
1
Sqft (est)
950.24

The heatmap indicates the level of crime in the area. The color of the heatmap indicates the crime severity and recency.

Metrics Year-on-Year

Average area value
448,750.00 £
Increased by 43.15 %
from 313,484.00 £
Est sale value
332,584.00 £
Increased by 2.64 %
from 324,031.84 £
Average area rental value
1,650.00 £/mo
Increased by 60.98 %
from 1,025.00 £/mo
Est letting value
950.24 £/mo
Unchanged by 0.00 %
from 950.24 £/mo
Est rental Yield
4.41 %
Increased by 12.50 %
from 3.92 %
Crime Rate
8.00 %
Unchanged by 0.00 %
from 8.00 %

Agent Activity

  • Tony Alan Estates created the listing.

Nearby Schools

NameTypeOfstedDistance
Nell Gwynn Nursery SchoolLocal Authority Nursery SchoolGood0.09 KM
Harris Primary Academy Peckham ParkAcademy ConverterGood0.20 KM
East Peckham Children'S CentreChildren's Centre0.21 KM
John Donne Primary SchoolAcademy Converter0.50 KM
St Francis Rc Primary SchoolVoluntary Aided SchoolGood0.58 KM

Images

External Kitchen Living Room Bathroom Bedroom 2 Living Room 3 Terrace e Terrace Study Room b Bedroom A Loft Bedroom b Living Room 6 Garden b Terrace d Living Room 2 Terrace c Staircase entrance b Garden c Garden a Loft Bedroom c Bedroom 1c Bedroom 1b Bedroom 2d Bedroom 2c Bedroom 2b Bedroom 2a Bathroom 2 Hallway Study Room Loft Bedroom Garden Bedroom Living Room 7 External 2 Toilet a Toilet Terrace f entrance Living Room 5 Living Room 4 Kitchen c Kitchen b Staircase b

Nearby Streets

NameAverage PriceAverage SqftDistance
McKerrell Road £ 259,00000.00 KM
Bull Yard £ 000.00 KM
Woodland Trail £ 575,00000.00 KM
Carlton Grove £ 350,00000.00 KM
Bishop Wilfred Wood Close £ 000.00 KM

Nearby Transport

NameNLCTLCDistance
Peckham Rye5423PMR0.72 KM
Queens Road Peckham5424QRP0.90 KM
Nunhead5068NHD1.71 KM
South Bermondsey5425SBM1.87 KM
East Dulwich5358EDW2.27 KM

Nearby Listings

AddressPriceTypeScoreDistance
Staffordshire Street, Peckham £ 699,950BUY6 / 100.00 KM
Staffordshire Street, London £ 699,950BUY6 / 100.00 KM
Staffordshire Street, London, SE15 £ 650,000BUY6 / 100.04 KM
Goldsmith Road, London, SE15 £ 1,195,000BUY7 / 100.05 KM
Marmont Road, Peckham, London, SE15 £ 799,995BUY7 / 100.07 KM

Nearby Properties

AddressPriceDistance
9 Staffordshire Street £ 220,0000.00 KM
29 Staffordshire Street £ 245,0000.00 KM
11 Staffordshire Street £ 35,0000.00 KM
54 Staffordshire Street £ 670,0000.00 KM
31 Staffordshire Street £ 173,0000.03 KM