PU
Fountain Street, Birkenhead, Wirral, Merseyside, CH42
By Pure Investor
£ 200,000
Reviews
3 out of 5 stars
Pure Investor says ..
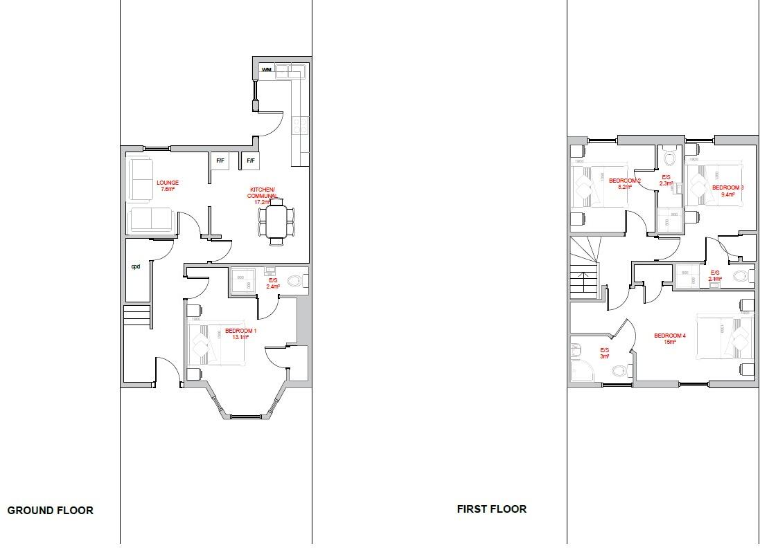
Buy-to-let HMO for sale | Expected annual rental income of £24,096 | Gross yield of 12% | 4 bedrooms all with ensuites | Freehold property
Property Oracle says ..
Therefore, we give this property 7 / 10. *Disclaimer: This is our option and does constitute a recommendation or financial advice. Do your own research. *
- Price
- 6
- Condition
- 8
- Location
- 7
- Land
- 0
- Bedrooms
- 4
- Bathrooms
- 4
The heatmap indicates the level of crime in the area. The color of the heatmap indicates the crime severity and recency.
Metrics Year-on-Year
- Average area value
- 139,167.00 £Increased by 21.05 %
- Average area rental value
- 813.00 £/moIncreased by 16.81 %
- Est rental Yield
- 7.01 %Decreased by 3.44 %
- Crime Rate
- 7.00 %Unchanged by 0.00 %
from 114,969.00 £
from 696.00 £/mo
from 7.26 %
from 7.00 %
Agent Activity
Pure Investor created the listing.
Nearby Schools
| Name | Type | Ofsted | Distance |
|---|---|---|---|
| Woodchurch Road Primary School | Community School | Requires improvement | 0.65 KM |
| Devonshire Park Primary School | Community School | Good | 0.68 KM |
| Birkenhead Christ Church Cofe Primary School | Voluntary Aided School | Good | 0.69 KM |
| Mersey Park Primary School | Community School | Outstanding | 0.69 KM |
| St Werburgh'S Catholic Primary School | Voluntary Aided School | Requires improvement | 0.74 KM |
Images
Nearby Streets
| Name | Average Price | Average Sqft | Distance |
|---|---|---|---|
| Heathbank Road | £ 0 | 0 | 0.00 KM |
| North Road | £ 95,000 | 0 | 0.00 KM |
| Seaton Road | £ 0 | 0 | 0.00 KM |
| Greenway Road | £ 85,000 | 0 | 0.00 KM |
| Hawthorne Road | £ 220,000 | 0 | 0.00 KM |
Nearby Transport
| Name | NLC | TLC | Distance |
|---|---|---|---|
| Birkenhead Central | 2217 | BKC | 1.42 KM |
| Green Lane | 2218 | GNL | 1.57 KM |
| Conway Park | 3624 | CNP | 1.75 KM |
| Birkenhead Park | 2220 | BKP | 2.22 KM |
| Rock Ferry | 2189 | RFY | 2.27 KM |
Nearby Listings
| Address | Price | Type | Score | Distance |
|---|---|---|---|---|
| Fountain Street, BIRKENHEAD, Merseyside, CH42 | £ 175,000 | BUY | 5 / 10 | 0.00 KM |
| Fountain Street, Birkenhead, Wirral, Merseyside, CH42 | £ 200,000 | BUY | 7 / 10 | 0.00 KM |
| Fountain Street, Birkenhead | £ 175,000 | BUY | 6 / 10 | 0.00 KM |
| Fountain Street, Birkenhead, CH41 5 | £ 75,000 | BUY | 5 / 10 | 0.01 KM |
| Fountain Street, Birkenhead, CH41 5 | £ 125,000 | BUY | 5 / 10 | 0.01 KM |
Nearby Properties
| Address | Price | Distance |
|---|---|---|
| 48 Fountain Street | £ 120,500 | 0.00 KM |
| 10 Fountain Street | £ 82,500 | 0.00 KM |
| 64 Fountain Street | £ 115,000 | 0.00 KM |
| 62 Fountain Street | £ 155,000 | 0.00 KM |
| 18 Fountain Street | £ 39,500 | 0.00 KM |