A J Homes says ..
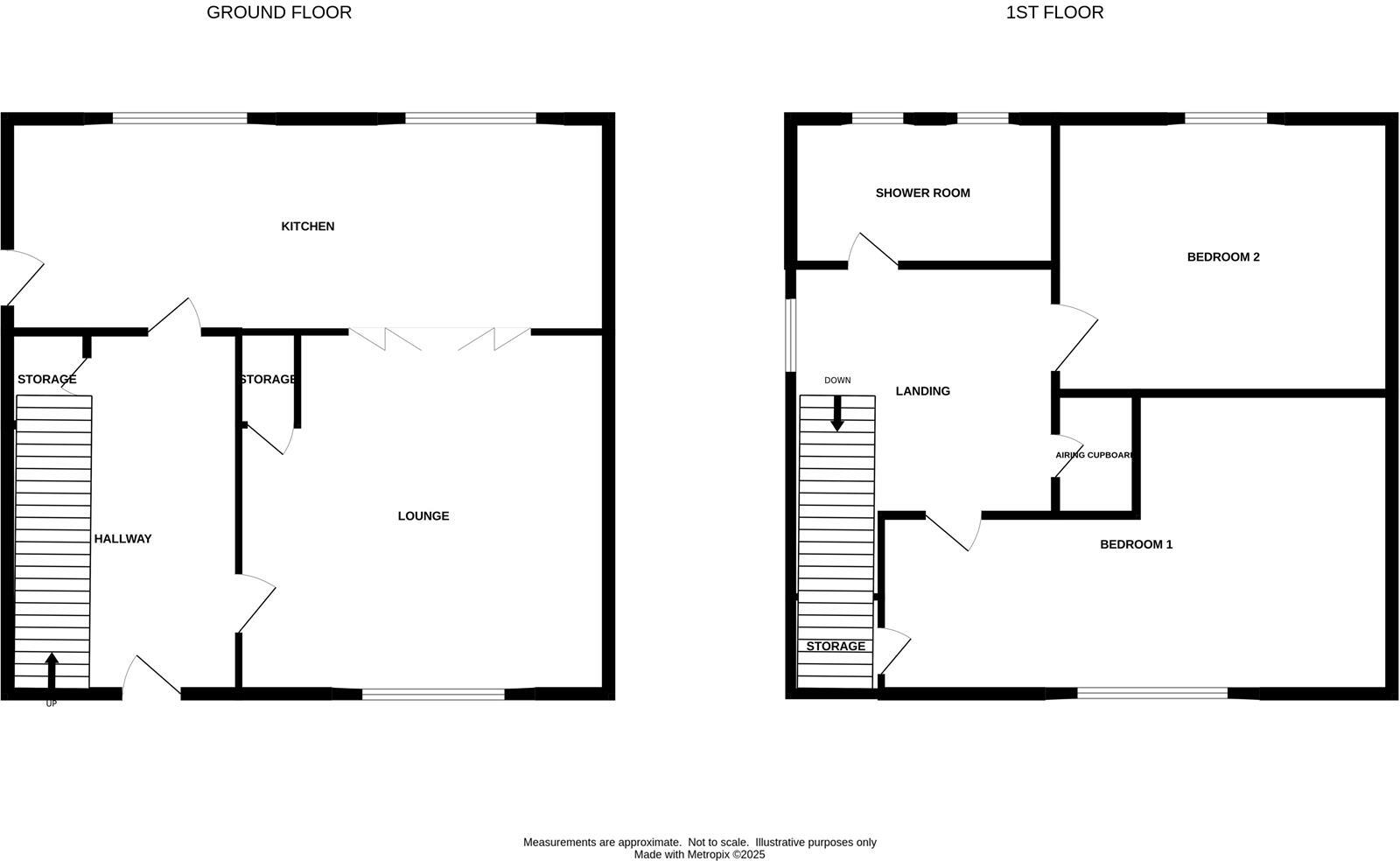
Grace Drive, Bristol, is a delightful end-terrace house which offers a perfect blend of comfort and convenience. The property boasts two well-proportioned bedrooms, providing a peaceful retreat for rest and relaxation, as well as a great sized kitchen/diner and an additional reception room. ...
Property Oracle says ..
Therefore, we give this property 7 / 10. *Disclaimer: This is our option and does constitute a recommendation or financial advice. Do your own research. *
- Price
- 8
- Condition
- 7
- Location
- 7
- Land
- 6
- Bedrooms
- 2
- Bathrooms
- 1
- Sqft (est)
- 900.00
The heatmap indicates the level of crime in the area. The color of the heatmap indicates the crime severity and recency.
Metrics Year-on-Year
- Average area value
- 286,661.00 £Decreased by 17.29 %
- Est sale value
- 329,400.00 £Increased by 6.71 %
- Average area rental value
- 1,263.00 £/moDecreased by 11.86 %
- Est letting value
- 900.00 £/moUnchanged by 0.00 %
- Est rental Yield
- 5.29 %Increased by 6.65 %
- Crime Rate
- 12.00 %Unchanged by 0.00 %
from 346,601.00 £
from 308,700.00 £
from 1,433.00 £/mo
from 900.00 £/mo
from 4.96 %
from 12.00 %
Agent Activity
A J Homes created the listing.
Nearby Schools
| Name | Type | Ofsted | Distance |
|---|---|---|---|
| King'S Oak Academy | Academy Sponsor Led | Good | 0.48 KM |
| New Horizons Learning Centre | Community Special School | Good | 1.06 KM |
| Kings' Forest Primary School | Community School | Good | 1.10 KM |
| Digitech Studio School | Studio Schools | Requires improvement | 1.17 KM |
| Courtney Primary School | Community School | Good | 1.25 KM |
Images
Nearby Streets
| Name | Average Price | Average Sqft | Distance |
|---|---|---|---|
| Newton Close | £ 0 | 0 | 0.00 KM |
| Walnut Lane | £ 370,000 | 0 | 0.00 KM |
| Baxter Close | £ 350,000 | 0 | 0.00 KM |
| Greenways | £ 0 | 0 | 0.00 KM |
| Walnut Close | £ 290,000 | 0 | 0.00 KM |
Nearby Transport
| Name | NLC | TLC | Distance |
|---|---|---|---|
| Keynsham | 3237 | KYN | 5.10 KM |
| Bristol Parkway | 3230 | BPW | 8.20 KM |
| Lawrence Hill | 3225 | LWH | 8.44 KM |
| Stapleton Road | 3250 | SRD | 8.63 KM |
| Filton Abbey Wood | 3235 | FIT | 9.42 KM |
Nearby Listings
| Address | Price | Type | Score | Distance |
|---|---|---|---|---|
| Grace Drive, Kingswood, Bristol, BS15 | £ 210,000 | BUY | 6 / 10 | 0.00 KM |
| Grace Drive, Bristol | £ 270,000 | BUY | 7 / 10 | 0.00 KM |
| Grace Drive, Bristol | £ 280,000 | BUY | 6 / 10 | 0.01 KM |
| Bibstone Kingswood Bristol | £ 319,950 | BUY | 6 / 10 | 0.08 KM |
| Bibstone, Bristol | £ 190,000 | BUY | 6 / 10 | 0.09 KM |
Nearby Properties
| Address | Price | Distance |
|---|---|---|
| 30 Grace Drive | £ 144,000 | 0.01 KM |
| 65 Grace Drive | £ 150,000 | 0.01 KM |
| 34 Grace Drive | £ 47,000 | 0.01 KM |
| 43 Grace Drive | £ 315,000 | 0.01 KM |
| 36 Grace Drive | £ 150,000 | 0.01 KM |