QU
Bradfield Avenue, Teynham, Sittingbourne, Kent, ME9
By Quealy & Co
£ 325,000
Reviews
3 out of 5 stars
Quealy & Co says ..
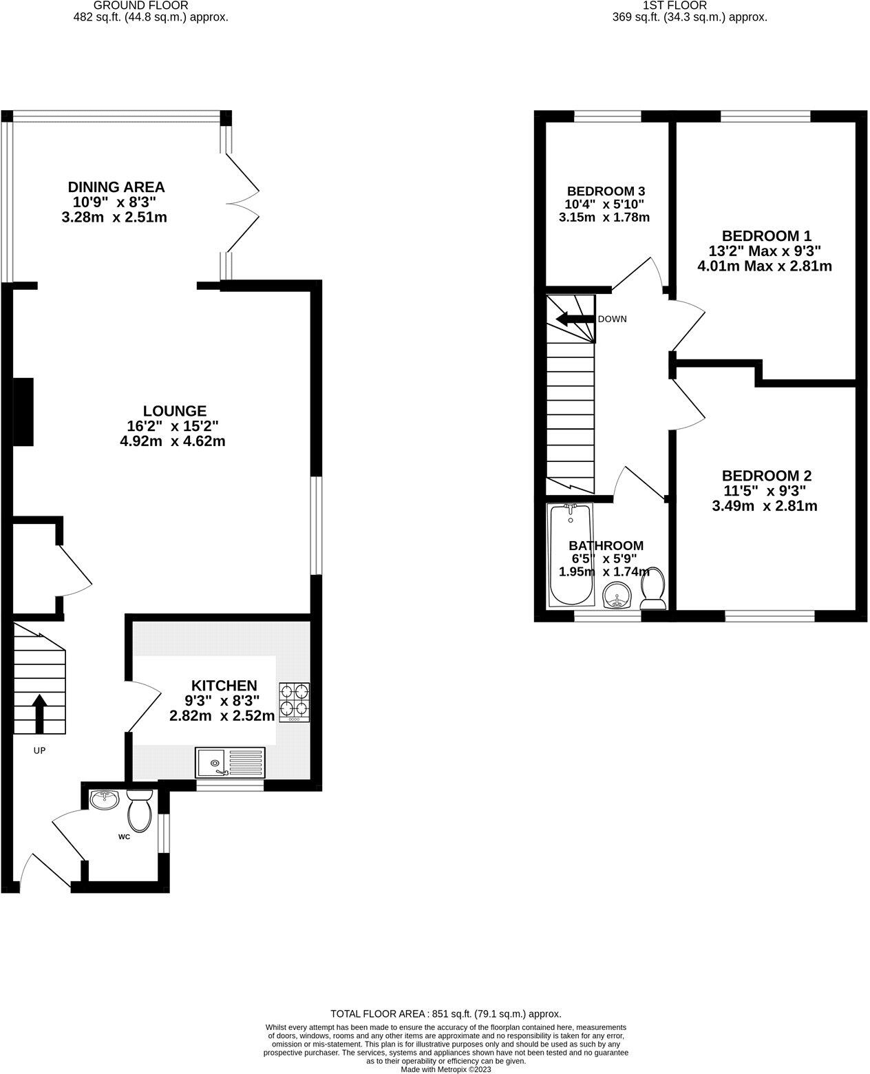
STUNNING THREE BEDROOM SEMI DETACHED FAMILY HOME IN POPULAR VILLAGE LOCATION WITH GARAGE, LARGE GARDEN AND DRIVEWAY PARKING!
Property Oracle says ..
Therefore, we give this property 7 / 10. *Disclaimer: This is our option and does constitute a recommendation or financial advice. Do your own research. *
- Price
- 8
- Condition
- 7
- Location
- 8
- Land
- 7
- Bedrooms
- 3
- Bathrooms
- 1
- Sqft (est)
- 733.13
The heatmap indicates the level of crime in the area. The color of the heatmap indicates the crime severity and recency.
Metrics Year-on-Year
- Average area value
- 468,333.00 £Increased by 11.86 %
- Est sale value
- 420,083.49 £Increased by 69.53 %
- Average area rental value
- 1,273.00 £/moIncreased by 5.47 %
- Est letting value
- 733.13 £/mo
- Est rental Yield
- 3.26 %Decreased by 5.78 %
- Crime Rate
- 39.00 %Unchanged by 0.00 %
from 418,692.00 £
from 247,797.94 £
from 1,207.00 £/mo
from 0.00 £/mo
from 3.46 %
from 39.00 %
Agent Activity
Quealy & Co created the listing.
Nearby Schools
| Name | Type | Ofsted | Distance |
|---|---|---|---|
| Alchemy School | Other Independent School | Good | 0.40 KM |
| Teynham Parochial Church Of England Primary School | Voluntary Controlled School | Good | 0.45 KM |
| Isp School | Other Independent Special School | Good | 0.59 KM |
| Lynsted And Norton Primary School | Academy Converter | Serious Weaknesses | 2.67 KM |
| Bapchild And Tonge Church Of England Primary School And Nursery | Voluntary Aided School | Good | 4.57 KM |
Images
Nearby Streets
| Name | Average Price | Average Sqft | Distance |
|---|---|---|---|
| Cherry Tree Close | £ 280,000 | 0 | 0.00 KM |
| Newgardens | £ 0 | 0 | 0.00 KM |
| Frognal Close | £ 0 | 0 | 0.00 KM |
| John Nash Close | £ 0 | 0 | 0.00 KM |
| Conyer Wharf | £ 0 | 0 | 0.00 KM |
Nearby Transport
| Name | NLC | TLC | Distance |
|---|---|---|---|
| Teynham | 5193 | TEY | 0.30 KM |
| Sittingbourne | 5187 | SIT | 8.16 KM |
| Kemsley | 5205 | KML | 8.74 KM |
| Swale | 5249 | SWL | 9.34 KM |
| Faversham | 5167 | FAV | 9.46 KM |
Nearby Listings
| Address | Price | Type | Score | Distance |
|---|---|---|---|---|
| Bradfield Avenue, Teynham, Sittingbourne, Kent, ME9 | £ 325,000 | BUY | 7 / 10 | 0.00 KM |
| Bradfield Avenue, Teynham, Sittingbourne, Kent, ME9 | £ 325,000 | BUY | Unknown | 0.04 KM |
| Rivers Road, Teynham, Sittingbourne, Kent | £ 425,000 | BUY | 6 / 10 | 0.06 KM |
| Bradfield Avenue, Teynham, Sittingbourne, Kent, ME9 | £ 280,000 | BUY | 6 / 10 | 0.10 KM |
| Bradfield Avenue, Teynham, Sittingbourne, Kent, ME9 | £ 300,000 | BUY | 6 / 10 | 0.12 KM |
Nearby Properties
| Address | Price | Distance |
|---|---|---|
| 50 Bradfield Avenue | £ 175,995 | 0.01 KM |
| 44 Bradfield Avenue | £ 171,000 | 0.01 KM |
| 18 Bradfield Avenue | £ 358,000 | 0.01 KM |
| 57 Bradfield Avenue | £ 330,000 | 0.01 KM |
| 20 Bradfield Avenue | £ 205,000 | 0.01 KM |