Leven Close, Hook, Haverfordwest, SA62
By Bryce & Co
£ 379,950
Reviews
3 out of 5 stars
Bryce & Co says ..
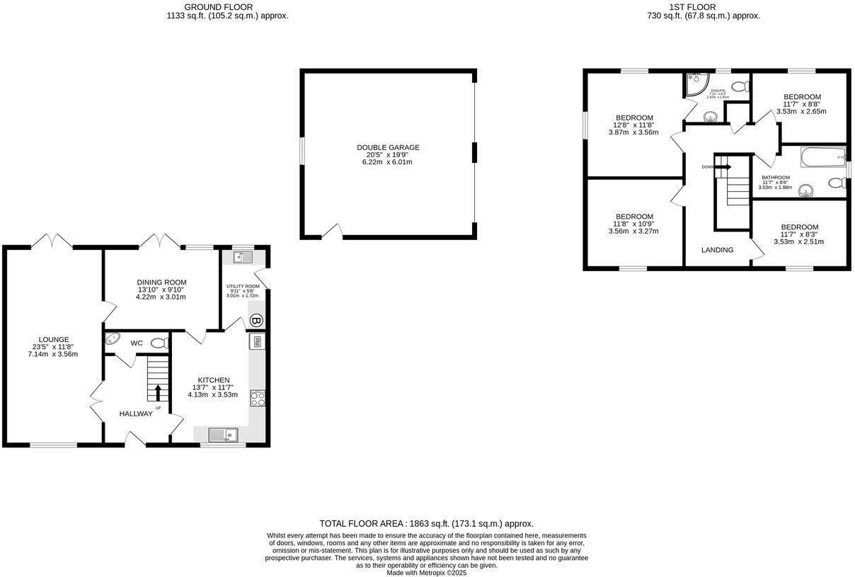
A neatly presented four-bedroom detached home with double garage, located in the sought-after village of Hook. Offering well-proportioned living space across two floors, the property includes multiple reception areas, a private rear garden, and ample parking. Ideally positioned for families, i...
Property Oracle says ..
This four-bedroom detached house in Leven Close, Hook, is situated in a desirable location with easy access to local amenities and schools. The property benefits from a well-maintained garden and a double garage, increasing its overall appeal. The interior is presented in good condition and features modern fixtures and fittings throughout. The list price of £379,950 appears slightly higher than the average price for the area, but the larger plot size and additional features such as the garage could justify this premium. The property is well-presented and likely to attract a significant amount of interest from potential buyers.
Therefore, we give this property 7 / 10. *Disclaimer: This is our option and does constitute a recommendation or financial advice. Do your own research. *
- Price
- 7
- Condition
- 9
- Location
- 8
- Land
- 7
- Bedrooms
- 4
- Bathrooms
- 2
- Sqft (est)
- 1,438.61
- Lot (est)
- 1,863.00
The heatmap indicates the level of crime in the area. The color of the heatmap indicates the crime severity and recency.
Metrics Year-on-Year
- Average area value
- 278,905.00 £Increased by 2.67 %
- Est sale value
- 395,617.75 £Increased by 50.27 %
- Average area rental value
- 800.00 £/moDecreased by 34.53 %
- Est letting value
- 0.00 £/mo
- Est rental Yield
- 3.44 %Decreased by 36.30 %
- Crime Rate
- 175.00 %Unchanged by 0.00 %
Agent Activity
Bryce & Co created the listing.
Nearby Schools
| Name | Type | Ofsted | Distance |
|---|---|---|---|
| Hook C.P. School | Welsh Establishment | 0.33 KM | |
| Cleddau Reach Vc School | Welsh Establishment | 1.92 KM | |
| St Marks V.A.P. School | Welsh Establishment | 5.54 KM | |
| Pembrokeshire Pupil Referral Service | Welsh Establishment | 6.31 KM | |
| Prendergast Community School | Welsh Establishment | 6.33 KM |
Images
Nearby Transport
| Name | NLC | TLC | Distance |
|---|---|---|---|
| Haverfordwest | 4079 | HVF | 5.77 KM |
| Johnston (Pembs) | 4081 | JOH | 7.62 KM |
| Pembroke Dock | 4102 | PMD | 7.64 KM |
Nearby Listings
| Address | Price | Type | Score | Distance |
|---|---|---|---|---|
| Leven Close, Hook, Haverfordwest, SA62 | £ 379,950 | BUY | 7 / 10 | 0.00 KM |
| Leven Close, Hook, Haverfordwest, Pembrokeshire, SA62 | £ 200,000 | BUY | 7 / 10 | 0.02 KM |
| Leven Close, Hook, Haverfordwest | £ 210,000 | BUY | 6 / 10 | 0.05 KM |
| Pill Road, Hook, Haverfordwest | £ 475,000 | BUY | 7 / 10 | 0.12 KM |
| Hook | £ 400,000 | BUY | 7 / 10 | 0.13 KM |
Nearby Properties
| Address | Price | Distance |
|---|---|---|
| 1 Leven Close | £ 230,000 | 0.03 KM |
| 18 Leven Close | £ 200,000 | 0.06 KM |
| 4 Leven Close | £ 290,000 | 0.06 KM |
| 10 Leven Close | £ 269,000 | 0.06 KM |
| 2 Leven Close | £ 269,999 | 0.06 KM |