Ben Rose says ..
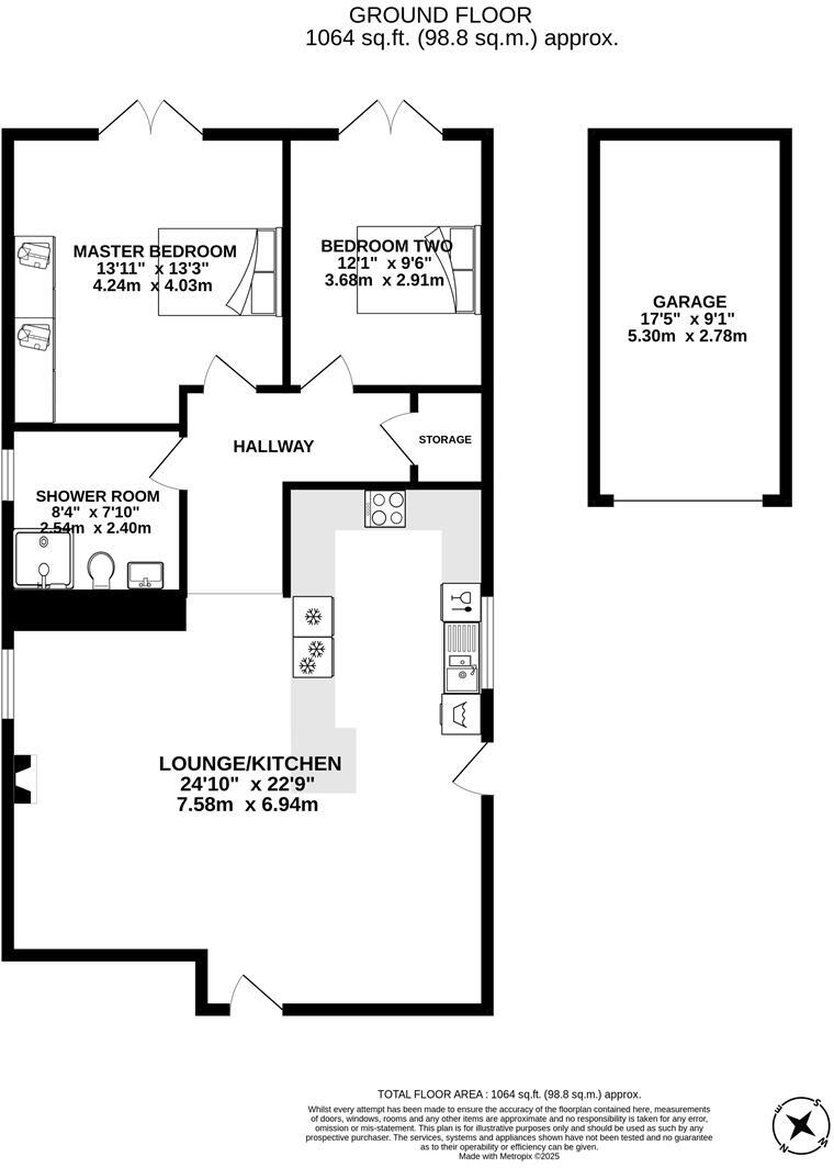
Ben Rose Estate Agents are pleased to present to market this beautifully renovated, two-bedroom detached bungalow, offered with NO ONWARD CHAIN and situated in a peaceful and sought-after location in Chorley. This stunning home has been completely modernised throughout and boasts breathtaking cou...
Property Oracle says ..
Therefore, we give this property 8 / 10. *Disclaimer: This is our option and does constitute a recommendation or financial advice. Do your own research. *
- Price
- 8
- Condition
- 9
- Location
- 8
- Land
- 7
- Bedrooms
- 2
- Bathrooms
- 1
- Sqft (est)
- 1,064.00
The heatmap indicates the level of crime in the area. The color of the heatmap indicates the crime severity and recency.
Metrics Year-on-Year
- Average area value
- 445,205.00 £Decreased by 3.69 %
- Est sale value
- 686,280.00 £Increased by 20.34 %
- Average area rental value
- 1,836.00 £/moIncreased by 4.79 %
- Est letting value
- 2,128.00 £/moUnchanged by 0.00 %
- Est rental Yield
- 4.95 %Increased by 8.79 %
- Crime Rate
- 0.00 %
from 462,259.00 £
from 570,304.00 £
from 1,752.00 £/mo
from 2,128.00 £/mo
from 4.55 %
from 0.00 %
Agent Activity
Ben Rose created the listing.
Nearby Schools
| Name | Type | Ofsted | Distance |
|---|---|---|---|
| Millfields Children'S Centre | Children's Centre | 0.81 KM | |
| St Joseph'S Catholic Primary School, Withnell | Voluntary Aided School | Outstanding | 0.96 KM |
| Brinscall St John'S Cofe And Methodist Primary School | Voluntary Aided School | Outstanding | 1.01 KM |
| Meadow View Learning Centre | Other Independent Special School | Good | 1.90 KM |
| Abbey Village Primary School | Community School | Good | 2.59 KM |
Images
Nearby Streets
| Name | Average Price | Average Sqft | Distance |
|---|---|---|---|
| Queensway | £ 0 | 0 | 0.00 KM |
| The Square | £ 280,000 | 0 | 0.00 KM |
| Chapel Street | £ 169,995 | 0 | 0.00 KM |
| New Street | £ 159,995 | 0 | 0.00 KM |
| Well Lane | £ 0 | 0 | 0.00 KM |
Nearby Transport
| Name | NLC | TLC | Distance |
|---|---|---|---|
| Pleasington | 2752 | PLS | 5.11 KM |
| Cherry Tree | 2573 | CYT | 7.08 KM |
| Chorley | 2745 | CRL | 7.92 KM |
| Mill Hill (Lancs) | 2750 | MLH | 8.71 KM |
| Adlington (Lancashire) | 2641 | ADL | 9.53 KM |
Nearby Listings
| Address | Price | Type | Score | Distance |
|---|---|---|---|---|
| Parke Road, Chorley | £ 374,995 | BUY | 8 / 10 | 0.00 KM |
| Parke Road, Brinscall, Chorley | £ 275,000 | BUY | 6 / 10 | 0.26 KM |
| Parke Road, Brinscall, Chorley | £ 280,000 | BUY | 6 / 10 | 0.26 KM |
| Sandringham Drive, Brinscall, Chorley | £ 569,995 | BUY | Unknown | 0.27 KM |
| Land at Withnell Fold Old Road, Brinscall, Chorley, PR6 | £ 300,000 | BUY | 5 / 10 | 0.28 KM |
Nearby Properties
| Address | Price | Distance |
|---|---|---|
| 7 Heather Lea Drive | £ 215,000 | 0.10 KM |
| 11 Heather Lea Drive | £ 310,000 | 0.10 KM |
| 4 Heather Lea Drive | £ 200,000 | 0.10 KM |
| 1 Heather Lea Drive | £ 280,000 | 0.10 KM |
| 5 Heather Lea Drive | £ 296,000 | 0.11 KM |