Chancellors says ..
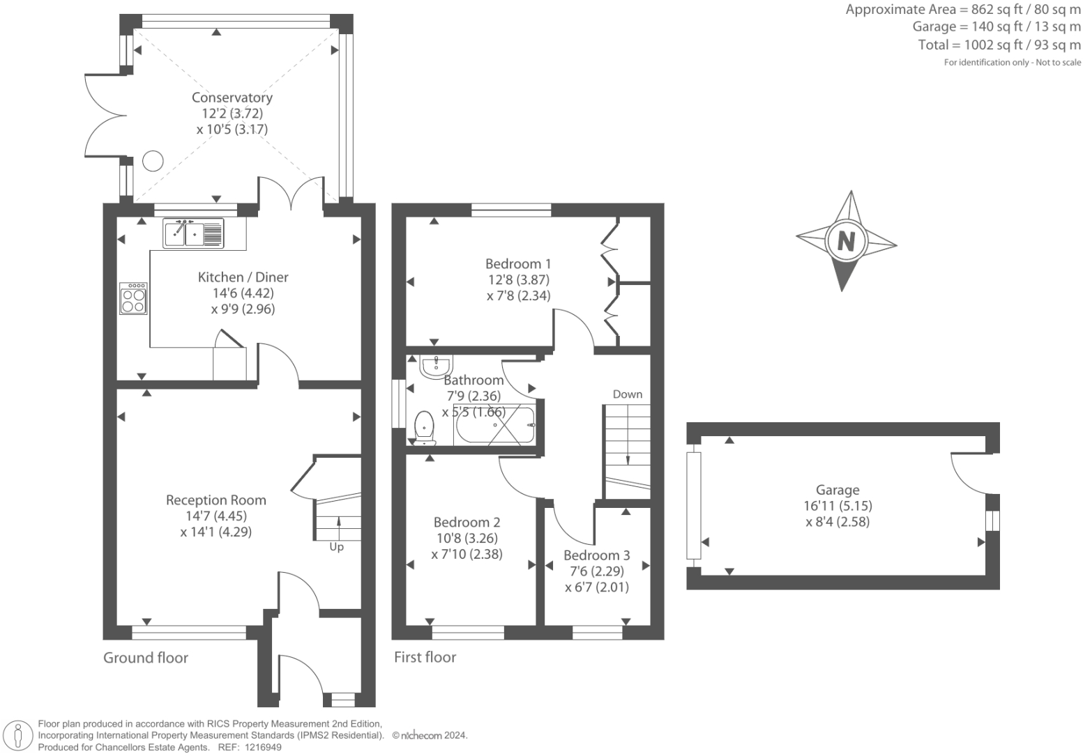
Located within 1.5miles of Ludlow town centre is this well presented three bedroom semi-detached property offering private rear gardens with a home studio, a detached garage and driveway parking. Sold with no onward chain.
Property Oracle says ..
This 3-bedroom semi-detached house in Ludlow, Shropshire, offers a blend of desirable features and areas for improvement. Its location in Ludlow South provides access to local amenities, schools, and transport links. The property’s internal condition is satisfactory, with the kitchen and bathroom in need of some updating and the conservatory exhibiting wear and tear. The external space includes a garden, although its dimensions aren’t specified. The asking price appears to fall within the reasonable range for similar properties in the area, but a comprehensive price per square foot comparison would require more data. Overall, this property presents an opportunity for potential buyers to add value through modernisation, but prospective buyers must carefully assess their renovation budget. The proximity to good schools and the train station provides value for families and commuters alike. The lack of a precise plot size in the provided data limits the complete analysis of the value proposition.
Therefore, we give this property 6 / 10. *Disclaimer: This is our option and does constitute a recommendation or financial advice. Do your own research. *
- Price
- 7
- Condition
- 6
- Location
- 7
- Land
- 4
- Bedrooms
- 3
- Bathrooms
- 1
- Sqft (est)
- 1,002.00
The heatmap indicates the level of crime in the area. The color of the heatmap indicates the crime severity and recency.
Metrics Year-on-Year
- Average area value
- 243,278.00 £Decreased by 3.15 %
- Est sale value
- 313,626.00 £Increased by 28.81 %
- Average area rental value
- 1,186.00 £/moIncreased by 12.42 %
- Est letting value
- 1,002.00 £/moUnchanged by 0.00 %
- Est rental Yield
- 5.85 %Increased by 16.07 %
- Crime Rate
- 15.00 %Unchanged by 0.00 %
Agent Activity
Chancellors created the listing.
Nearby Schools
| Name | Type | Ofsted | Distance |
|---|---|---|---|
| Ludlow Primary School | Academy Converter | Good | 0.21 KM |
| Shropshire Sw Early Help Family Hub (2) | Children's Centre | 0.43 KM | |
| St Laurence Cofe Primary School | Voluntary Controlled School | Good | 1.45 KM |
| Shropshire Sw Early Help Family Hub | Children's Centre | 1.65 KM | |
| Ludlow Church Of England School | Academy Converter | Good | 2.94 KM |
Images
Nearby Streets
| Name | Average Price | Average Sqft | Distance |
|---|---|---|---|
| Chestnut Grove | £ 0 | 0 | 0.00 KM |
| Knights Way | £ 0 | 0 | 0.00 KM |
| Ludlow Bypass | £ 0 | 0 | 0.00 KM |
| Paper Mill Drive | £ 0 | 0 | 0.00 KM |
| Friars Walk | £ 230,000 | 0 | 0.00 KM |
Nearby Transport
| Name | NLC | TLC | Distance |
|---|---|---|---|
| Ludlow | 3635 | LUD | 1.57 KM |
Nearby Listings
| Address | Price | Type | Score | Distance |
|---|---|---|---|---|
| Ludlow, Shropshire, SY8 | £ 240,000 | BUY | 6 / 10 | 0.00 KM |
| Dahn Drive, Ludlow, Shropshire | £ 190,000 | BUY | 6 / 10 | 0.04 KM |
| Dahn Drive, Ludlow | £ 219,950 | BUY | 6 / 10 | 0.04 KM |
| Dahn Drive, Ludlow | £ 284,000 | BUY | 6 / 10 | 0.04 KM |
| Dahn Drive, Ludlow | £ 210,000 | BUY | 7 / 10 | 0.05 KM |
Nearby Properties
| Address | Price | Distance |
|---|---|---|
| 16 Dahn Drive | £ 170,000 | 0.06 KM |
| 21 Dahn Drive | £ 335,000 | 0.06 KM |
| 11 Dahn Drive | £ 192,000 | 0.06 KM |
| 41 Dahn Drive | £ 163,000 | 0.06 KM |
| 28 Dahn Drive | £ 142,000 | 0.06 KM |