Addy House, Rotherhithe New Road, London, SE16
By BidX1
£ 200,000
Reviews
3 out of 5 stars
BidX1 says ..
N/A
Property Oracle says ..
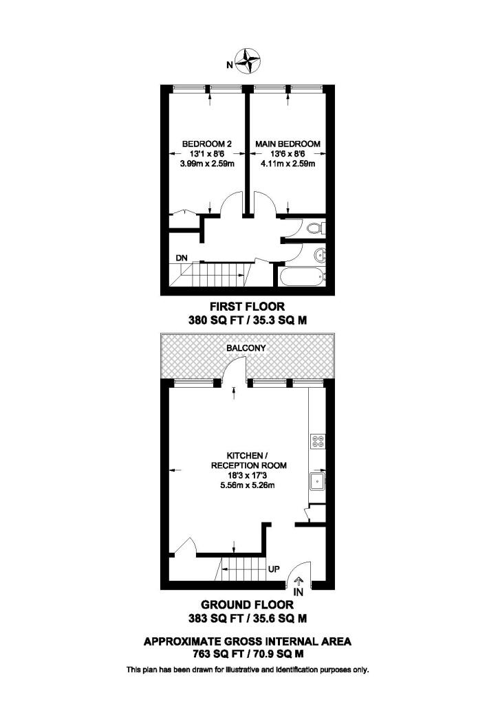
This is a two-bedroom flat in Rotherhithe, London. The property is in a good location with good transport links and schools. The flat has a modern kitchen and bathroom, but some areas could benefit from updating. The property has a balcony but no garden. The asking price of £200,000 seems reasonable for the area.
Therefore, we give this property 6 / 10. *Disclaimer: This is our option and does constitute a recommendation or financial advice. Do your own research. *
- Price
- 8
- Condition
- 6
- Location
- 7
- Land
- 3
- Bedrooms
- 2
- Bathrooms
- 1
The heatmap indicates the level of crime in the area. The color of the heatmap indicates the crime severity and recency.
Metrics Year-on-Year
- Average area value
- 622,222.00 £Increased by 5.44 %
- Average area rental value
- 2,241.00 £/moIncreased by 5.31 %
- Est rental Yield
- 4.32 %Decreased by 0.23 %
- Crime Rate
- 3.00 %Unchanged by 0.00 %
from 590,127.00 £
from 2,128.00 £/mo
from 4.33 %
from 3.00 %
Agent Activity
BidX1 created the listing.
Nearby Schools
| Name | Type | Ofsted | Distance |
|---|---|---|---|
| Cavendish School | Other Independent Special School | Outstanding | 0.11 KM |
| Rotherhithe Primary School | Community School | Good | 0.12 KM |
| Rotherhithe Primary School & Children'S Centre | Children's Centre | 0.12 KM | |
| St Joseph'S Catholic Primary School | Voluntary Aided School | Outstanding | 0.33 KM |
| Southwark Park Primary School | Community School | Good | 0.84 KM |
Images
Nearby Streets
| Name | Average Price | Average Sqft | Distance |
|---|---|---|---|
| Hawkstone Road | £ 0 | 0 | 0.00 KM |
| Warndon Street | £ 0 | 0 | 0.00 KM |
| Luxford Street | £ 0 | 0 | 0.00 KM |
| Bolina Road | £ 0 | 0 | 0.00 KM |
| Marker Way | £ 0 | 0 | 0.00 KM |
Nearby Transport
| Name | NLC | TLC | Distance |
|---|---|---|---|
| Surrey Quays | 1083 | SQE | 0.36 KM |
| Canada Water | 1659 | ZCW | 0.64 KM |
| New Cross | 5150 | NWX | 0.64 KM |
| South Bermondsey | 5425 | SBM | 0.64 KM |
| Rotherhithe | 1039 | ROE | 0.96 KM |
Nearby Listings
| Address | Price | Type | Score | Distance |
|---|---|---|---|---|
| Addy House, Rotherhithe New Road, London, SE16 | £ 200,000 | BUY | 6 / 10 | 0.00 KM |
| Rotherhithe New Road, Bermondsey, London, SE16 | £ 280,000 | BUY | 6 / 10 | 0.14 KM |
| Canute Gardens, London, SE16 | £ 385,000 | BUY | 5 / 10 | 0.14 KM |
| Tissington Court, Rotherhithe New Road, London, SE16 | £ 375,000 | BUY | 5 / 10 | 0.17 KM |
| Canute Gardens, South Bermondsey, London, SE16 | £ 400,000 | BUY | 5 / 10 | 0.20 KM |
Nearby Properties
| Address | Price | Distance |
|---|---|---|
| 21 Canute Gardens | £ 377,500 | 0.14 KM |
| 14 Canute Gardens | £ 500,000 | 0.14 KM |
| 49 Canute Gardens | £ 220,000 | 0.14 KM |
| 37 Canute Gardens | £ 205,000 | 0.21 KM |
| 10 Canute Gardens | £ 174,950 | 0.21 KM |