Peartree Close, Doddinghurst, Brentwood
Keith Ashton logo

Peartree Close, Doddinghurst, Brentwood

By Keith Ashton

£ 725,000

Reviews

3 out of 5 stars

Keith Ashton says ..

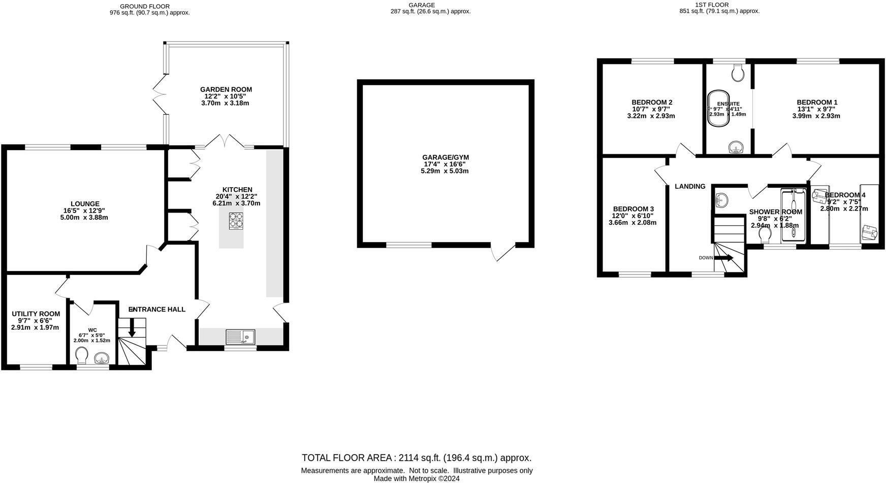
Situated in a pleasant cul-de-sac in the semi-rural village of Doddinghurst, is this four-bedroom detached family home with detached, double garage and a tidy garden to the rear. The property is beautifully presented throughout, including a luxury kitchen/breakfast room with a superb range of hig...

Property Oracle says ..

Therefore, we give this property 7 / 10. *Disclaimer: This is our option and does constitute a recommendation or financial advice. Do your own research. *

Price
6
Condition
8
Location
7
Land
7
Bedrooms
4
Bathrooms
2
Sqft (est)
1,465.56

The heatmap indicates the level of crime in the area. The color of the heatmap indicates the crime severity and recency.

Metrics Year-on-Year

Average area value
547,000.00 £
Decreased by 8.72 %
from 599,278.00 £
Est sale value
565,706.16 £
Decreased by 5.62 %
from 599,414.04 £
Average area rental value
1,401.00 £/mo
Decreased by 1.27 %
from 1,419.00 £/mo
Est letting value
0.00 £/mo
from 0.00 £/mo
Est rental Yield
3.07 %
Increased by 8.10 %
from 2.84 %
Crime Rate
6.00 %
Unchanged by 0.00 %
from 6.00 %

Agent Activity

  • Keith Ashton marked this listing as sold.

  • Keith Ashton created the listing.

Nearby Schools

NameTypeOfstedDistance
Doddinghurst Infant SchoolCommunity SchoolOutstanding1.41 KM
Doddinghurst Church Of England Junior SchoolAcademy Converter1.54 KM
Shenfield High SchoolAcademy ConverterGood3.51 KM
Shenfield St. Mary'S Church Of England Primary SchoolAcademy Converter3.58 KM
St Helen'S Catholic Infant SchoolVoluntary Aided SchoolOutstanding3.67 KM

Images

IMG_6467-27.jpg IMG_6454-22.jpg IMG_6424-13.jpg IMG_6462-25.jpg IMG_6458-24.jpg IMG_6465-26.jpg IMG_6434-15.jpg IMG_6456-23.jpg IMG_6448-20.jpg IMG_6431-14.jpg IMG_6391-1.jpg IMG_6413-9.jpg IMG_6451-21.jpg IMG_6407-7.jpg IMG_6404-6.jpg IMG_6402-5.jpg IMG_6393-2.jpg IMG_6397-3.jpg IMG_6400-4.jpg IMG_6411-8.jpg IMG_6418-10.jpg IMG_6440-16.jpg IMG_6442-17.jpg IMG_6443-18.jpg IMG_6446-19.jpg IMG_6472-28.jpg IMG_6475-29.jpg IMG_6476-30.jpg IMG_6500-34.jpg IMG_6481-31.jpg IMG_6489-32.jpg IMG_6503-35.jpg IMG_6497-33.png

Nearby Streets

NameAverage PriceAverage SqftDistance
Willow Close £ 575,00000.00 KM
Kilnfield £ 500,00000.00 KM
Dagwood Lane £ 000.00 KM
Outing's Lane £ 850,00000.00 KM

Nearby Transport

NameNLCTLCDistance
Shenfield6888SNF4.14 KM
Brentwood6872BRE5.42 KM
Ingatestone6882INT8.38 KM

Nearby Listings

AddressPriceTypeScoreDistance
Peartree Close, Doddinghurst, Brentwood £ 725,000BUY7 / 100.00 KM
Peartree Close, Doddinghurst £ 850,000BUY7 / 100.08 KM
Doddinghurst Road, Doddinghurst, Brentwood £ 875,000BUY7 / 100.12 KM
Park Meadow, Doddinghurst, Brentwood £ 699,950BUY6 / 100.19 KM
Park Meadow, Doddinghurst Village, Brentwood. £ 850,000BUYUnknown0.20 KM

Nearby Properties

AddressPriceDistance
10 Peartree Close £ 490,0000.01 KM
14 Peartree Close £ 189,9950.01 KM
16 Peartree Close £ 565,0000.01 KM
7 Peartree Close £ 487,5000.01 KM
12 Peartree Close £ 500,0000.01 KM