Connaught Road, Brookwood, Woking, Surrey, GU24
By Seymours Estate Agents
£ 699,950
Reviews
3 out of 5 stars
Seymours Estate Agents says ..
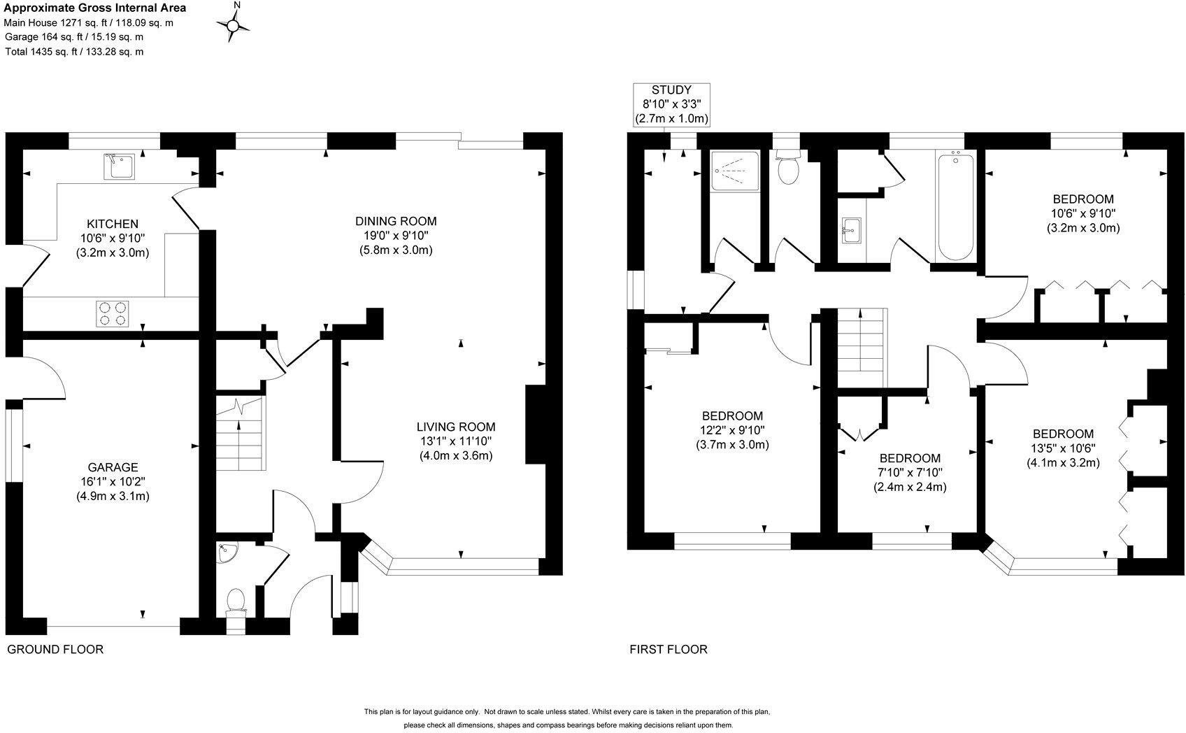
Spacious Four Bedroom Semi Detached House in Brookwood – Backing onto the Basingstoke Canal Rarely available and offered to the market with no onward chain, this well presented four bedroom semi detached home is located in a highly sought after position in Brookwood, within easy walkin...
Property Oracle says ..
This is a semi-detached property on Connaught Road, Brookwood, Woking, Surrey. It features four bedrooms and two bathrooms, with a total square footage of 1,064.23. The property benefits from a good-sized garden, modern kitchen and bathrooms, and proximity to local schools and transportation. While generally well-maintained, some areas could benefit from minor updates. The asking price of £699,950 appears reasonable given the location, condition, and land size.
Therefore, we give this property 7 / 10. *Disclaimer: This is our option and does constitute a recommendation or financial advice. Do your own research. *
- Price
- 7
- Condition
- 7
- Location
- 7
- Land
- 8
- Bedrooms
- 4
- Bathrooms
- 2
- Sqft (est)
- 1,064.23
The heatmap indicates the level of crime in the area. The color of the heatmap indicates the crime severity and recency.
Metrics Year-on-Year
- Average area value
- 1,790,000.00 £Increased by 94.05 %
- Est sale value
- 388,443.95 £Increased by 26.30 %
- Average area rental value
- 2,186.00 £/moDecreased by 33.31 %
- Est letting value
- 0.00 £/moDecreased by 100.00 %
- Est rental Yield
- 1.47 %Decreased by 65.49 %
- Crime Rate
- 0.00 %
Agent Activity
Seymours Estate Agents created the listing.
Nearby Schools
| Name | Type | Ofsted | Distance |
|---|---|---|---|
| Knowl Hill School | Other Independent Special School | Good | 0.77 KM |
| Pirbright Village Primary School | Academy Converter | 0.81 KM | |
| Brookwood & Pirbright Sure Start Children'S Centre | Children's Centre | 1.25 KM | |
| Brookwood Primary School | Academy Sponsor Led | Good | 1.42 KM |
| Bisley Cofe Primary School | Voluntary Aided School | Good | 2.50 KM |
Images
Nearby Streets
| Name | Average Price | Average Sqft | Distance |
|---|---|---|---|
| Bakersgate | £ 0 | 0 | 0.00 KM |
| St John's Court | £ 0 | 0 | 0.00 KM |
| Riverside Close | £ 895,000 | 0 | 0.00 KM |
| Basingstoke Canal towpath | £ 0 | 0 | 0.00 KM |
| Queens Road | £ 950,000 | 0 | 0.00 KM |
Nearby Transport
| Name | NLC | TLC | Distance |
|---|---|---|---|
| Brookwood | 5687 | BKO | 0.99 KM |
| Worplesdon | 5686 | WPL | 7.07 KM |
| Wanborough | 5639 | WAN | 7.11 KM |
| Bagshot | 5681 | BAG | 8.28 KM |
| Ash Vale | 5547 | AHV | 9.22 KM |
Nearby Listings
| Address | Price | Type | Score | Distance |
|---|---|---|---|---|
| Connaught Road, Brookwood, Woking, Surrey, GU24 | £ 699,950 | BUY | 7 / 10 | 0.00 KM |
| Connaught Road, Brookwood, Woking, Surrey, GU24 | £ 475,000 | BUY | 7 / 10 | 0.05 KM |
| Connaught Road, Brookwood, Woking, GU24 | £ 1,100,000 | BUY | 8 / 10 | 0.06 KM |
| Connaught Road, Brookwood, Woking, Surrey, GU24 | £ 549,950 | BUY | 7 / 10 | 0.07 KM |
| Connaught Road, Brookwood, Woking, Surrey, GU24 | £ 599,950 | BUY | 7 / 10 | 0.07 KM |
Nearby Properties
| Address | Price | Distance |
|---|---|---|
| 224a Connaught Road | £ 210,000 | 0.01 KM |
| 202 Connaught Road | £ 320,000 | 0.01 KM |
| 180 Connaught Road | £ 575,000 | 0.01 KM |
| 226a Connaught Road | £ 115,000 | 0.01 KM |
| 198 Connaught Road | £ 315,000 | 0.01 KM |