BR
Grove Road, Church Crookham, Fleet, Hampshire, GU52
By Bridges Estate Agents
£ 750,000
Reviews
3 out of 5 stars
Bridges Estate Agents says ..
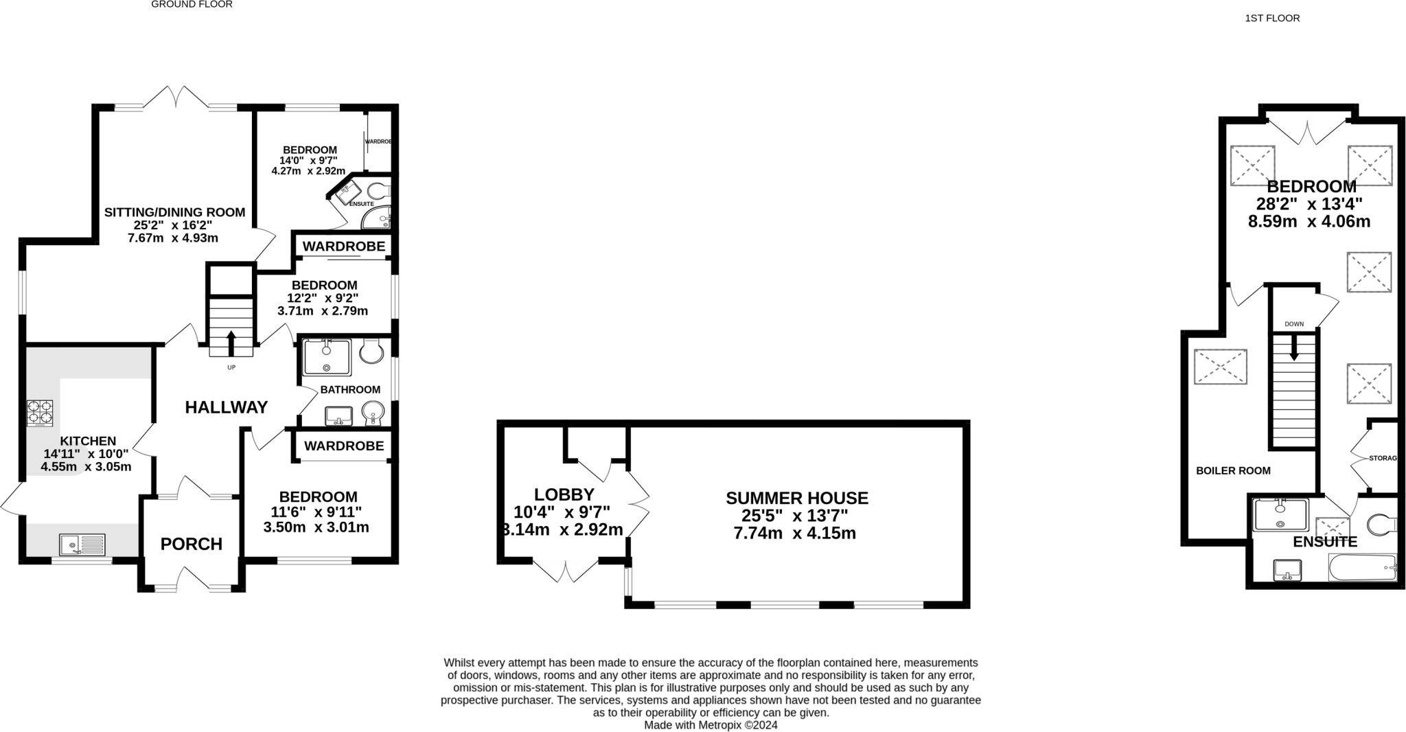
Tucked away towards the end of a no-through road, this cleverly extended detached chalet offers a superb blend of versatile living space and contemporary comfort. The ground floor welcomes you with an entrance porch and hallway, leading to a well-appointed kitchen and a bright, open-pl...
Property Oracle says ..
Therefore, we give this property 7 / 10. *Disclaimer: This is our option and does constitute a recommendation or financial advice. Do your own research. *
- Price
- 6
- Condition
- 8
- Location
- 8
- Land
- 7
- Bedrooms
- 4
- Bathrooms
- 3
- Sqft (est)
- 1,780.13
The heatmap indicates the level of crime in the area. The color of the heatmap indicates the crime severity and recency.
Metrics Year-on-Year
- Average area value
- 239,000.00 £Increased by 24.44 %
- Est sale value
- 478,854.97 £Increased by 15.95 %
- Average area rental value
- 850.00 £/moDecreased by 8.60 %
- Est letting value
- 0.00 £/moDecreased by 100.00 %
- Est rental Yield
- 4.27 %Decreased by 26.51 %
- Crime Rate
- 19.00 %Unchanged by 0.00 %
from 192,055.00 £
from 412,990.16 £
from 930.00 £/mo
from 1,780.13 £/mo
from 5.81 %
from 19.00 %
Agent Activity
Bridges Estate Agents created the listing.
Nearby Schools
| Name | Type | Ofsted | Distance |
|---|---|---|---|
| Wild Rose Children'S Centre | Children's Centre Linked Site | 0.78 KM | |
| Tweseldown Infant School | Community School | Outstanding | 0.78 KM |
| Church Crookham Junior School | Community School | Outstanding | 0.89 KM |
| Velmead Junior School | Community School | Good | 1.01 KM |
| Fleet Infant School | Community School | Outstanding | 1.06 KM |
Images
Nearby Streets
| Name | Average Price | Average Sqft | Distance |
|---|---|---|---|
| Gordon Avenue | £ 550,000 | 0 | 0.00 KM |
| Hamilton Road | £ 0 | 0 | 0.00 KM |
| Redwoods Lane | £ 0 | 0 | 0.00 KM |
| Kenmore Close | £ 925,000 | 0 | 0.00 KM |
| Foxcroft | £ 0 | 0 | 0.00 KM |
Nearby Transport
| Name | NLC | TLC | Distance |
|---|---|---|---|
| Fleet | 5522 | FLE | 2.86 KM |
| Farnham | 5545 | FNH | 7.06 KM |
| Aldershot | 5623 | AHT | 7.71 KM |
| Farnborough (Main) | 5521 | FNB | 8.62 KM |
| Winchfield | 5528 | WNF | 9.11 KM |
Nearby Listings
| Address | Price | Type | Score | Distance |
|---|---|---|---|---|
| Grove Road, Church Crookham, Fleet, Hampshire, GU52 | £ 750,000 | BUY | 7 / 10 | 0.00 KM |
| Grove Road, Church Crookham, Fleet | £ 800,000 | BUY | Unknown | 0.04 KM |
| Castor Court, Church Crookham | £ 475,000 | BUY | Unknown | 0.07 KM |
| Grove Road, Church Crookham, Fleet | £ 585,000 | BUY | 6 / 10 | 0.07 KM |
| Grove Road, Church Crookham, Fleet, Hampshire, GU52 | £ 850,000 | BUY | 7 / 10 | 0.09 KM |
Nearby Properties
| Address | Price | Distance |
|---|---|---|
| 2 Castor Court | £ 350,000 | 0.06 KM |
| 4 Castor Court | £ 225,000 | 0.06 KM |
| 11 Grove Road | £ 575,000 | 0.08 KM |
| 18 Grove Road | £ 347,000 | 0.08 KM |
| 17 Grove Road | £ 415,000 | 0.08 KM |