Sanderstead Road, Sanderstead, South Croydon, CR2
By Foxtons
£ 920,000
Reviews
3 out of 5 stars
Foxtons says ..
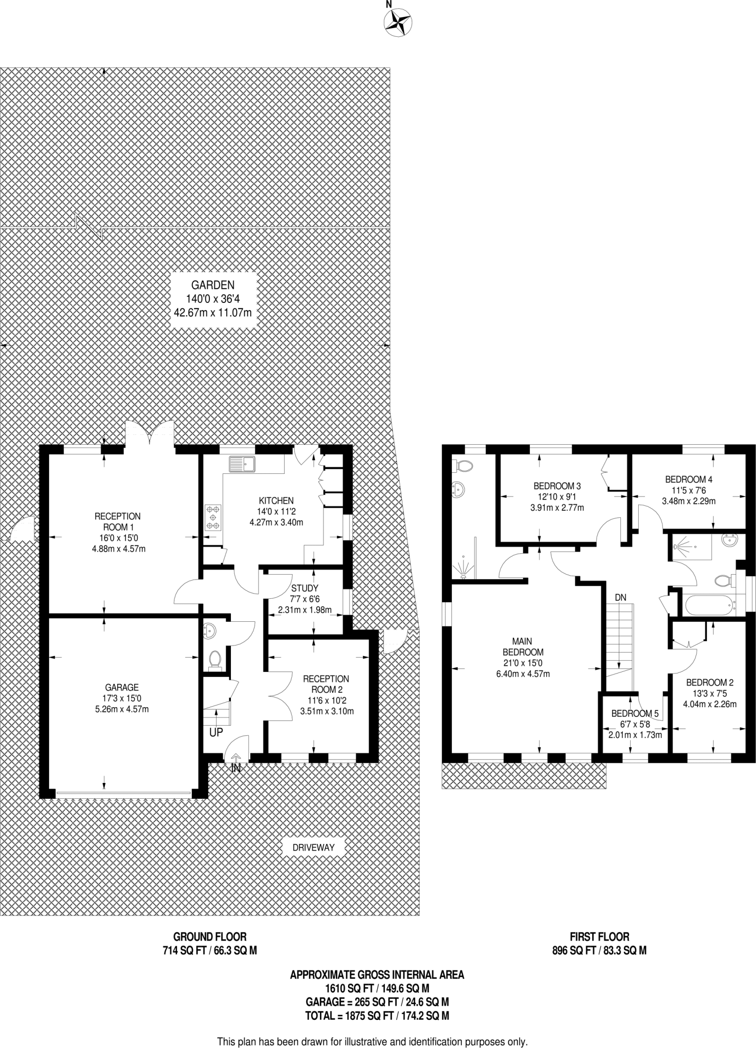
Beautifully presented throughout, this impressive 5 bedroom house features bright and spacious reception room, large modern kitchen, lovely private garden, 2 stylish bathrooms and a double garage.
Property Oracle says ..
This property is a 5 bedroom detached house located on Sanderstead Road in South Croydon. The property benefits from being close to Sanderstead train station and several highly-rated primary schools. The asking price of £920,000 is slightly above the average price for the area, but the larger than average plot size and modern condition of the property help justify this. The property seems well maintained and benefits from a modern kitchen and bathrooms. There is also a good size garden.
Therefore, we give this property 7 / 10. *Disclaimer: This is our option and does constitute a recommendation or financial advice. Do your own research. *
- Price
- 7
- Condition
- 9
- Location
- 8
- Land
- 7
- Bedrooms
- 5
- Bathrooms
- 3
- Sqft (est)
- 1,462.00
- Lot (est)
- 1,875.00
The heatmap indicates the level of crime in the area. The color of the heatmap indicates the crime severity and recency.
Metrics Year-on-Year
- Average area value
- 350,411.00 £Decreased by 30.71 %
- Est sale value
- 480,998.00 £Decreased by 20.91 %
- Average area rental value
- 1,907.00 £/moIncreased by 7.13 %
- Est letting value
- 1,462.00 £/moUnchanged by 0.00 %
- Est rental Yield
- 6.53 %Increased by 54.74 %
- Crime Rate
- 17.00 %Unchanged by 0.00 %
Agent Activity
Foxtons created the listing.
Nearby Schools
| Name | Type | Ofsted | Distance |
|---|---|---|---|
| Purley Oaks Children'S Centre | Children's Centre Linked Site | 0.50 KM | |
| Purley Oaks Primary School | Community School | Good | 0.59 KM |
| Ridgeway Primary School | Community School | Good | 1.08 KM |
| St Peter'S Primary School | Academy Converter | Good | 1.18 KM |
| Harris Primary Academy Haling Park | Academy Sponsor Led | Outstanding | 1.22 KM |
Images
Nearby Streets
| Name | Average Price | Average Sqft | Distance |
|---|---|---|---|
| White Hill | £ 0 | 0 | 0.00 KM |
| Magdala Road | £ 0 | 0 | 0.00 KM |
| Allenby Avenue | £ 0 | 0 | 0.00 KM |
| Day's Acre | £ 0 | 0 | 0.00 KM |
| Joshua Close | £ 0 | 0 | 0.00 KM |
Nearby Transport
| Name | NLC | TLC | Distance |
|---|---|---|---|
| Sanderstead | 5433 | SNR | 0.09 KM |
| Purley Oaks | 5430 | PUO | 0.49 KM |
| South Croydon | 5410 | SCY | 1.67 KM |
| Riddlesdown | 5432 | RDD | 1.81 KM |
| Purley | 5379 | PUR | 2.46 KM |
Nearby Listings
| Address | Price | Type | Score | Distance |
|---|---|---|---|---|
| Sanderstead Road, Sanderstead, South Croydon, CR2 | £ 850,000 | BUY | 6 / 10 | 0.00 KM |
| Sanderstead Road, Sanderstead, South Croydon, CR2 | £ 900,000 | BUY | 7 / 10 | 0.00 KM |
| Sanderstead Road, Sanderstead, South Croydon, CR2 | £ 920,000 | BUY | 7 / 10 | 0.00 KM |
| Sanderstead Road, South Croydon | £ 300,000 | BUY | 5 / 10 | 0.00 KM |
| 174 Sanderstead Road, Sanderstead, Surrey, CR2 0LY | £ 295,000 | BUY | 6 / 10 | 0.00 KM |
Nearby Properties
| Address | Price | Distance |
|---|---|---|
| 167 Sanderstead Road | £ 142,500 | 0.03 KM |
| 165 Sanderstead Road | £ 470,000 | 0.03 KM |
| 205a Sanderstead Road | £ 400,000 | 0.03 KM |
| 145 Sanderstead Road | £ 129,950 | 0.03 KM |
| 9 Glossop Road | £ 535,000 | 0.11 KM |