Keswick Street, Rochdale, OL11
By Revilo Homes Ltd
£ 170,000
Reviews
3 out of 5 stars
Revilo Homes Ltd says ..
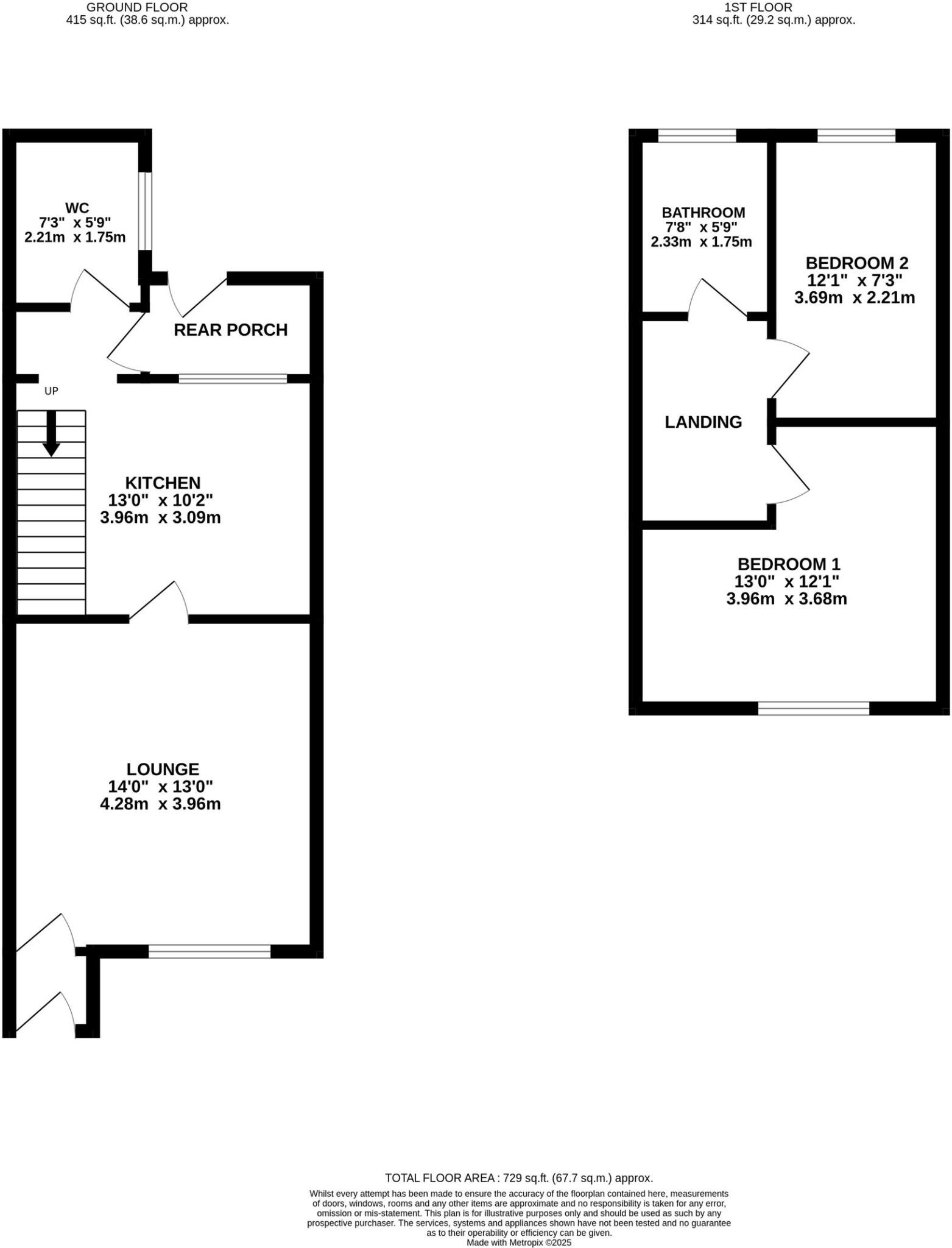
Charming 2-bed mid-terrace in sought-after location with modern kitchen, bathroom, WC, and low-maintenance yard. Great for first-time buyers. Vacant possession. Close to amenities and transport links. Must-see!
Property Oracle says ..
This two-bedroom terraced house in Rochdale is listed at £170,000. The property benefits from a modern kitchen and bathroom, and a small garden. While the interior appears well-maintained, the overall condition is average. The location in Castleton offers proximity to local schools and transport links. However, the average house price in the area is significantly higher, suggesting the listed price might be relatively low. More information on the plot size would be beneficial for a more comprehensive evaluation.
Therefore, we give this property 6 / 10. *Disclaimer: This is our option and does constitute a recommendation or financial advice. Do your own research. *
- Price
- 8
- Condition
- 6
- Location
- 7
- Land
- 3
- Bedrooms
- 2
- Bathrooms
- 1
- Sqft (est)
- 728.72
The heatmap indicates the level of crime in the area. The color of the heatmap indicates the crime severity and recency.
Metrics Year-on-Year
- Average area value
- 312,498.00 £Increased by 28.62 %
- Est sale value
- 273,998.72 £Increased by 51.61 %
- Average area rental value
- 1,063.00 £/moIncreased by 16.94 %
- Est letting value
- 728.72 £/mo
- Est rental Yield
- 4.08 %Decreased by 9.13 %
- Crime Rate
- 59.00 %Unchanged by 0.00 %
Agent Activity
Revilo Homes Ltd created the listing.
Nearby Schools
| Name | Type | Ofsted | Distance |
|---|---|---|---|
| St Edward'S Church Of England Primary School | Voluntary Controlled School | Good | 0.20 KM |
| Castleton Primary School | Community School | Good | 1.09 KM |
| Castleton Centre | Children's Centre | 1.09 KM | |
| Matthew Moss High School | Academy Converter | 1.11 KM | |
| St Gabriel'S Roman Catholic Primary School, Rochdale | Voluntary Aided School | Good | 1.13 KM |
Images
Nearby Streets
| Name | Average Price | Average Sqft | Distance |
|---|---|---|---|
| Pemberton Street | £ 85,000 | 0 | 0.00 KM |
| Weavers Drive | £ 0 | 0 | 0.00 KM |
| Bideford Road | £ 0 | 0 | 0.00 KM |
| Green Way | £ 215,000 | 0 | 0.00 KM |
| Thirlmere Road | £ 152,500 | 0 | 0.00 KM |
Nearby Transport
| Name | NLC | TLC | Distance |
|---|---|---|---|
| Castleton (Manchester) | 2919 | CAS | 0.55 KM |
| Rochdale | 2924 | RCD | 3.68 KM |
| Mills Hill (Manchester) | 2920 | MIH | 4.93 KM |
| Moston | 2973 | MSO | 7.98 KM |
| Smithy Bridge | 2660 | SMB | 8.79 KM |
Nearby Listings
| Address | Price | Type | Score | Distance |
|---|---|---|---|---|
| Keswick Street, Rochdale, OL11 | £ 170,000 | BUY | 6 / 10 | 0.00 KM |
| KESWICK STREET, Castleton, Rochdale OL11 3AG | £ 165,000 | BUY | 7 / 10 | 0.04 KM |
| Partington Street, Castleton, Rochdale, Greater Manchester, OL11 | £ 120,000 | BUY | 5 / 10 | 0.04 KM |
| KNOLL STREET, Castleton, Rochdale OL11 3JJ | £ 145,000 | BUY | 6 / 10 | 0.07 KM |
| KNOLL STREET, Castleton, Rochdale OL11 3JJ | £ 155,000 | BUY | Unknown | 0.07 KM |
Nearby Properties
| Address | Price | Distance |
|---|---|---|
| 8 Partington Street | £ 109,000 | 0.08 KM |
| 24 Partington Street | £ 80,000 | 0.08 KM |
| 42 Partington Street | £ 99,950 | 0.08 KM |
| 9 Partington Street | £ 36,950 | 0.08 KM |
| 5 Partington Street | £ 50,000 | 0.08 KM |