FA
Lower Queens Road, Buckhurst Hill, IG9
By Farr O'Neil
£ 675,000
Reviews
3 out of 5 stars
Farr O'Neil says ..
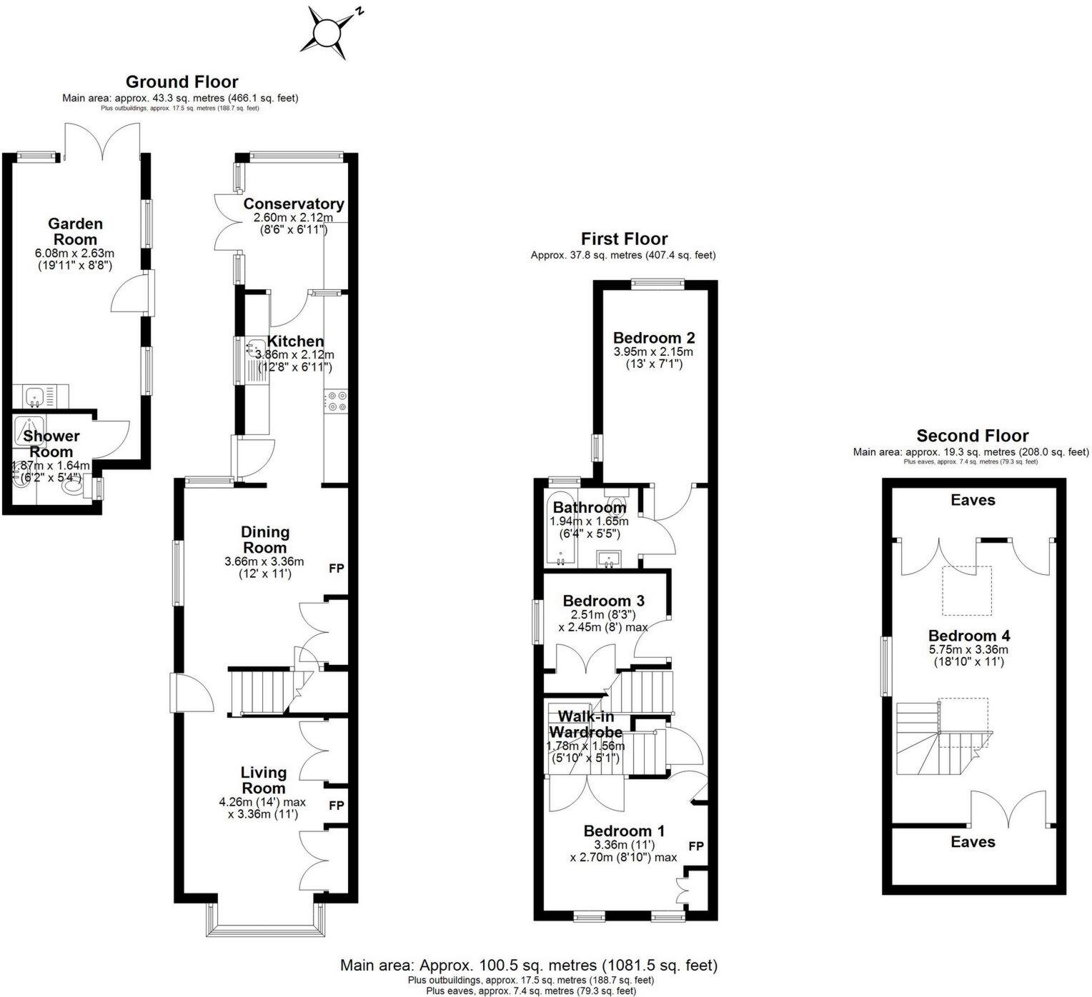
Farr O'Neil are delighted to offer this charming semi-detached Victorian house which offers a wonderful mix of both modern and period features, with two reception rooms, three bedrooms, an extra room in the loft, spacious garden room and parking to the front and rear. The house is ideally ...
Property Oracle says ..
Therefore, we give this property 7 / 10. *Disclaimer: This is our option and does constitute a recommendation or financial advice. Do your own research. *
- Price
- 6
- Condition
- 8
- Location
- 7
- Land
- 7
- Bedrooms
- 3
- Bathrooms
- 1
- Sqft (est)
- 1,165.60
The heatmap indicates the level of crime in the area. The color of the heatmap indicates the crime severity and recency.
Metrics Year-on-Year
- Average area value
- 550,000.00 £Increased by 6.24 %
- Est sale value
- 1,156,275.20 £Increased by 63.43 %
- Average area rental value
- 1,598.00 £/moDecreased by 10.17 %
- Est letting value
- 2,331.20 £/moUnchanged by 0.00 %
- Est rental Yield
- 3.49 %Decreased by 15.29 %
- Crime Rate
- 24.00 %Unchanged by 0.00 %
from 517,711.00 £
from 707,519.20 £
from 1,779.00 £/mo
from 2,331.20 £/mo
from 4.12 %
from 24.00 %
Agent Activity
Farr O'Neil created the listing.
Nearby Schools
| Name | Type | Ofsted | Distance |
|---|---|---|---|
| Buckhurst Hill Community Primary School | Academy Converter | 0.50 KM | |
| The Daiglen School | Other Independent School | 1.22 KM | |
| Loyola Preparatory School | Other Independent School | 1.36 KM | |
| Braeside School | Other Independent School | 1.55 KM | |
| White Bridge Primary School | Academy Converter | 1.60 KM |
Images
Nearby Streets
| Name | Average Price | Average Sqft | Distance |
|---|---|---|---|
| Yew Close | £ 0 | 0 | 0.00 KM |
| Lower Queen's Road | £ 385,833 | 0 | 0.00 KM |
| Willow Close | £ 725,000 | 0 | 0.00 KM |
| Back Lane | £ 0 | 0 | 0.00 KM |
| Holly Close | £ 0 | 0 | 0.00 KM |
Nearby Transport
| Name | NLC | TLC | Distance |
|---|---|---|---|
| Chingford | 6914 | CHI | 4.31 KM |
| Highams Park | 6919 | HIP | 5.65 KM |
| Wood Street | 6954 | WST | 7.03 KM |
| Ilford | 6881 | IFD | 7.72 KM |
| Manor Park | 6883 | MNP | 8.08 KM |
Nearby Listings
| Address | Price | Type | Score | Distance |
|---|---|---|---|---|
| Lower Queens Road, Buckhurst Hill, IG9 | £ 675,000 | BUY | 7 / 10 | 0.00 KM |
| Lower Queens Road, Buckhurst Hill | £ 365,000 | BUY | 6 / 10 | 0.04 KM |
| Blackborough House, Buckhurst Hill, IG9 | £ 425,000 | BUY | 7 / 10 | 0.05 KM |
| The Atrium, Lower Queens Road, Buckhurst Hill | £ 400,000 | BUY | 6 / 10 | 0.06 KM |
| Lower Queens Road, Buckhurst Hill, Essex | £ 425,000 | BUY | 5 / 10 | 0.06 KM |
Nearby Properties
| Address | Price | Distance |
|---|---|---|
| 25 Lower Queens Road | £ 290,000 | 0.04 KM |
| 53 Lower Queens Road | £ 552,000 | 0.04 KM |
| 37 Lower Queens Road | £ 400,000 | 0.04 KM |
| 27 Lower Queens Road | £ 640,000 | 0.04 KM |
| 40 Lower Queens Road | £ 465,000 | 0.04 KM |