Hunters says ..
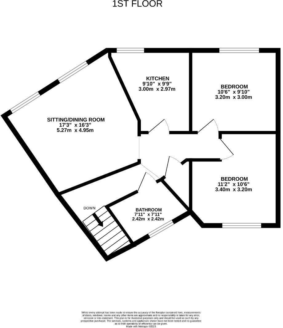
Hunters are pleased to offer this desired style, upper-floor maisonette with its own front door! The flat offers two, well proportioned bedrooms as well as a generous sized living area suitable for entertaining. The kitchen offers an array of wall & base hung cabinetry that provide plenty of spac...
Property Oracle says ..
Therefore, we give this property 6 / 10. *Disclaimer: This is our option and does constitute a recommendation or financial advice. Do your own research. *
- Price
- 7
- Condition
- 6
- Location
- 7
- Land
- 5
- Bedrooms
- 2
- Bathrooms
- 1
- Sqft (est)
- 660.37
The heatmap indicates the level of crime in the area. The color of the heatmap indicates the crime severity and recency.
Metrics Year-on-Year
- Average area value
- 257,097.00 £Decreased by 8.25 %
- Est sale value
- 217,922.10 £Increased by 14.98 %
- Average area rental value
- 956.00 £/moIncreased by 1.92 %
- Est letting value
- 660.37 £/mo
- Est rental Yield
- 4.46 %Increased by 10.95 %
- Crime Rate
- 26.00 %Unchanged by 0.00 %
from 280,201.00 £
from 189,526.19 £
from 938.00 £/mo
from 0.00 £/mo
from 4.02 %
from 26.00 %
Agent Activity
Hunters created the listing.
Nearby Schools
| Name | Type | Ofsted | Distance |
|---|---|---|---|
| Goat Lees Primary School | Foundation School | Good | 0.51 KM |
| Towers School And Sixth Form Centre | Academy Converter | Good | 0.71 KM |
| Sure Steps Children'S Centre | Children's Centre | 0.93 KM | |
| Phoenix Community Primary School | Foundation School | Good | 0.93 KM |
| Kennington Church Of England Academy | Academy Sponsor Led | Good | 1.17 KM |
Images
Nearby Streets
| Name | Average Price | Average Sqft | Distance |
|---|---|---|---|
| Rookery Close | £ 325,000 | 0 | 0.00 KM |
| Grosvenor Road | £ 297,500 | 0 | 0.00 KM |
| Briar Close | £ 0 | 0 | 0.00 KM |
| Walnut Close | £ 300,000 | 0 | 0.00 KM |
| Underwood Close | £ 0 | 0 | 0.00 KM |
Nearby Transport
| Name | NLC | TLC | Distance |
|---|---|---|---|
| Ashford International | 5004 | AFK | 3.15 KM |
| Wye | 5031 | WYE | 5.84 KM |
Nearby Listings
| Address | Price | Type | Score | Distance |
|---|---|---|---|---|
| Kennington, Ashford | £ 200,000 | BUY | 6 / 10 | 0.00 KM |
| Guernsey Way, Kennington, Ashford, Kent | £ 260,000 | BUY | Unknown | 0.04 KM |
| Guernsey Way, Kennington, Ashford, Kent | £ 172,000 | BUY | Unknown | 0.04 KM |
| Guernsey Way, Ashford, TN24 | £ 350,000 | BUY | 6 / 10 | 0.04 KM |
| Guernsey Way, Ashford, Kent, TN24 | £ 275,000 | BUY | 7 / 10 | 0.07 KM |
Nearby Properties
| Address | Price | Distance |
|---|---|---|
| 82 Guernsey Way | £ 290,000 | 0.07 KM |
| 83 Guernsey Way | £ 139,000 | 0.07 KM |
| 17 Guernsey Way | £ 122,995 | 0.07 KM |
| 74 Guernsey Way | £ 210,000 | 0.07 KM |
| 69 Guernsey Way | £ 210,000 | 0.07 KM |