Winkworth says ..
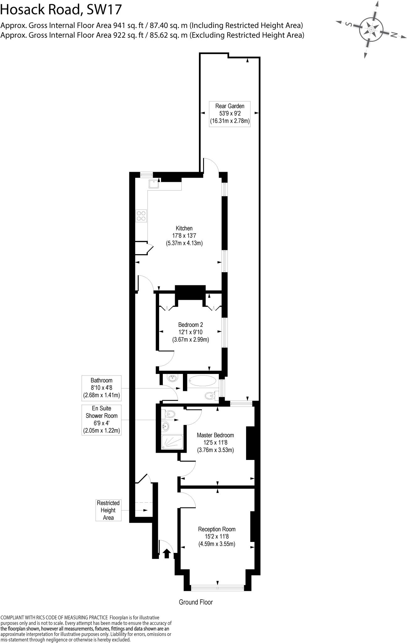
Exceptional two double bedroom garden maisonette which is located on a sought-after residential street. Towards the front is a stunning large reception room which could be used as a third bedroom depending on individual requirements. Master bedroom with gorgeous en-suite shower room, family bathr...
Property Oracle says ..
The property is a 3-bedroom, 2-bathroom ground floor flat located in the Nightingale area of Wandsworth, London. The list price is £875,000, and the property has a size of 921.61 sqft. The average price for properties in the area is £826,860, with an average price per sqft of £814. The property appears to be in good condition, having been recently renovated or updated. The kitchen and bathrooms are modern and well-maintained. The property benefits from a small, well-maintained garden. The location is good, with several schools and transportation options within a reasonable distance. The proximity to Wandsworth Common is a positive attribute. Considering the property’s condition, location, and the relatively small garden, the list price of £875,000 seems slightly above the average price for the area. However, given the modern finishes and desirable location, it could be considered a reasonable price for a buyer seeking a move-in ready property in this area of London.
Therefore, we give this property 6 / 10. *Disclaimer: This is our option and does constitute a recommendation or financial advice. Do your own research. *
- Price
- 7
- Condition
- 9
- Location
- 8
- Land
- 3
- Bedrooms
- 3
- Bathrooms
- 2
- Sqft (est)
- 921.61
The heatmap indicates the level of crime in the area. The color of the heatmap indicates the crime severity and recency.
Metrics Year-on-Year
- Average area value
- 1,130,667.00 £Increased by 13.32 %
- Est sale value
- 1,219,290.03 £Increased by 91.74 %
- Average area rental value
- 2,767.00 £/moIncreased by 5.85 %
- Est letting value
- 2,764.83 £/moIncreased by 200.00 %
- Est rental Yield
- 2.94 %Decreased by 6.37 %
- Crime Rate
- 2.00 %Unchanged by 0.00 %
Agent Activity
Winkworth created the listing.
Nearby Schools
| Name | Type | Ofsted | Distance |
|---|---|---|---|
| Rutherford House School | Free Schools | Good | 0.50 KM |
| Trinity St Mary'S Cofe Primary School | Voluntary Aided School | Good | 0.51 KM |
| Eveline Day School | Other Independent School | 0.52 KM | |
| Hornsby House School | Other Independent School | 0.57 KM | |
| St Anselm'S Catholic Primary School | Voluntary Aided School | Outstanding | 0.58 KM |
Images
Nearby Streets
| Name | Average Price | Average Sqft | Distance |
|---|---|---|---|
| Upper Tooting Park | £ 480,000 | 0 | 0.00 KM |
| Brook Close | £ 0 | 0 | 0.00 KM |
| Balham Park Road | £ 0 | 0 | 0.00 KM |
| Fovant Hut | £ 0 | 0 | 0.00 KM |
| Topsham Road | £ 750,000 | 0 | 0.00 KM |
Nearby Transport
| Name | NLC | TLC | Distance |
|---|---|---|---|
| Wandsworth Common | 5395 | WSW | 0.76 KM |
| Balham | 5399 | BAL | 0.84 KM |
| Tooting | 5389 | TOO | 2.31 KM |
| Clapham Junction | 5595 | CLJ | 2.89 KM |
| Earlsfield | 5584 | EAD | 3.12 KM |
Nearby Listings
| Address | Price | Type | Score | Distance |
|---|---|---|---|---|
| Hosack Road, London, SW17 | £ 875,000 | BUY | 6 / 10 | 0.00 KM |
| Hosack Road, Balham | £ 875,000 | BUY | 8 / 10 | 0.00 KM |
| Hosack Road, SW17 | £ 1,850,000 | BUY | Unknown | 0.05 KM |
| Hosack Road, Wandsworth, London, SW17 | £ 1,850,000 | BUY | Unknown | 0.06 KM |
| Hosack Road, Wandsworth, London, SW17 | £ 2,500,000 | BUY | Unknown | 0.08 KM |
Nearby Properties
| Address | Price | Distance |
|---|---|---|
| 22 Hosack Road | £ 605,000 | 0.03 KM |
| 42a Hosack Road | £ 820,000 | 0.03 KM |
| 10 Hosack Road | £ 1,399,950 | 0.03 KM |
| 36a Hosack Road | £ 820,000 | 0.03 KM |
| 42 Hosack Road | £ 892,500 | 0.03 KM |