Palm Hill, Oxton
BR

Palm Hill, Oxton

By Brennan Ayre O'Neill

£ 500,000

Reviews

3 out of 5 stars

Brennan Ayre O'Neill says ..

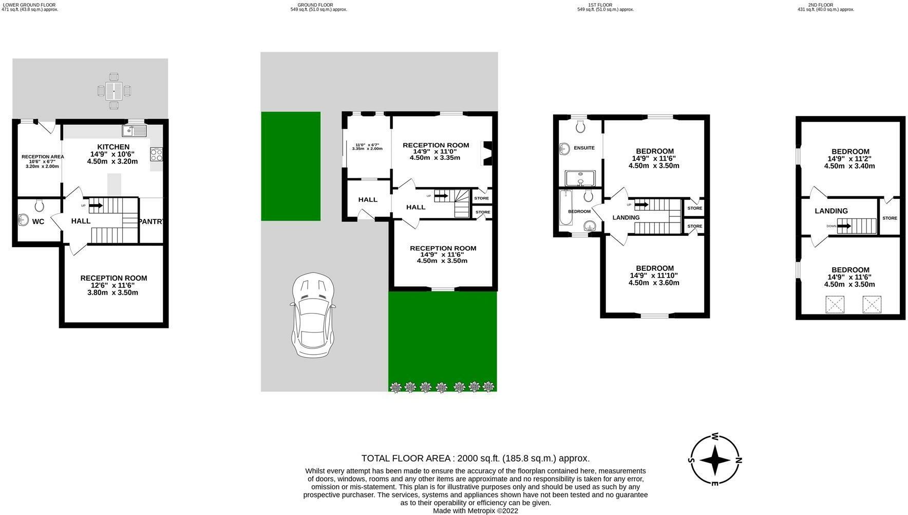
A beautiful home, 'round the corner from the village centre with off road parking - a hugely important feature we bring to your attention immediately, given this property's village location. This is also a home that has been extensively refurbished across its four floors over recent years and enj...

Property Oracle says ..

This four-bedroom, two-bathroom property located on Palm Hill in Oxton, Wirral offers a blend of period charm and modern convenience. The photographs highlight a recently refurbished interior with a modern kitchen, updated bathrooms, and stylish décor throughout. The property appears well-maintained, showing a clear investment in renovation and upgrades. The included space encompasses multiple living areas, suggesting versatility to accommodate a family. Exterior images show a relatively small outdoor space, including a compact yard and a deck. While the precise plot size remains unknown, it does not appear expansive. The location in Oxton benefits from proximity to local shops, restaurants, and transport links. Additionally, there are several highly-rated schools nearby. The asking price is deemed competitive in the context of nearby property prices, although additional detailed comparables would assist in a comprehensive valuation. Overall, the property presents a good opportunity for a family or individual seeking a renovated house in a convenient and sought-after area. Further information on the plot size and details of the recent renovations would help in a more comprehensive assessment of value.

Therefore, we give this property 6 / 10. *Disclaimer: This is our option and does constitute a recommendation or financial advice. Do your own research. *

Price
7
Condition
8
Location
7
Land
3
Bedrooms
4
Bathrooms
2
Sqft (est)
1,999.93

The heatmap indicates the level of crime in the area. The color of the heatmap indicates the crime severity and recency.

Metrics Year-on-Year

Average area value
416,667.00 £
Increased by 57.08 %
from 265,251.00 £
Est sale value
647,977.32 £
Increased by 227.27 %
from 197,993.07 £
Average area rental value
735.00 £/mo
Decreased by 0.41 %
from 738.00 £/mo
Est letting value
0.00 £/mo
from 0.00 £/mo
Est rental Yield
2.12 %
Decreased by 36.53 %
from 3.34 %
Crime Rate
8.00 %
Unchanged by 0.00 %
from 8.00 %

Agent Activity

  • Brennan Ayre O'Neill created the listing.

Nearby Schools

NameTypeOfstedDistance
Prenton Preparatory SchoolOther Independent School0.46 KM
Woodchurch Road Primary SchoolCommunity SchoolRequires improvement0.82 KM
St Joseph'S Catholic Primary School, BirkenheadAcademy Sponsor Led0.82 KM
Birkenhead Park SchoolAcademy Sponsor LedRequires improvement0.86 KM
Birkenhead High School AcademyAcademy Sponsor LedOutstanding1.00 KM

Images

DSC_0008.JPG DSC_0003.JPG DSC_0050.JPG DSC_0019.JPG DSC_0002.JPG DSC_0024.JPG DSC_0028.JPG DSC_0020.JPG DSC_0011.JPG DSC_0036.JPG DSC_0040.JPG DSC_0043.JPG DSC_0045.JPG DSC_0048.JPG DSC_0005.JPG DSC_0009.JPG DSC_0012.JPG DSC_0003.JPG DSC_0016.JPG DSC_0033.JPG DSC_0034.JPG DSC_0038.JPG DSC_0039.JPG DSC_0041.JPG DSC_0042.JPG DSC_0044.JPG DSC_0031.JPG DSC_0013.JPG DSC_0030.JPG DSC_0032.JPG

Nearby Streets

NameAverage PriceAverage SqftDistance
Victoria Lane £ 000.00 KM
Columbia Lane £ 850,00000.00 KM
Devonshire Close £ 000.00 KM
Dudley Close £ 000.00 KM
Devonshire Road £ 150,00000.00 KM

Nearby Transport

NameNLCTLCDistance
Birkenhead Park2220BKP1.66 KM
Birkenhead Central2217BKC2.50 KM
Conway Park3624CNP2.50 KM
Birkenhead North2145BKN2.90 KM
Green Lane2218GNL2.91 KM

Nearby Listings

AddressPriceTypeScoreDistance
Palm Hill, Oxton £ 500,000BUY6 / 100.00 KM
Palm Hill, Prenton, CH43 £ 475,000BUY7 / 100.01 KM
Palm Hill, Oxton, Wirral £ 490,000BUY7 / 100.01 KM
Palm Hill, Oxton, Wirral £ 395,000BUY6 / 100.01 KM
Palm Hill, Oxton £ 395,000BUY7 / 100.03 KM

Nearby Properties

AddressPriceDistance
3 Palm Hill £ 326,0000.01 KM
18a Palm Hill £ 119,0000.01 KM
6 Palm Hill £ 450,1550.01 KM
18 Palm Hill £ 140,0000.01 KM
7 Jarrow Close £ 180,0000.12 KM