Pisces & Acorn Country Park, Welney, PE14 9RJ
By Kavanagh Hayes
£ 149,995
Reviews
2 out of 5 stars
Kavanagh Hayes says ..
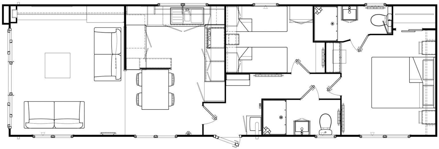
REGAL HARLINGTON 6-Berth 40' x 20' | HOLIDAY HOME | Two Bedrooms | NEW MODEL | Kitchen/Diner | EN-SUITE TO BEDROOM ONE | 12 MONTH PARK OPENING
Property Oracle says ..
This is a modern, two-bedroom lodge located in Pisces Country Park, Welney. The property appears to be in excellent condition, featuring contemporary interiors and well-maintained exteriors. The location, while peaceful, is somewhat remote, with limited access to nearby amenities and varying school ratings. The price is competitive for the area, offering good value for a modern lodge of this size. The limited land is a factor to consider for those seeking extensive outdoor space. Overall, this property would suit those looking for a well-presented, modern living space in a quiet, rural setting. The lodge benefits from modern fixtures and fittings. The lodge is located in a rural area, so transport links are limited. The nearest train station is 8km away. The lodge is in good condition and would be ideal for those looking for a modern living space. The lodge has limited land, so it is not suitable for those looking for a large garden.
Therefore, we give this property 5 / 10. *Disclaimer: This is our option and does constitute a recommendation or financial advice. Do your own research. *
- Price
- 7
- Condition
- 9
- Location
- 4
- Land
- 3
- Bedrooms
- 2
- Bathrooms
- 0
- Sqft (est)
- 830.00
The heatmap indicates the level of crime in the area. The color of the heatmap indicates the crime severity and recency.
Metrics Year-on-Year
- Average area value
- 245,074.00 £Decreased by 15.93 %
- Est sale value
- 195,050.00 £Decreased by 37.50 %
- Average area rental value
- 1,254.00 £/moDecreased by 5.43 %
- Est letting value
- 830.00 £/moUnchanged by 0.00 %
- Est rental Yield
- 6.14 %Increased by 12.45 %
- Crime Rate
- 0.00 %
Agent Activity
Kavanagh Hayes created the listing.
Nearby Schools
| Name | Type | Ofsted | Distance |
|---|---|---|---|
| Townley Primary School | Community School | Requires improvement | 6.31 KM |
| Highfield Littleport Academy | Academy Special Sponsor Led | 8.05 KM | |
| Littleport Child And Family Centre | Children's Centre | 8.17 KM | |
| Littleport & East Cambs Academy | Academy Sponsor Led | 8.27 KM | |
| Littleport Community Primary School | Community School | Good | 8.28 KM |
Images
Nearby Streets
| Name | Average Price | Average Sqft | Distance |
|---|---|---|---|
| Bedford Bank (East) | £ 0 | 0 | 0.00 KM |
| Chestnut Avenue | £ 0 | 0 | 0.00 KM |
| Bedford Bank (West) | £ 75,648 | 0 | 0.00 KM |
| Wash Road | £ 0 | 0 | 0.00 KM |
Nearby Transport
| Name | NLC | TLC | Distance |
|---|---|---|---|
| Manea | 7165 | MNE | 8.09 KM |
| Littleport | 7072 | LTP | 9.78 KM |
Nearby Listings
| Address | Price | Type | Score | Distance |
|---|---|---|---|---|
| Pisces & Acorn Country Park, Welney, PE14 9RJ | £ 149,995 | BUY | 5 / 10 | 0.00 KM |
| Bedford Bank, Wisbech, PE14 | £ 99,995 | BUY | 5 / 10 | 0.01 KM |
| Bedford Bank, Wisbech, PE14 | £ 64,995 | BUY | 5 / 10 | 0.01 KM |
| Bedford Bank, Wisbech, PE14 | £ 99,995 | BUY | Unknown | 0.01 KM |
| Pisces Country Park, Welney | £ 69,995 | BUY | 5 / 10 | 0.01 KM |
Nearby Properties
| Address | Price | Distance |
|---|---|---|
| Plover Cottage | £ 137,500 | 0.05 KM |
| River Cottage | £ 122,600 | 0.05 KM |
| Mill Row | £ 435,000 | 0.10 KM |
| Meadow Cottage | £ 157,500 | 0.10 KM |
| Twilight Fen | £ 234,500 | 0.42 KM |