Ocean says ..
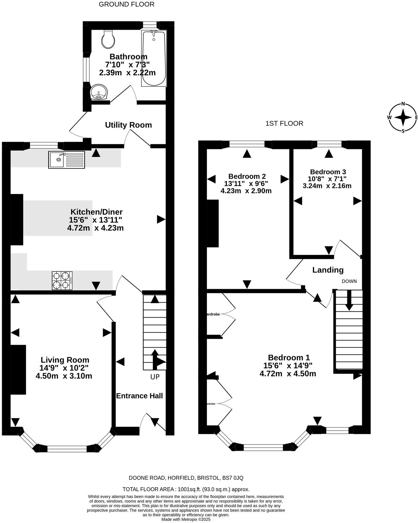
A charming three bedroom Victorian terrace home situated on the highly sought after Doone Road in Horfield. This property is being offered to the market with no onward chain.
Property Oracle says ..
Therefore, we give this property 6 / 10. *Disclaimer: This is our option and does constitute a recommendation or financial advice. Do your own research. *
- Price
- 6
- Condition
- 6
- Location
- 7
- Land
- 5
- Bedrooms
- 3
- Bathrooms
- 1
- Sqft (est)
- 857.99
The heatmap indicates the level of crime in the area. The color of the heatmap indicates the crime severity and recency.
Metrics Year-on-Year
- Average area value
- 323,325.00 £Decreased by 19.58 %
- Est sale value
- 314,024.34 £Increased by 9.58 %
- Average area rental value
- 2,079.00 £/moIncreased by 10.59 %
- Est letting value
- 1,715.98 £/moIncreased by 100.00 %
- Est rental Yield
- 7.72 %Increased by 37.61 %
- Crime Rate
- 8.00 %Unchanged by 0.00 %
from 402,057.00 £
from 286,568.66 £
from 1,880.00 £/mo
from 857.99 £/mo
from 5.61 %
from 8.00 %
Agent Activity
Ocean marked this listing as sold.
Ocean created the listing.
Nearby Schools
| Name | Type | Ofsted | Distance |
|---|---|---|---|
| Orchard School Bristol | Academy Sponsor Led | Good | 0.43 KM |
| Upper Horfield Primary School | Community School | Requires improvement | 0.52 KM |
| Upper Horfield Children'S Centre & Community School | Children's Centre | 0.58 KM | |
| Filton Avenue Nursery School | Local Authority Nursery School | Outstanding | 0.70 KM |
| Filton Avenue Primary School | Academy Converter | Requires improvement | 0.71 KM |
Images
Nearby Streets
| Name | Average Price | Average Sqft | Distance |
|---|---|---|---|
| Priory Gardens | £ 0 | 0 | 0.00 KM |
| A38 | £ 0 | 0 | 0.00 KM |
| Joyce Close | £ 0 | 0 | 0.00 KM |
| Park Road | £ 582,857 | 0 | 0.00 KM |
| Newbury Road | £ 335,000 | 0 | 0.00 KM |
Nearby Transport
| Name | NLC | TLC | Distance |
|---|---|---|---|
| Filton Abbey Wood | 3235 | FIT | 2.21 KM |
| Montpelier | 3203 | MTP | 3.14 KM |
| Stapleton Road | 3250 | SRD | 3.42 KM |
| Redland | 3247 | RDA | 3.67 KM |
| Patchway | 3213 | PWY | 3.91 KM |
Nearby Listings
| Address | Price | Type | Score | Distance |
|---|---|---|---|---|
| Doone Road, Horfield, Bristol | £ 380,000 | BUY | 6 / 10 | 0.00 KM |
| Boston Road, Horfield, Bristol | £ 415,000 | BUY | 6 / 10 | 0.03 KM |
| Doone Road, Horfield | £ 395,000 | BUY | 7 / 10 | 0.05 KM |
| Boston Road, Bristol, BS7 | £ 475,000 | BUY | Unknown | 0.06 KM |
| Boston Road, Horfield, Bristol | £ 485,000 | BUY | 7 / 10 | 0.06 KM |
Nearby Properties
| Address | Price | Distance |
|---|---|---|
| 37 Doone Road | £ 275,250 | 0.03 KM |
| 47 Doone Road | £ 45,000 | 0.03 KM |
| 27 Doone Road | £ 60,000 | 0.03 KM |
| 35 Doone Road | £ 167,500 | 0.03 KM |
| 41 Doone Road | £ 139,000 | 0.03 KM |