Ben Rose says ..
Ben Rose Estate Agents are pleased to present to market this charming two-bedroom semi-detached bungalow, located in the desirable and well-connected area of Euxton, Lancashire. Perfectly suited for a couple seeking a blend of comfort and convenience, this lovely home sits within easy reach of lo...
Property Oracle says ..
This semi-detached bungalow in Euxton, Chorley is listed at £209,995. The property benefits from a good location, close to well-regarded schools and transport links. The bungalow appears to be in good condition, with a well-maintained garden and patio area. While the average house price in the area is significantly higher (£515,185), this property is smaller and may appeal to buyers seeking a more affordable option. The price per square foot is also lower than the area average. However, potential buyers should consider the smaller plot size and compare it to similar properties in the area before making a decision.
Therefore, we give this property 7 / 10. *Disclaimer: This is our option and does constitute a recommendation or financial advice. Do your own research. *
- Price
- 7
- Condition
- 8
- Location
- 9
- Land
- 7
- Bedrooms
- 2
- Bathrooms
- 1
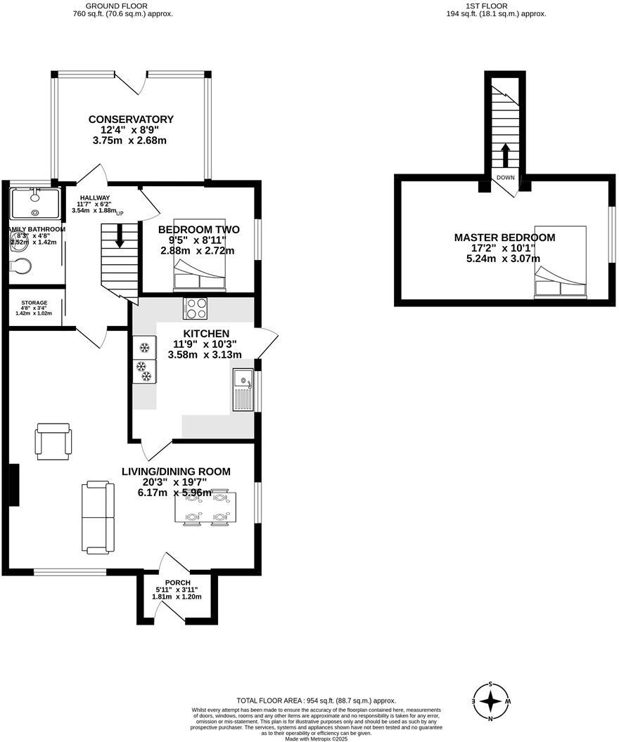
- Sqft (est)
- 954.00
The heatmap indicates the level of crime in the area. The color of the heatmap indicates the crime severity and recency.
Metrics Year-on-Year
- Average area value
- 445,205.00 £Decreased by 3.69 %
- Est sale value
- 615,330.00 £Increased by 20.34 %
- Average area rental value
- 1,836.00 £/moIncreased by 4.79 %
- Est letting value
- 1,908.00 £/moUnchanged by 0.00 %
- Est rental Yield
- 4.95 %Increased by 8.79 %
- Crime Rate
- 16.00 %Unchanged by 0.00 %
Agent Activity
Ben Rose created the listing.
Nearby Schools
| Name | Type | Ofsted | Distance |
|---|---|---|---|
| Balshaw Lane Community Primary School | Community School | Outstanding | 0.33 KM |
| Euxton Church Of England Voluntary Aided Primary School | Voluntary Aided School | Outstanding | 1.16 KM |
| St. Mary'S Catholic Primary School Euxton | Voluntary Aided School | Outstanding | 1.24 KM |
| Lancashire College Of Adult Education | Miscellaneous | 1.88 KM | |
| Euxton Primrose Hill Primary School | Community School | Outstanding | 2.13 KM |
Images
Nearby Streets
| Name | Average Price | Average Sqft | Distance |
|---|---|---|---|
| Talbot Row | £ 0 | 0 | 0.00 KM |
| Coniston Avenue | £ 210,000 | 0 | 0.00 KM |
| Marquess Avenue | £ 0 | 0 | 0.00 KM |
| Lord Way | £ 0 | 0 | 0.00 KM |
| Marchioness Drive | £ 0 | 0 | 0.00 KM |
Nearby Transport
| Name | NLC | TLC | Distance |
|---|---|---|---|
| Euxton Balshaw Lane | 2080 | EBA | 0.61 KM |
| Buckshaw Parkway | 7501 | BSV | 1.43 KM |
| Chorley | 2745 | CRL | 4.53 KM |
| Leyland | 2710 | LEY | 4.69 KM |
| Bamber Bridge | 2561 | BMB | 7.25 KM |
Nearby Listings
| Address | Price | Type | Score | Distance |
|---|---|---|---|---|
| Queensway, Euxton, Chorley | £ 209,995 | BUY | 7 / 10 | 0.00 KM |
| Queensway, Euxton, Chorley | £ 299,995 | BUY | 8 / 10 | 0.04 KM |
| Kingsway, Euxton | £ 167,500 | BUY | 7 / 10 | 0.09 KM |
| Talbot Drive, Euxton, Chorley, Lancashire, PR7 | £ 260,000 | BUY | 6 / 10 | 0.12 KM |
| Queensway, Euxton, Chorley | £ 265,000 | BUY | 8 / 10 | 0.17 KM |
Nearby Properties
| Address | Price | Distance |
|---|---|---|
| 6 Talbot Drive | £ 185,000 | 0.14 KM |
| 19 Talbot Drive | £ 123,000 | 0.14 KM |
| 47 Talbot Drive | £ 166,000 | 0.14 KM |
| 37 Talbot Drive | £ 230,000 | 0.14 KM |
| 49 Talbot Drive | £ 134,500 | 0.14 KM |