Haybrook says ..
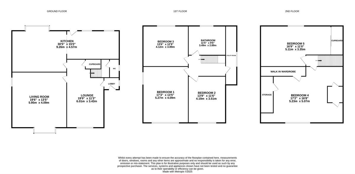
A truly exceptional period detached home offering five double bedrooms, abundant character, and high-end finishes throughout. This beautifully appointed Victorian residence, believed to date back to the 1880s, sits proudly on an elevated plot just moments from Chapeltown Centre
Property Oracle says ..
Therefore, we give this property 8 / 10. *Disclaimer: This is our option and does constitute a recommendation or financial advice. Do your own research. *
- Price
- 9
- Condition
- 8
- Location
- 8
- Land
- 7
- Bedrooms
- 5
- Bathrooms
- 1
- Sqft (est)
- 2,080.34
The heatmap indicates the level of crime in the area. The color of the heatmap indicates the crime severity and recency.
Metrics Year-on-Year
- Average area value
- 276,071.00 £Increased by 29.23 %
- Est sale value
- 696,913.90 £Increased by 50.90 %
- Average area rental value
- 713.00 £/moDecreased by 20.69 %
- Est letting value
- 0.00 £/mo
- Est rental Yield
- 3.10 %Decreased by 38.61 %
- Crime Rate
- 21.00 %Unchanged by 0.00 %
from 213,623.00 £
from 461,835.48 £
from 899.00 £/mo
from 0.00 £/mo
from 5.05 %
from 21.00 %
Agent Activity
Haybrook created the listing.
Nearby Schools
| Name | Type | Ofsted | Distance |
|---|---|---|---|
| Chapeltown | Children's Centre Linked Site | 0.21 KM | |
| Lound Junior School | Academy Converter | Good | 0.41 KM |
| Lound Infant School | Academy Converter | Good | 0.66 KM |
| Coit Primary School | Community School | Outstanding | 0.75 KM |
| Windmill Hill Primary School | Academy Converter | 1.10 KM |
Images
Nearby Streets
| Name | Average Price | Average Sqft | Distance |
|---|---|---|---|
| Arncliffe Drive | £ 0 | 0 | 0.00 KM |
| Commerce Street | £ 160,000 | 0 | 0.00 KM |
| Park Terrace | £ 330,000 | 0 | 0.00 KM |
| Byron Avenue | £ 0 | 0 | 0.00 KM |
| Lane End | £ 0 | 0 | 0.00 KM |
Nearby Transport
| Name | NLC | TLC | Distance |
|---|---|---|---|
| Chapeltown (South Yorkshire) | 6664 | CLN | 0.56 KM |
| Elsecar | 6667 | ELR | 6.34 KM |
| Meadowhall | 6663 | MHS | 8.14 KM |
| Wombwell | 6688 | WOM | 8.67 KM |
| Sheffield | 6691 | SHF | 9.38 KM |
Nearby Listings
| Address | Price | Type | Score | Distance |
|---|---|---|---|---|
| Burncross Road, Chapeltown | £ 450,000 | BUY | 8 / 10 | 0.00 KM |
| Grantley Mews, Chapeltown | £ 400,000 | BUY | 6 / 10 | 0.05 KM |
| Grantley Mews, Sheffield | £ 375,000 | BUY | Unknown | 0.07 KM |
| Greenhead Lane, Chapeltown, Sheffield, South Yorkshire, S35 | £ 160,000 | BUY | 7 / 10 | 0.13 KM |
| Greenhead Lane, Chapeltown, Sheffield | £ 200,000 | BUY | 7 / 10 | 0.14 KM |
Nearby Properties
| Address | Price | Distance |
|---|---|---|
| 10 Greenhead Lane | £ 80,000 | 0.14 KM |
| 64 Greenhead Lane | £ 355,000 | 0.14 KM |
| 26 Greenhead Lane | £ 250,000 | 0.14 KM |
| 7 Nether Ley Court | £ 133,500 | 0.14 KM |
| 15 Nether Ley Court | £ 180,000 | 0.14 KM |