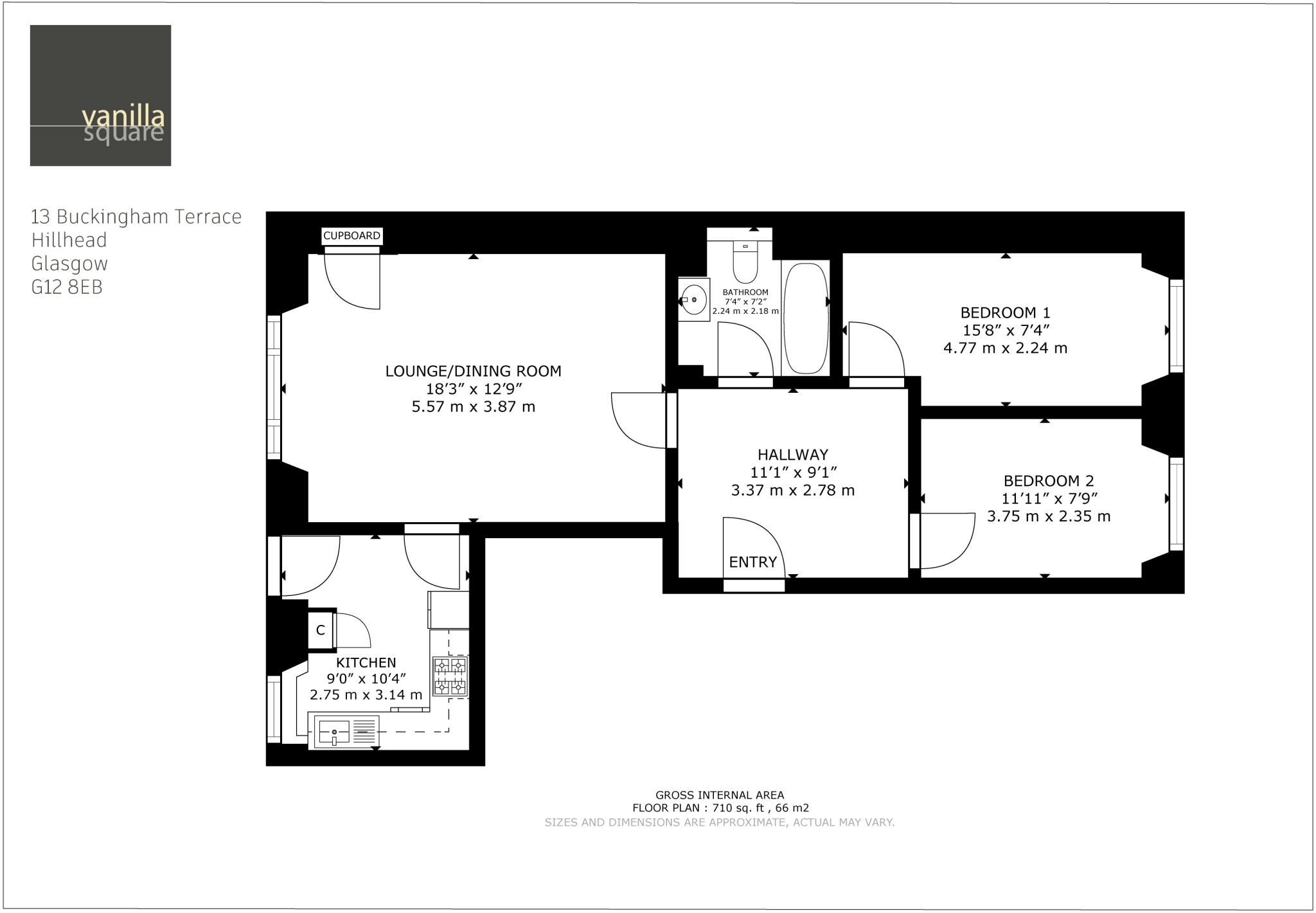
Buckingham Terrace, Botanics
VA

Buckingham Terrace, Botanics

By Vanilla Square

£ 205,000

Reviews

3 out of 5 stars

Vanilla Square says ..

Stunning Two Bedroom Ground Floor Conversion in a Handsome Sandstone Townhouse.

Property Oracle says ..

This is a two-bedroom flat in the Hillhead area of Glasgow. The property is in a good location, close to amenities and transportation. The flat itself is in generally good condition, with a modern kitchen and bathroom. The property also benefits from a garden. The list price of £205,000 appears reasonable for the area and the condition of the property.

Therefore, we give this property 7 / 10. *Disclaimer: This is our option and does constitute a recommendation or financial advice. Do your own research. *

Price
7
Condition
7
Location
8
Land
7
Bedrooms
2
Bathrooms
1
Sqft (est)
688.34

The heatmap indicates the level of crime in the area. The color of the heatmap indicates the crime severity and recency.

Metrics Year-on-Year

Average area value
235,300.00 £
Decreased by 27.76 %
from 325,723.00 £
Est sale value
206,502.00 £
Decreased by 14.53 %
from 241,607.34 £
Average area rental value
1,777.00 £/mo
Decreased by 8.12 %
from 1,934.00 £/mo
Est letting value
1,376.68 £/mo
Unchanged by 0.00 %
from 1,376.68 £/mo
Est rental Yield
9.06 %
Increased by 27.07 %
from 7.13 %
Crime Rate
0.00 %
from 0.00 %

Agent Activity

  • Vanilla Square created the listing.

Images

58-print-13 Bucki... 60-print-13 Bucki... 2-print-13 Buckin... 28-print-13 Bucki... 17-print-13 Bucki... 29-print-13 Bucki... 27-print-13 Bucki... 30-print-13 Bucki... 49-print-13 Bucki... 39-print-13 Bucki... 41-print-13 Bucki... 1-print-13 Buckin... 63-print-13 Bucki... 37-print-13 Bucki... 31-print-13 Bucki... 47-print-13 Bucki... 52-print-13 Bucki... 53-print-13 Bucki... 50-print-13 Bucki... 11-print-13 Bucki... 9-print-13 Buckin... 67-print-13 Bucki... 8-print-13 Buckin...

Nearby Streets

NameAverage PriceAverage SqftDistance
Hamilton Gardens £ 000.00 KM
Belmont Lane £ 000.00 KM
Forensic Lane £ 324,99800.00 KM
Oban Lane £ 000.00 KM
Grosvenor Lane £ 135,00000.00 KM

Nearby Transport

NameNLCTLCDistance
Exhibition Centre (Glasgow)9914EXG1.78 KM
Gilshochill9956GSC2.28 KM
Charing Cross (Glasgow)9911CHC2.34 KM
Summerston9959SUM2.46 KM
Partick9917PTK2.56 KM

Nearby Listings

AddressPriceTypeScoreDistance
Buckingham Terrace, Botanics £ 205,000BUY7 / 100.00 KM
Buckingham Terrace, Botanics, Glasgow £ 225,000BUY6 / 100.01 KM
3/2 8 Alfred Terrace, Hillhead, G12 8RG £ 250,000BUY6 / 100.08 KM
15 Cecil Street, Hillhead, G12 £ 189,000BUY6 / 100.11 KM
Buckingham Street, Botanics £ 299,995BUY6 / 100.13 KM