BidX1 says ..
To be sold at an online auction. For further information, viewing times and legal documentation, please visit bidx1.com.
Property Oracle says ..
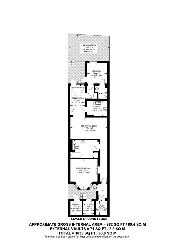
This is a two-bedroom flat in Finborough Road, London. The property is in a desirable location, close to transportation and schools. The flat has two bathrooms and a patio garden. The property appears to be in reasonable condition, with modern fixtures and fittings. The asking price of £675,000 seems reasonable for the area.
Therefore, we give this property 7 / 10. *Disclaimer: This is our option and does constitute a recommendation or financial advice. Do your own research. *
- Price
- 7
- Condition
- 7
- Location
- 8
- Land
- 6
- Bedrooms
- 2
- Bathrooms
- 2
The heatmap indicates the level of crime in the area. The color of the heatmap indicates the crime severity and recency.
Metrics Year-on-Year
- Average area value
- 915,500.00 £Decreased by 45.09 %
- Average area rental value
- 2,342.00 £/moIncreased by 5.78 %
- Est rental Yield
- 3.07 %Increased by 93.08 %
- Crime Rate
- 5.00 %Unchanged by 0.00 %
Agent Activity
BidX1 created the listing.
Nearby Schools
| Name | Type | Ofsted | Distance |
|---|---|---|---|
| Godolphin And Latymer Redcliffe Gardens School | Other Independent School | 0.30 KM | |
| Bousfield Primary School | Community School | Outstanding | 0.55 KM |
| St Cuthbert With St Matthias Ce Primary School And Earl'S Court Children'S Centre | Children's Centre | 0.59 KM | |
| St Cuthbert With St Matthias Cofe Primary School | Voluntary Aided School | Good | 0.59 KM |
| Servite Rc Primary School | Voluntary Aided School | Outstanding | 0.62 KM |
Images
Nearby Streets
| Name | Average Price | Average Sqft | Distance |
|---|---|---|---|
| Wharfedale Street | £ 0 | 0 | 0.00 KM |
| Kempsford Gardens | £ 0 | 0 | 0.00 KM |
| Collingham Gardens | £ 0 | 0 | 0.00 KM |
| Britannia Gate | £ 0 | 0 | 0.00 KM |
| West Road | £ 0 | 0 | 0.00 KM |
Nearby Transport
| Name | NLC | TLC | Distance |
|---|---|---|---|
| West Brompton | 8875 | WBP | 0.70 KM |
| Imperial Wharf | 9586 | IMW | 1.46 KM |
| Kensington (Olympia) | 3092 | KPA | 2.66 KM |
| Wandsworth Town | 5576 | WNT | 2.83 KM |
| Clapham Junction | 5595 | CLJ | 3.25 KM |
Nearby Listings
| Address | Price | Type | Score | Distance |
|---|---|---|---|---|
| Finborough Road, London, SW10 | £ 675,000 | BUY | 7 / 10 | 0.00 KM |
| Westgate Terrace, Chelsea, London, SW10 | £ 1,250,000 | BUY | 8 / 10 | 0.01 KM |
| Westgate Terrace, Chelsea, London, SW10 | £ 830,000 | BUY | 7 / 10 | 0.01 KM |
| Finborough Road, Earl's Court, SW10 | £ 599,000 | BUY | Unknown | 0.02 KM |
| Westgate Terrace, Earls Court, SW10 | £ 895,000 | BUY | Unknown | 0.03 KM |
Nearby Properties
| Address | Price | Distance |
|---|---|---|
| 20a Westgate Terrace | £ 900,000 | 0.02 KM |
| 16b Westgate Terrace | £ 870,000 | 0.02 KM |
| 14a Westgate Terrace | £ 290,000 | 0.02 KM |
| 12 Westgate Terrace | £ 790,000 | 0.02 KM |
| 16a Westgate Terrace | £ 338,000 | 0.02 KM |