FO
Vine Close, Ramsgate, CT11 7BN
By Footprints, Powered by eXp UK
£ 260,000
Reviews
3 out of 5 stars
Footprints, Powered by eXp UK says ..
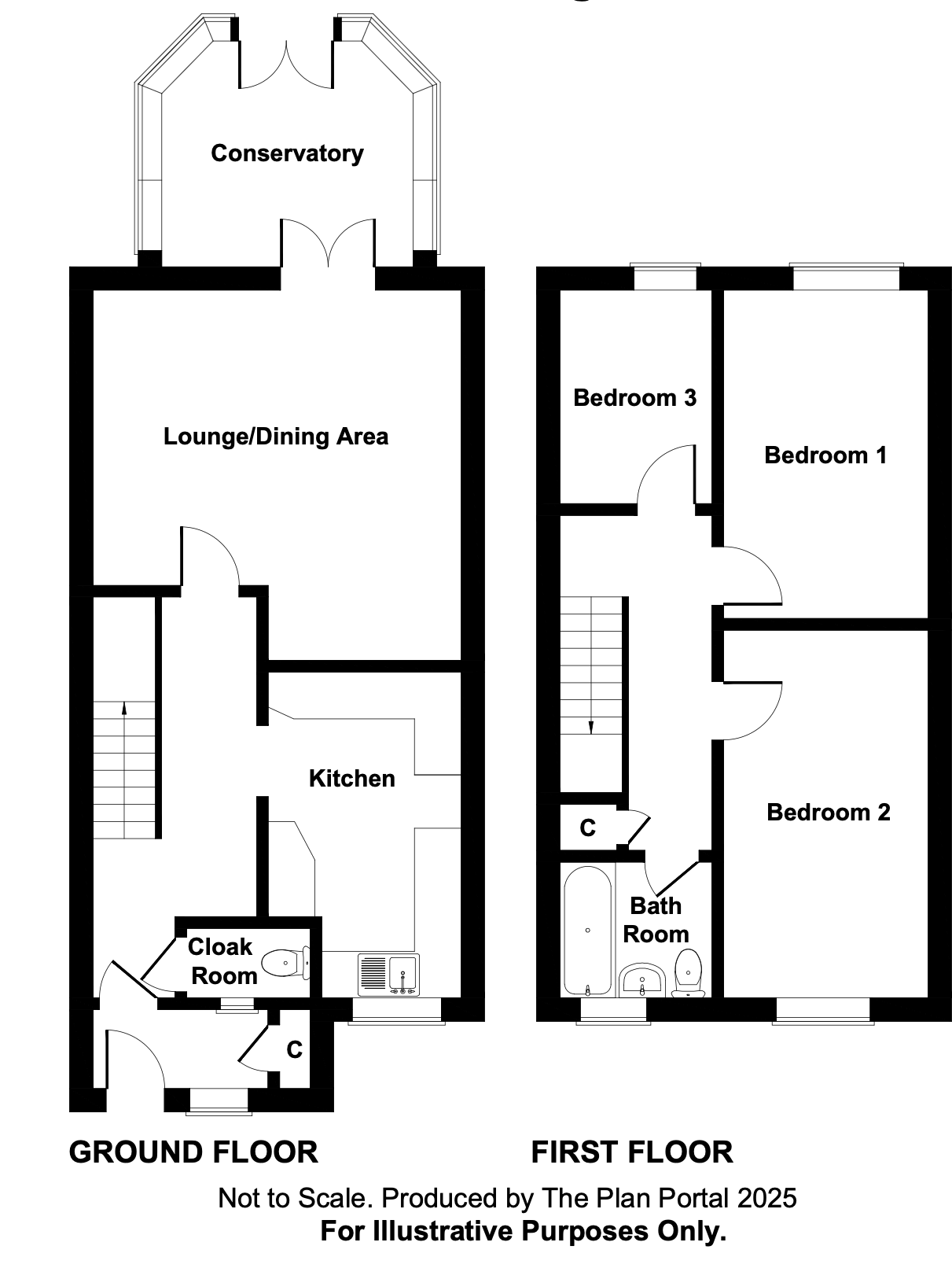
Beautifully Renovated 3-Bedroom End of Terrace Home – Vine Close, Ramsgate
Property Oracle says ..
Therefore, we give this property 7 / 10. *Disclaimer: This is our option and does constitute a recommendation or financial advice. Do your own research. *
- Price
- 9
- Condition
- 8
- Location
- 7
- Land
- 7
- Bedrooms
- 3
- Bathrooms
- 1
- Sqft (est)
- 953.00
The heatmap indicates the level of crime in the area. The color of the heatmap indicates the crime severity and recency.
Metrics Year-on-Year
- Average area value
- 338,398.00 £Increased by 11.63 %
- Est sale value
- 358,328.00 £Increased by 5.92 %
- Average area rental value
- 995.00 £/moDecreased by 10.28 %
- Est letting value
- 953.00 £/moUnchanged by 0.00 %
- Est rental Yield
- 3.53 %Decreased by 19.59 %
- Crime Rate
- 4.00 %Unchanged by 0.00 %
from 303,148.00 £
from 338,315.00 £
from 1,109.00 £/mo
from 953.00 £/mo
from 4.39 %
from 4.00 %
Agent Activity
Footprints, Powered by eXp UK created the listing.
Nearby Schools
| Name | Type | Ofsted | Distance |
|---|---|---|---|
| Newlands Children'S Centre | Children's Centre | 0.56 KM | |
| Newlands Primary School | Academy Sponsor Led | Good | 0.56 KM |
| Bromstone Primary School, Broadstairs | Foundation School | Good | 0.78 KM |
| Foreland Fields School | Foundation Special School | Good | 0.84 KM |
| St Lawrence College Junior School | Other Independent School | 0.85 KM |
Images
Nearby Streets
| Name | Average Price | Average Sqft | Distance |
|---|---|---|---|
| Vine End | £ 145,000 | 0 | 0.00 KM |
| Springfield Close | £ 265,100 | 0 | 0.00 KM |
| Shirley Avenue | £ 0 | 0 | 0.00 KM |
| Parkwood Close | £ 542,488 | 0 | 0.00 KM |
| Marlborough Close | £ 0 | 0 | 0.00 KM |
Nearby Transport
| Name | NLC | TLC | Distance |
|---|---|---|---|
| Dumpton Park | 5034 | DMP | 0.94 KM |
| Ramsgate | 5023 | RAM | 1.67 KM |
| Broadstairs | 5006 | BSR | 2.05 KM |
| Margate | 5018 | MAR | 6.47 KM |
| Westgate-On-Sea | 5195 | WGA | 9.52 KM |
Nearby Listings
| Address | Price | Type | Score | Distance |
|---|---|---|---|---|
| Vine Close, Ramsgate, CT11 7BN | £ 260,000 | BUY | 7 / 10 | 0.00 KM |
| Vine Close, Ramsgate, CT11 7BN | £ 250,000 | BUY | 7 / 10 | 0.00 KM |
| Vine Close, Ramsgate, CT11 | £ 250,000 | BUY | 7 / 10 | 0.02 KM |
| Vine Close, Ramsgate | £ 250,000 | BUY | 7 / 10 | 0.02 KM |
| Vine Close, Ramsgate, Kent | £ 250,000 | BUY | 7 / 10 | 0.04 KM |
Nearby Properties
| Address | Price | Distance |
|---|---|---|
| 66 Vine Close | £ 195,000 | 0.01 KM |
| 72 Vine Close | £ 240,000 | 0.01 KM |
| 64 Vine Close | £ 128,000 | 0.01 KM |
| 2 Moss End Mews | £ 163,000 | 0.12 KM |
| 1 Moss End Mews | £ 215,000 | 0.12 KM |