Cocoon (UK) says ..
Stylish 1-Bedroom Flat for Sale – Move-In Ready & Newly Renovated! Contact Step into your beautifully refurbished 1-bedroom flat, available immediately, perfect for first-time buyers or savvy investors. Located on the edge of Clapham Manor Estate on a pedestrian street with loads...
Property Oracle says ..
Therefore, we give this property 6 / 10. *Disclaimer: This is our option and does constitute a recommendation or financial advice. Do your own research. *
- Price
- 8
- Condition
- 7
- Location
- 8
- Land
- 1
- Bedrooms
- 1
- Bathrooms
- 1
- Sqft (est)
- 482.44
The heatmap indicates the level of crime in the area. The color of the heatmap indicates the crime severity and recency.
Metrics Year-on-Year
- Average area value
- 778,214.00 £Increased by 6.31 %
- Est sale value
- 456,388.24 £Decreased by 2.07 %
- Average area rental value
- 3,038.00 £/moIncreased by 13.91 %
- Est letting value
- 1,447.32 £/moUnchanged by 0.00 %
- Est rental Yield
- 4.68 %Increased by 7.09 %
- Crime Rate
- 3.00 %Unchanged by 0.00 %
from 732,014.00 £
from 466,037.04 £
from 2,667.00 £/mo
from 1,447.32 £/mo
from 4.37 %
from 3.00 %
Agent Activity
Cocoon (UK) created the listing.
Nearby Schools
| Name | Type | Ofsted | Distance |
|---|---|---|---|
| Clapham Manor Primary School And Children'S Centre | Children's Centre | 0.17 KM | |
| Clapham Manor Primary School | Community School | Outstanding | 0.17 KM |
| Heathbrook Primary School & Children'S Centre | Children's Centre | 0.67 KM | |
| Heathbrook Primary School | Community School | Good | 0.73 KM |
| St Mary'S Roman Catholic Primary School | Voluntary Aided School | Outstanding | 0.74 KM |
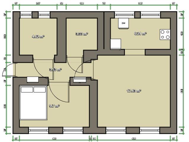
Images
Nearby Streets
| Name | Average Price | Average Sqft | Distance |
|---|---|---|---|
| Clapham Manor Court | £ 0 | 0 | 0.00 KM |
| Disused foot tunnel | £ 0 | 0 | 0.00 KM |
| North Street Mews | £ 695,000 | 0 | 0.00 KM |
| Pensbury Place | £ 0 | 0 | 0.00 KM |
| Nelson's Row | £ 0 | 0 | 0.00 KM |
Nearby Transport
| Name | NLC | TLC | Distance |
|---|---|---|---|
| Wandsworth Road | 5372 | WWR | 0.50 KM |
| Clapham High Street | 5301 | CLP | 0.64 KM |
| Queenstown Road (Battersea) | 5596 | QRB | 1.39 KM |
| Battersea Park | 5420 | BAK | 1.61 KM |
| Brixton | 5081 | BRX | 2.68 KM |
Nearby Listings
| Address | Price | Type | Score | Distance |
|---|---|---|---|---|
| Hickmore Walk, London | £ 390,000 | BUY | 6 / 10 | 0.00 KM |
| Offerton Road, London, SW4 | £ 650,000 | BUY | 7 / 10 | 0.03 KM |
| Offerton Road, London | £ 625,000 | BUY | 5 / 10 | 0.04 KM |
| Cubitt Terrace, Clapham Old Town | £ 900,000 | BUY | 6 / 10 | 0.09 KM |
| Knowles Walk, Clapham Old Town, London, SW4 | £ 400,000 | BUY | 5 / 10 | 0.10 KM |
Nearby Properties
| Address | Price | Distance |
|---|---|---|
| 9 Offerton Road | £ 1,350,000 | 0.04 KM |
| 7 Offerton Road | £ 1,125,000 | 0.04 KM |
| 15 Offerton Road | £ 1,400,000 | 0.04 KM |
| 14 Offerton Road | £ 2,325,000 | 0.04 KM |
| 12 Offerton Road | £ 1,695,000 | 0.04 KM |