The Tavor - Plot 16, The Ropery, Argyle St, Hebburn
By WalkersXchange
£ 199,950
Reviews
3 out of 5 stars
WalkersXchange says ..
The Tavor, Plot 16, The Ropery - LIMITED PERIOD - BUY WITH A £2,000 incentive towards extras. Incorporating a variety of house styles that are designed to captivate today's discerning buyers, offering a blend of modern amenities, stylish design, and functional l...
Property Oracle says ..
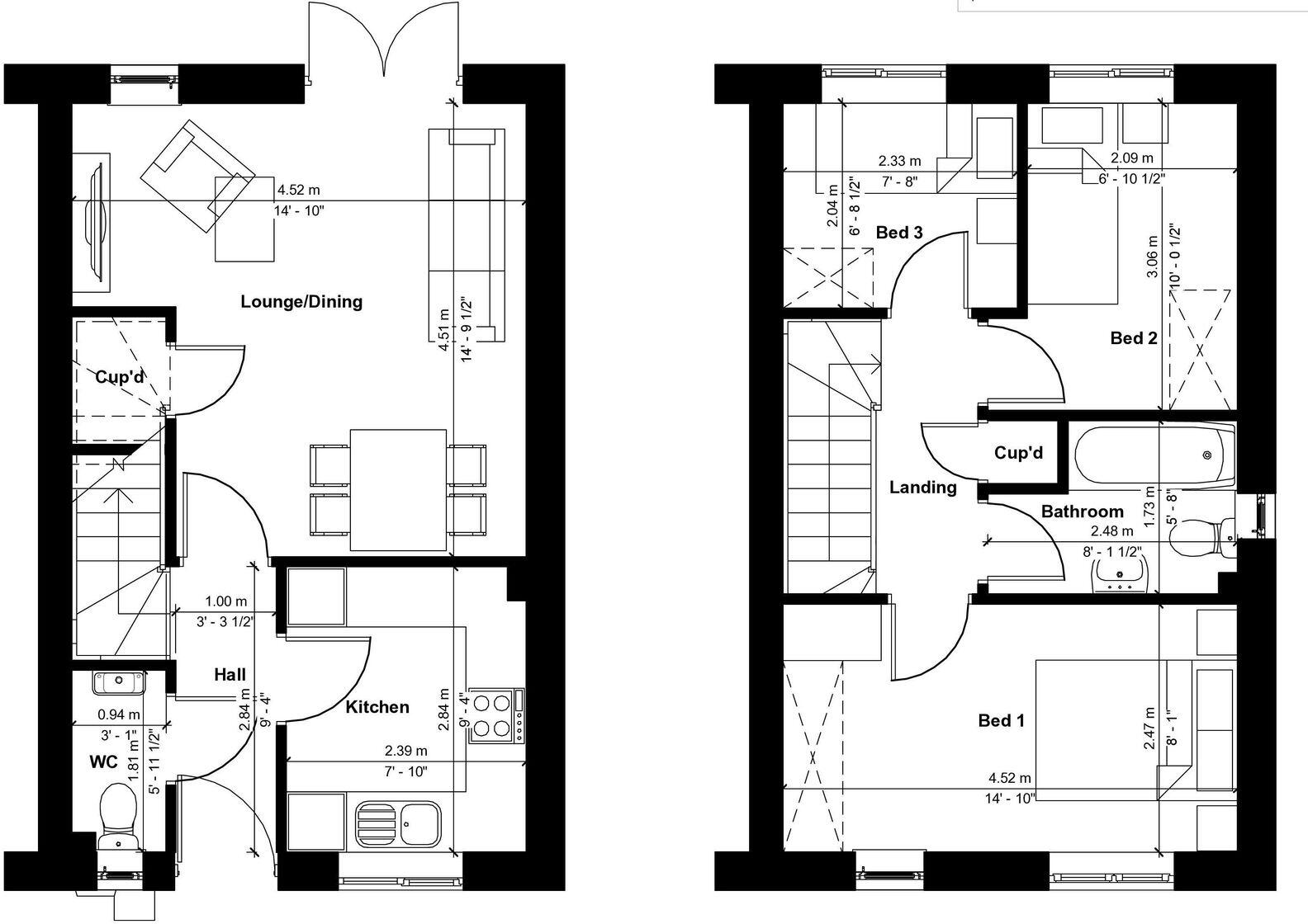
The property is a 3-bedroom semi-detached house located in Hebburn, South Tyneside. Based on the provided information and images, the property appears to be newly built or in excellent condition, with modern fixtures and fittings throughout. The kitchen and bathrooms are contemporary in style. There is a small, enclosed rear garden.
The location is close to several primary schools, with St Aloysius Catholic Junior School Academy rated as “Outstanding” by Ofsted and within a short distance. Transportation links are available via nearby train stations, although the distances are not insignificant. The area’s average house price is considerably higher than the list price of this property, suggesting it may be competitively priced. However, the average price per square foot in the area is 342.00, while this property is listed at a price that is lower per sqft. This could be due to several factors, including the smaller plot size compared to the average in the area.
Given the information provided, the property appears to be a good value for money, especially considering its modern condition and proximity to local amenities and schools. The smaller plot size is a factor to consider, but the overall package seems reasonable.
Therefore, we give this property 7 / 10. *Disclaimer: This is our option and does constitute a recommendation or financial advice. Do your own research. *
- Price
- 8
- Condition
- 10
- Location
- 7
- Land
- 4
- Bedrooms
- 3
- Bathrooms
- 1
- Sqft (est)
- 1,198.13
The heatmap indicates the level of crime in the area. The color of the heatmap indicates the crime severity and recency.
Metrics Year-on-Year
- Average area value
- 410,714.00 £Increased by 0.52 %
- Est sale value
- 503,214.60 £Increased by 4.48 %
- Average area rental value
- 1,363.00 £/moDecreased by 8.52 %
- Est letting value
- 1,198.13 £/moUnchanged by 0.00 %
- Est rental Yield
- 3.98 %Decreased by 9.13 %
- Crime Rate
- 7.00 %Unchanged by 0.00 %
Agent Activity
WalkersXchange created the listing.
Nearby Schools
| Name | Type | Ofsted | Distance |
|---|---|---|---|
| St Aloysius Catholic Infant School, Hebburn | Academy Converter | 0.99 KM | |
| St Aloysius Catholic Junior School Academy | Academy Converter | Outstanding | 1.04 KM |
| Richardson Dees Primary School | Foundation School | Good | 1.64 KM |
| The Sue Hedley Nursery School | Local Authority Nursery School | Outstanding | 1.70 KM |
| Carville Primary School | Foundation School | Good | 1.71 KM |
Images
Nearby Streets
| Name | Average Price | Average Sqft | Distance |
|---|---|---|---|
| B1297 | £ 0 | 0 | 0.00 KM |
| Thomas Drive | £ 330,000 | 0 | 0.00 KM |
| Victoria Street | £ 25,000 | 0 | 0.00 KM |
| Thistle Street | £ 175,000 | 0 | 0.00 KM |
| St. Nicholas Way | £ 0 | 0 | 0.00 KM |
Nearby Transport
| Name | NLC | TLC | Distance |
|---|---|---|---|
| Heworth | 7766 | HEW | 4.47 KM |
| Manors | 7603 | MAS | 8.81 KM |
Nearby Listings
| Address | Price | Type | Score | Distance |
|---|---|---|---|---|
| The Tavor - Plot 16, The Ropery, Argyle St, Hebburn | £ 199,950 | BUY | 7 / 10 | 0.00 KM |
| The Kishon - The Ropery, Argyle St, Hebburn | £ 354,950 | BUY | Unknown | 0.00 KM |
| Lyon Street, Hebburn, Tyne and Wear, NE31 1DN | £ 135,000 | BUY | 6 / 10 | 0.02 KM |
| Edward Street, Hebburn, NE31 | £ 119,950 | BUY | 7 / 10 | 0.08 KM |
| Price Street, Hebburn, Tyne & Wear, NE31 | £ 120,000 | BUY | 5 / 10 | 0.20 KM |
Nearby Properties
| Address | Price | Distance |
|---|---|---|
| 21 Prince Consort Road | £ 76,000 | 0.06 KM |
| 1 Lyon Street | £ 89,500 | 0.12 KM |
| 2 Lyon Street | £ 84,000 | 0.12 KM |
| 27 Whites Gardens | £ 380,000 | 0.13 KM |
| 15 Whites Gardens | £ 105,500 | 0.13 KM |