Chappells says ..
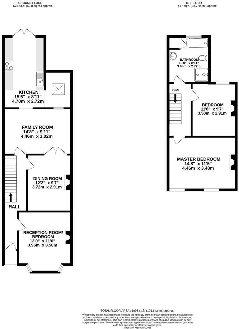
***New Instruction*** FANTASTIC OPPORTUNITY TO PURCHASE A CHARMING PERIOD HOME SITUATED ON AVENUE ROAD, IN THE HEART OF OLD TOWN IN SWINDON. THE PROPERTY ENJOYS VARIOUS ORIGINAL FEATURES TO RETAIN ITS PERIOD CHARM WHILST OFFERING MODERN COMFORT. THERE IS A BAY FRONTED LIVING ROOM (CURRENTLY USED ...
Property Oracle says ..
Therefore, we give this property 7 / 10. *Disclaimer: This is our option and does constitute a recommendation or financial advice. Do your own research. *
- Price
- 8
- Condition
- 8
- Location
- 8
- Land
- 7
- Bedrooms
- 3
- Bathrooms
- 1
- Sqft (est)
- 914.28
The heatmap indicates the level of crime in the area. The color of the heatmap indicates the crime severity and recency.
Metrics Year-on-Year
- Average area value
- 364,023.00 £Increased by 8.60 %
- Est sale value
- 376,683.36 £Increased by 57.25 %
- Average area rental value
- 1,137.00 £/moDecreased by 2.15 %
- Est letting value
- 914.28 £/mo
- Est rental Yield
- 3.75 %Decreased by 9.86 %
- Crime Rate
- 5.00 %Unchanged by 0.00 %
from 335,191.00 £
from 239,541.36 £
from 1,162.00 £/mo
from 0.00 £/mo
from 4.16 %
from 5.00 %
Agent Activity
Chappells created the listing.
Nearby Schools
| Name | Type | Ofsted | Distance |
|---|---|---|---|
| Lethbridge Primary School | Academy Converter | Good | 0.11 KM |
| King William Street Church Of England Primary School | Academy Converter | Good | 0.41 KM |
| The Croft Primary School | Academy Sponsor Led | Outstanding | 0.56 KM |
| Holy Rood Catholic Primary School | Academy Converter | Requires improvement | 0.86 KM |
| The Commonweal School | Academy Converter | Good | 1.03 KM |
Images
Nearby Streets
| Name | Average Price | Average Sqft | Distance |
|---|---|---|---|
| Queensbury House | £ 140,000 | 0 | 0.00 KM |
| Hoopers Place | £ 0 | 0 | 0.00 KM |
| The Mews | £ 0 | 0 | 0.00 KM |
| Newport Street | £ 180,000 | 0 | 0.00 KM |
| Michael's Way | £ 0 | 0 | 0.00 KM |
Nearby Transport
| Name | NLC | TLC | Distance |
|---|---|---|---|
| Swindon (Wilts) | 3333 | SWI | 1.84 KM |
Nearby Listings
| Address | Price | Type | Score | Distance |
|---|---|---|---|---|
| Avenue Road, Swindon | £ 325,000 | BUY | 7 / 10 | 0.00 KM |
| Avenue Road, Old Town, Swindon, Wiltshire, SN1 | £ 310,000 | BUY | 5 / 10 | 0.03 KM |
| Avenue Road, Old Town, Swindon | £ 395,000 | BUY | 7 / 10 | 0.04 KM |
| Kimmeridge Court, Ripley Road, Swindon, SN1 | £ 185,000 | BUY | 6 / 10 | 0.06 KM |
| Ripley Road, Swindon, SN1 | £ 185,000 | BUY | 6 / 10 | 0.06 KM |
Nearby Properties
| Address | Price | Distance |
|---|---|---|
| 30 Avenue Road | £ 72,000 | 0.03 KM |
| 20 Avenue Road | £ 290,000 | 0.03 KM |
| 38 Avenue Road | £ 320,000 | 0.03 KM |
| 23 Avenue Road | £ 84,500 | 0.03 KM |
| 26 Avenue Road | £ 260,000 | 0.03 KM |