Purplebricks says ..
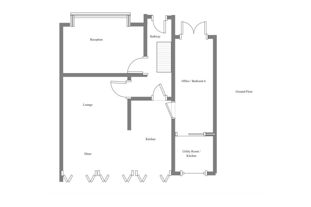
A thoughtfully extended & refurbished to a high standard semi detached family home located in a popular residential avenue. 5 Bedrooms and 2 bathrooms. Side ground extension with separate front door. Can be used as 6th bedroom. Ideal for elderly or those with mobility issues. Ground floor ut...
Property Oracle says ..
The property is a 5-bedroom, 2-bathroom house with a total area of 1,025 sqft. The list price is £625,000. The property appears to have undergone recent renovations or extensions, as evidenced by the modern kitchen and bathrooms shown in the photographs. The exterior also shows signs of recent work. The property benefits from a rear garden, which includes a decked area and outbuildings. The average house price in the area is £279,788, significantly lower than the list price of this property. However, the average property size is 903 sqft, considerably smaller than the 1,025 sqft of the subject property. The average price per sqft in the area is £309. This suggests that the property is priced at a premium compared to the average in the area. This premium is likely due to the property’s size, the apparent recent renovations, and its location on Argyll Avenue. Several nearby properties on Argyll Avenue have sold for prices ranging from £187,000 to £600,000, indicating significant price variation within the street itself. The proximity to schools and transportation links in Luton also contributes positively to the property’s value. The lack of plot size information makes it difficult to fully assess the land value. Considering the apparent high-quality renovation, the desirable location, and the larger size than average for the area, the list price may be justified, although it is at the higher end of the price range for the street. Further investigation into comparable properties that have recently sold in the area would provide a more conclusive assessment of the price.
Therefore, we give this property 7 / 10. *Disclaimer: This is our option and does constitute a recommendation or financial advice. Do your own research. *
- Price
- 7
- Condition
- 9
- Location
- 8
- Land
- 7
- Bedrooms
- 5
- Bathrooms
- 2
- Sqft (est)
- 1,025.00
The heatmap indicates the level of crime in the area. The color of the heatmap indicates the crime severity and recency.
Metrics Year-on-Year
- Average area value
- 118,500.00 £Decreased by 52.10 %
- Est sale value
- 150,675.00 £Decreased by 51.32 %
- Average area rental value
- 1,250.00 £/moDecreased by 11.54 %
- Est letting value
- 1,025.00 £/moUnchanged by 0.00 %
- Est rental Yield
- 12.66 %Increased by 84.82 %
- Crime Rate
- 3.00 %Unchanged by 0.00 %
Agent Activity
Purplebricks created the listing.
Nearby Schools
| Name | Type | Ofsted | Distance |
|---|---|---|---|
| Active Support Education Centre | Other Independent Special School | Good | 0.53 KM |
| Denbigh Primary School | Community School | Outstanding | 0.55 KM |
| Flying Start Central @Denbigh | Children's Centre Linked Site | 0.55 KM | |
| Denbigh High School | Academy Converter | 0.58 KM | |
| River Bank Primary School | Free Schools | Good | 0.66 KM |
Images
Nearby Streets
| Name | Average Price | Average Sqft | Distance |
|---|---|---|---|
| Ascot Road | £ 0 | 0 | 0.00 KM |
| St Bernard's Close | £ 425,000 | 0 | 0.00 KM |
| Poppy Close | £ 0 | 0 | 0.00 KM |
| Rondini Avenue | £ 465,000 | 0 | 0.00 KM |
| Lincoln Road | £ 0 | 0 | 0.00 KM |
Nearby Transport
| Name | NLC | TLC | Distance |
|---|---|---|---|
| Luton | 1536 | LUT | 2.18 KM |
| Leagrave | 1534 | LEA | 3.40 KM |
| Luton Airport Parkway | 3645 | LTN | 4.46 KM |
Nearby Listings
| Address | Price | Type | Score | Distance |
|---|---|---|---|---|
| Argyll Avenue, Luton, Bedfordshire, LU3 1EH | £ 400,000 | BUY | 6 / 10 | 0.04 KM |
| Argyll Avenue, New Bedford Road Area, Luton, Bedfordshire, LU3 1EJ | £ 320,000 | BUY | 5 / 10 | 0.07 KM |
| Holland Court, Biscot Road, Luton, Bedfordshire, LU3 1AP | £ 160,000 | BUY | 5 / 10 | 0.12 KM |
| Holland Court, Biscot Road, Luton, LU3 1AP | £ 160,000 | BUY | 5 / 10 | 0.12 KM |
| Holland Court, Biscot Road, Luton, Bedfordshire, LU3 | £ 135,000 | BUY | Unknown | 0.14 KM |
Nearby Properties
| Address | Price | Distance |
|---|---|---|
| 99 Argyll Avenue | £ 300,000 | 0.02 KM |
| 153 Argyll Avenue | £ 90,000 | 0.02 KM |
| 137 Argyll Avenue | £ 350,000 | 0.02 KM |
| 105 Argyll Avenue | £ 212,000 | 0.02 KM |
| 149 Argyll Avenue | £ 251,000 | 0.02 KM |