Taylor Hill & Bond says ..
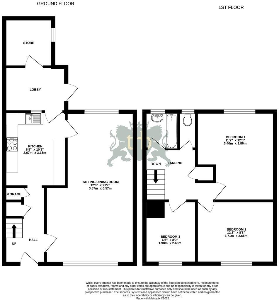
A well-maintained three bedroom mid-terraced home benefiting from an 18ft sitting/dining room and modern fitted kitchen.
Property Oracle says ..
This property is a 3-bedroom house located in Bitterne, Southampton. The property has recently undergone some modernisation, with a modern kitchen and updated bathrooms. The property benefits from a small garden. While the location is convenient to local amenities and transport links, the lack of provided square footage data prevents a full analysis of the price per square foot. The list price is slightly below the average price for the area, but without square footage, a definitive assessment of value is not possible.
Therefore, we give this property 6 / 10. *Disclaimer: This is our option and does constitute a recommendation or financial advice. Do your own research. *
- Price
- 7
- Condition
- 8
- Location
- 7
- Land
- 4
- Bedrooms
- 3
- Bathrooms
- 0
- Sqft (est)
- 853.90
The heatmap indicates the level of crime in the area. The color of the heatmap indicates the crime severity and recency.
Metrics Year-on-Year
- Average area value
- 246,250.00 £Decreased by 10.92 %
- Est sale value
- 302,280.60 £Increased by 15.69 %
- Average area rental value
- 1,200.00 £/moDecreased by 3.23 %
- Est letting value
- 853.90 £/moUnchanged by 0.00 %
- Est rental Yield
- 5.85 %Increased by 8.74 %
- Crime Rate
- 6.00 %Unchanged by 0.00 %
Agent Activity
Taylor Hill & Bond created the listing.
Nearby Schools
| Name | Type | Ofsted | Distance |
|---|---|---|---|
| Valentine Primary School | Community School | Requires improvement | 0.30 KM |
| Sholing Sure Start Children'S Centre | Children's Centre | 0.43 KM | |
| Oasis Academy Mayfield | Academy Sponsor Led | Requires improvement | 0.84 KM |
| Springwell School | Community Special School | Outstanding | 1.17 KM |
| Thornhill Primary School | Academy Converter | 1.22 KM |
Images
Nearby Streets
| Name | Average Price | Average Sqft | Distance |
|---|---|---|---|
| Hayes Drive | £ 260,000 | 0 | 0.00 KM |
| Butt's Crescent | £ 0 | 0 | 0.00 KM |
| Siddal Close | £ 216,667 | 0 | 0.00 KM |
| Gainsborough Close | £ 0 | 0 | 0.00 KM |
| Birch Lawn Close | £ 0 | 0 | 0.00 KM |
Nearby Transport
| Name | NLC | TLC | Distance |
|---|---|---|---|
| Sholing | 5930 | SHO | 2.35 KM |
| Netley | 5911 | NTL | 2.68 KM |
| Hamble | 5947 | HME | 3.47 KM |
| Woolston | 5925 | WLS | 3.67 KM |
| Bitterne | 5945 | BTE | 4.25 KM |
Nearby Listings
| Address | Price | Type | Score | Distance |
|---|---|---|---|---|
| Orpen Road, Southampton | £ 234,950 | BUY | 6 / 10 | 0.00 KM |
| Orpen Road, Sholing, SO19 | £ 250,000 | BUY | 7 / 10 | 0.04 KM |
| Valentine Avenue, Sholing | £ 280,000 | BUY | 6 / 10 | 0.07 KM |
| Orpen Road, Sholing, SO19 | £ 210,000 | BUY | 5 / 10 | 0.08 KM |
| SHOLING! CHAIN FREE! OPEN PLAN LIVING! | £ 200,000 | BUY | 6 / 10 | 0.11 KM |
Nearby Properties
| Address | Price | Distance |
|---|---|---|
| 280 Orpen Road | £ 185,000 | 0.04 KM |
| 268 Orpen Road | £ 128,000 | 0.04 KM |
| 250 Orpen Road | £ 156,000 | 0.04 KM |
| 254 Orpen Road | £ 137,000 | 0.04 KM |
| 276 Orpen Road | £ 250,000 | 0.04 KM |