RI
Cobden Street, Loughborough
By Richard Harrison Estate Agents & Valuers
£ 400,000
Reviews
2 out of 5 stars
Richard Harrison Estate Agents & Valuers says ..
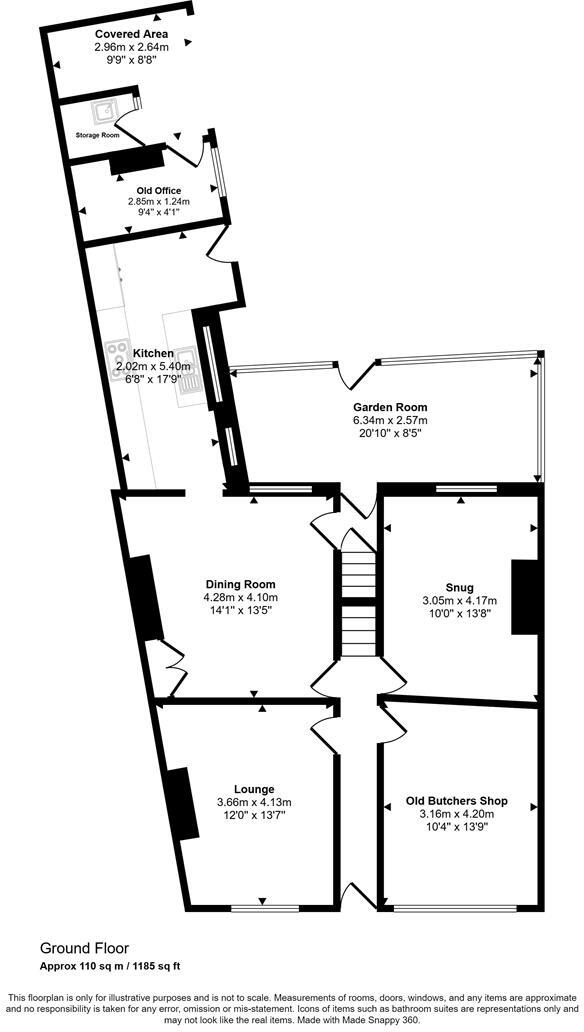
A rare and exciting opportunity to purchase this large terraced property, incorporating a former Butchers Shop and associated outbuildings, set upon 0.2 acres at the heart of the town centre with vehicular access at the rear along Pinfold Jetty (designated as a Byway Open To All Traffic). This un...
Property Oracle says ..
Therefore, we give this property 5 / 10. *Disclaimer: This is our option and does constitute a recommendation or financial advice. Do your own research. *
- Price
- 3
- Condition
- 6
- Location
- 7
- Land
- 7
- Bedrooms
- 3
- Bathrooms
- 1
- Sqft (est)
- 301.39
The heatmap indicates the level of crime in the area. The color of the heatmap indicates the crime severity and recency.
Metrics Year-on-Year
- Average area value
- 181,859.00 £Decreased by 11.34 %
- Est sale value
- 78,662.79 £Decreased by 4.04 %
- Average area rental value
- 955.00 £/moDecreased by 2.75 %
- Est letting value
- 301.39 £/moUnchanged by 0.00 %
- Est rental Yield
- 6.30 %Increased by 9.57 %
- Crime Rate
- 33.00 %Unchanged by 0.00 %
from 205,113.00 £
from 81,978.08 £
from 982.00 £/mo
from 301.39 £/mo
from 5.75 %
from 33.00 %
Agent Activity
Richard Harrison Estate Agents & Valuers created the listing.
Nearby Schools
| Name | Type | Ofsted | Distance |
|---|---|---|---|
| Cobden Primary School & Community Centre | Academy Converter | Good | 0.07 KM |
| Cobden Sure Start Children'S Centre | Children's Centre | 0.07 KM | |
| Trinity College | Other Independent Special School | Requires improvement | 0.11 KM |
| Fairfield Prep School | Other Independent School | 0.42 KM | |
| Aspire: Lifeskills | Other Independent Special School | Good | 0.60 KM |
Images
Nearby Streets
| Name | Average Price | Average Sqft | Distance |
|---|---|---|---|
| Trinity Street | £ 199,950 | 0 | 0.00 KM |
| Hume Street | £ 110,000 | 0 | 0.00 KM |
| Factory Street | £ 0 | 0 | 0.00 KM |
| Pack Horse Lane | £ 150,000 | 0 | 0.00 KM |
| Bentley Close | £ 188,500 | 0 | 0.00 KM |
Nearby Transport
| Name | NLC | TLC | Distance |
|---|---|---|---|
| Loughborough | 1897 | LBO | 1.05 KM |
| Barrow-Upon-Soar | 1903 | BWS | 6.65 KM |
Nearby Listings
| Address | Price | Type | Score | Distance |
|---|---|---|---|---|
| Cobden Street, Loughborough | £ 400,000 | BUY | 5 / 10 | 0.00 KM |
| 16 School Street, Loughborough, LE11 1BP | £ 90,000 | BUY | 5 / 10 | 0.03 KM |
| School Street, Loughborough, Leicestershire | £ 155,000 | BUY | 6 / 10 | 0.04 KM |
| Russell Street, Loughborough, Leicestershire, LE11 | £ 150,000 | BUY | 5 / 10 | 0.09 KM |
| Russell Street, Loughborough | £ 175,000 | BUY | 7 / 10 | 0.09 KM |
Nearby Properties
| Address | Price | Distance |
|---|---|---|
| 77 Cobden Street | £ 163,000 | 0.04 KM |
| 73 Cobden Street | £ 133,000 | 0.04 KM |
| 87 Cobden Street | £ 123,500 | 0.04 KM |
| 95 Cobden Street | £ 83,500 | 0.04 KM |
| 88 Cobden Street | £ 115,000 | 0.04 KM |