Clifton Road, Wokingham, Berkshire, RG41
By Prospect Estate Agency
£ 500,000
Reviews
4 out of 5 stars
Prospect Estate Agency says ..
NO ONWARD CHAIN COMPLICATIONS A well-presented and extended three-bedroom semi-detached family home located in the popular Emmbrook area of Wokingham, offered for sale with the benefit of no onward chain. Having been in the same family for several decades, this represent...
Property Oracle says ..
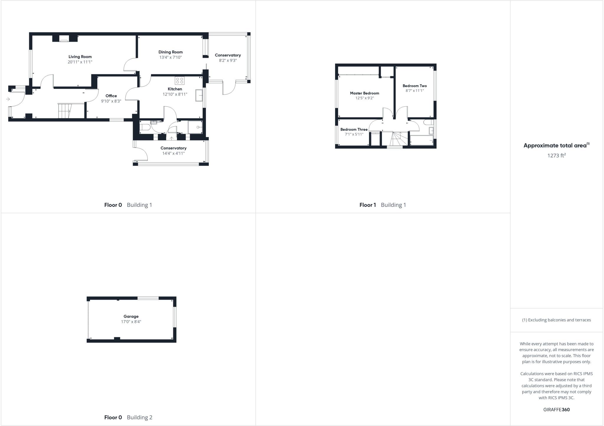
This property is a 3-bedroom semi-detached house located on Clifton Road in Wokingham, Berkshire. The list price is £500,000, and the property has 1,273 square feet of living space. Based on the provided images, the property appears to be well-maintained and in good condition. There is a garden present. The property benefits from being close to several highly-rated schools, including Emmbrook Infant School and St Paul’s Cofe Junior School, both rated as outstanding by Ofsted. Wokingham train station is also within a reasonable distance, providing good transport links. Compared to nearby properties, the list price seems slightly below average for the area, making it potentially good value for money. However, more information about the plot size and specific features would allow for a more precise evaluation.
Therefore, we give this property 8 / 10. *Disclaimer: This is our option and does constitute a recommendation or financial advice. Do your own research. *
- Price
- 8
- Condition
- 8
- Location
- 9
- Land
- 7
- Bedrooms
- 3
- Bathrooms
- 2
- Sqft (est)
- 1,273.00
The heatmap indicates the level of crime in the area. The color of the heatmap indicates the crime severity and recency.
Metrics Year-on-Year
- Average area value
- 396,500.00 £Decreased by 15.78 %
- Est sale value
- 623,770.00 £Decreased by 18.74 %
- Average area rental value
- 2,064.00 £/moIncreased by 24.26 %
- Est letting value
- 2,546.00 £/moUnchanged by 0.00 %
- Est rental Yield
- 6.25 %Increased by 47.75 %
- Crime Rate
- 3.00 %Unchanged by 0.00 %
Agent Activity
Prospect Estate Agency marked this listing as sold.
Prospect Estate Agency created the listing.
Nearby Schools
| Name | Type | Ofsted | Distance |
|---|---|---|---|
| The Emmbrook School | Academy Converter | 0.27 KM | |
| Emmbrook Junior School | Community School | Requires improvement | 0.49 KM |
| Emmbrook Infant School | Community School | Outstanding | 0.49 KM |
| St Paul'S Cofe Junior School | Voluntary Controlled School | Outstanding | 0.79 KM |
| Walter Infant School | Community School | Outstanding | 0.83 KM |
Images
Nearby Streets
| Name | Average Price | Average Sqft | Distance |
|---|---|---|---|
| Rotherfield Avenue | £ 675,000 | 0 | 0.00 KM |
| A329 | £ 0 | 0 | 0.00 KM |
| Grover Avenue | £ 0 | 0 | 0.00 KM |
| Catherwood Place | £ 0 | 0 | 0.00 KM |
| Chestnut Court | £ 375,000 | 0 | 0.00 KM |
Nearby Transport
| Name | NLC | TLC | Distance |
|---|---|---|---|
| Wokingham | 5696 | WKM | 1.27 KM |
| Winnersh | 5697 | WNS | 3.21 KM |
| Winnersh Triangle | 5698 | WTI | 4.96 KM |
| Twyford | 3155 | TWY | 6.34 KM |
| Crowthorne | 5628 | CRN | 6.83 KM |
Nearby Listings
| Address | Price | Type | Score | Distance |
|---|---|---|---|---|
| Clifton Road, Wokingham, Berkshire, RG41 | £ 500,000 | BUY | 8 / 10 | 0.00 KM |
| Valley Crescent, Wokingham, Berkshire, RG41 | £ 500,000 | BUY | Unknown | 0.05 KM |
| Clifton Road, Wokingham, RG41 | £ 525,000 | BUY | 7 / 10 | 0.07 KM |
| Brook Close, Wokingham, RG41 | £ 565,000 | BUY | 7 / 10 | 0.16 KM |
| Brook Close, Wokingham | £ 470,000 | BUY | 6 / 10 | 0.17 KM |
Nearby Properties
| Address | Price | Distance |
|---|---|---|
| 65 Clifton Road | £ 280,000 | 0.01 KM |
| 67 Clifton Road | £ 476,000 | 0.01 KM |
| 101 Clifton Road | £ 275,000 | 0.01 KM |
| 103 Clifton Road | £ 490,000 | 0.01 KM |
| 89 Clifton Road | £ 299,950 | 0.01 KM |