MA
Sangers Drive, Horley, Surrey, RH6
By Mayhew Estates
£ 550,000
Reviews
3 out of 5 stars
Mayhew Estates says ..
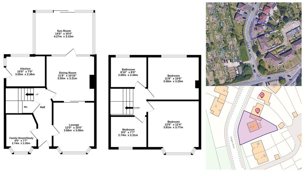
Guide Price £550,000 - £600,000.Spacious 3 double bedroom detached home with 3 reception rooms, a sun room, generous plot, huge extension potential (STPP), and no onward chain — just 0.7 miles from Horley Station.
Property Oracle says ..
Therefore, we give this property 6 / 10. *Disclaimer: This is our option and does constitute a recommendation or financial advice. Do your own research. *
- Price
- 5
- Condition
- 6
- Location
- 7
- Land
- 7
- Bedrooms
- 3
- Bathrooms
- 1
- Sqft (est)
- 955.30
The heatmap indicates the level of crime in the area. The color of the heatmap indicates the crime severity and recency.
Metrics Year-on-Year
- Average area value
- 516,000.00 £Increased by 0.91 %
- Est sale value
- 454,722.80 £Increased by 62.46 %
- Average area rental value
- 2,011.00 £/moDecreased by 20.48 %
- Est letting value
- 955.30 £/moUnchanged by 0.00 %
- Est rental Yield
- 4.68 %Decreased by 21.08 %
- Crime Rate
- 4.00 %Unchanged by 0.00 %
from 511,352.00 £
from 279,902.90 £
from 2,529.00 £/mo
from 955.30 £/mo
from 5.93 %
from 4.00 %
Agent Activity
Mayhew Estates created the listing.
Nearby Schools
| Name | Type | Ofsted | Distance |
|---|---|---|---|
| Manorfield Primary And Nursery School | Community School | Good | 0.29 KM |
| Horley Infant School | Community School | Good | 1.04 KM |
| Yattendon School | Foundation School | Good | 1.15 KM |
| Horley Community Sure Start Children'S Centre | Children's Centre | 1.28 KM | |
| Meath Green Junior School | Community School | Good | 1.30 KM |
Images
Nearby Streets
| Name | Average Price | Average Sqft | Distance |
|---|---|---|---|
| Church View Close | £ 691,833 | 0 | 0.00 KM |
| Delta Bungalows | £ 0 | 0 | 0.00 KM |
| London Road | £ 0 | 0 | 0.00 KM |
| Elm Tree Close | £ 331,667 | 0 | 0.00 KM |
| Maple Close | £ 0 | 0 | 0.00 KM |
Nearby Transport
| Name | NLC | TLC | Distance |
|---|---|---|---|
| Horley | 5365 | HOR | 1.33 KM |
| Gatwick Airport | 5416 | GTW | 2.12 KM |
| Salfords (Surrey) | 5380 | SAF | 3.54 KM |
| Earlswood (Surrey) | 5414 | ELD | 6.21 KM |
| Three Bridges | 5491 | TBD | 6.22 KM |
Nearby Listings
| Address | Price | Type | Score | Distance |
|---|---|---|---|---|
| Sangers Drive, Horley, Surrey, RH6 | £ 550,000 | BUY | 6 / 10 | 0.00 KM |
| Church Road, Horley, Surrey, RH6 | £ 270,000 | BUY | 7 / 10 | 0.05 KM |
| Sangers Drive, Horley, Surrey, RH6 | £ 300,000 | BUY | 7 / 10 | 0.05 KM |
| Sangers Drive, Horley, Surrey, RH6 | £ 250,000 | BUY | 7 / 10 | 0.05 KM |
| Ashleigh Close, Horley, RH6 | £ 650,000 | BUY | 7 / 10 | 0.12 KM |
Nearby Properties
| Address | Price | Distance |
|---|---|---|
| 18 Sangers Drive | £ 250,000 | 0.05 KM |
| 5 Sangers Drive | £ 175,000 | 0.05 KM |
| 31 Sangers Drive | £ 350,000 | 0.05 KM |
| 17 Sangers Drive | £ 475,000 | 0.05 KM |
| 19 Sangers Drive | £ 440,000 | 0.05 KM |