CR
Haddington Road, Plymouth
By Cross Keys Estate Agents Ltd
£ 120,000
Reviews
3 out of 5 stars
Cross Keys Estate Agents Ltd says ..
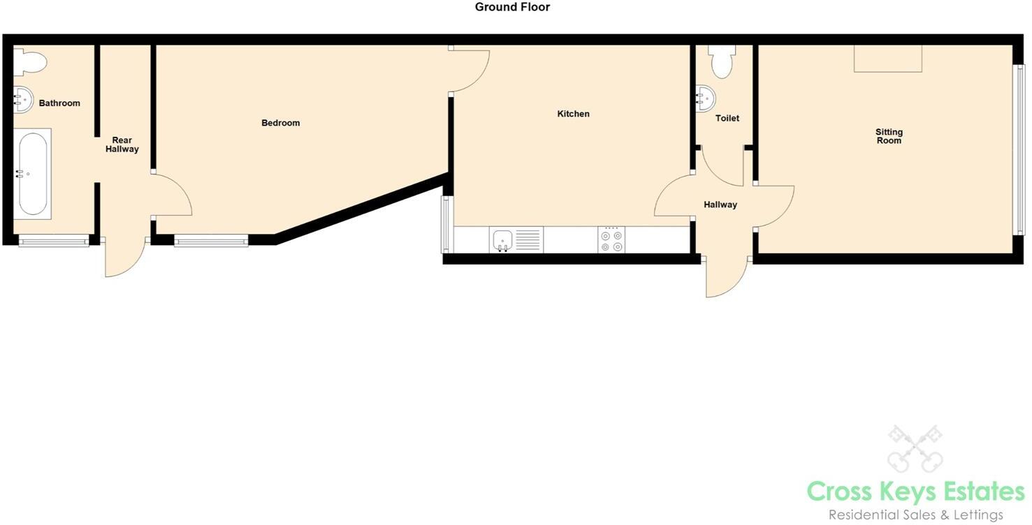
** Guide Price £120,000 to £130,000 ** Cross Keys Estates is delighted to present this stunning period garden apartment located on the highly sought-after Haddington Road in Plymouth. This charming property features a generously sized double bedroom, perfect for relaxation and comfort. The ...
Property Oracle says ..
Therefore, we give this property 6 / 10. *Disclaimer: This is our option and does constitute a recommendation or financial advice. Do your own research. *
- Price
- 6
- Condition
- 7
- Location
- 7
- Land
- 6
- Bedrooms
- 1
- Bathrooms
- 1
- Sqft (est)
- 498.00
The heatmap indicates the level of crime in the area. The color of the heatmap indicates the crime severity and recency.
Metrics Year-on-Year
- Average area value
- 177,475.00 £Decreased by 2.93 %
- Est sale value
- 97,608.00 £Decreased by 10.50 %
- Average area rental value
- 1,174.00 £/moIncreased by 51.48 %
- Est letting value
- 498.00 £/mo
- Est rental Yield
- 7.94 %Increased by 55.99 %
- Crime Rate
- 14.00 %Unchanged by 0.00 %
from 182,830.00 £
from 109,062.00 £
from 775.00 £/mo
from 0.00 £/mo
from 5.09 %
from 14.00 %
Agent Activity
Cross Keys Estate Agents Ltd created the listing.
Nearby Schools
| Name | Type | Ofsted | Distance |
|---|---|---|---|
| Utc Plymouth | University Technical College | 0.40 KM | |
| College Road Primary School | Foundation School | Good | 0.40 KM |
| Morice Town Primary Academy | Academy Converter | Requires improvement | 0.44 KM |
| Morice Town Children'S Centre | Children's Centre | 0.53 KM | |
| Green Ark Children'S Centre | Children's Centre | 0.89 KM |
Images
Nearby Streets
| Name | Average Price | Average Sqft | Distance |
|---|---|---|---|
| Cross Hill | £ 0 | 0 | 0.00 KM |
| Keppel Street | £ 140,000 | 0 | 0.00 KM |
| Herbert Street | £ 0 | 0 | 0.00 KM |
| Pasley Street East | £ 225,000 | 0 | 0.00 KM |
| Napier Street | £ 0 | 0 | 0.00 KM |
Nearby Transport
| Name | NLC | TLC | Distance |
|---|---|---|---|
| Dockyard (Devonport) | 3588 | DOC | 0.30 KM |
| Devonport | 3579 | DPT | 0.40 KM |
| Keyham | 3571 | KEY | 1.22 KM |
| St Budeaux Ferry Road | 3590 | SBF | 2.72 KM |
| St Budeaux Victoria Road | 3592 | SBV | 2.82 KM |
Nearby Listings
| Address | Price | Type | Score | Distance |
|---|---|---|---|---|
| Haddington Road, Plymouth | £ 120,000 | BUY | 6 / 10 | 0.00 KM |
| Haddington Road, Stoke | £ 95,000 | BUY | 6 / 10 | 0.01 KM |
| Haddington Road, Stoke | £ 115,000 | BUY | 6 / 10 | 0.01 KM |
| Haddington Road, Stoke, Plymouth | £ 85,000 | BUY | 7 / 10 | 0.04 KM |
| Haddington Road, Plymouth, Devon, PL2 | £ 100,000 | BUY | 6 / 10 | 0.05 KM |
Nearby Properties
| Address | Price | Distance |
|---|---|---|
| 25a Haddington Road | £ 189,000 | 0.05 KM |
| 18 Haddington Road | £ 297,500 | 0.05 KM |
| 41 Haddington Road | £ 312,000 | 0.05 KM |
| 45 Haddington Road | £ 263,000 | 0.05 KM |
| 19 Haddington Road | £ 240,000 | 0.05 KM |