Game Estate Agents says ..
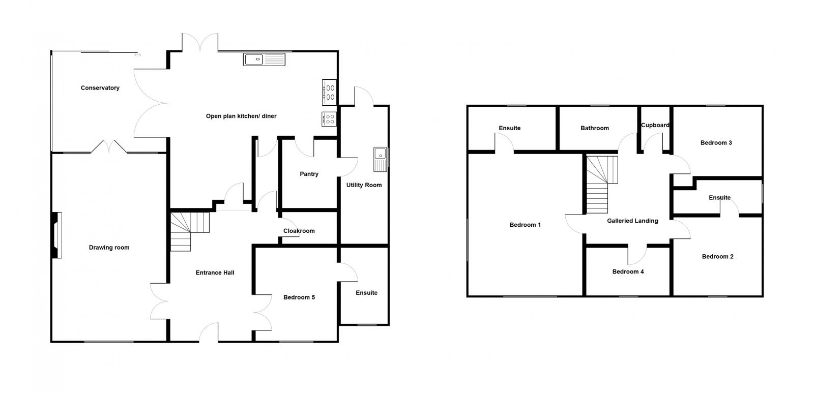
Located in the charming seaside town of West Mersea, this exceptional detached family home is the perfect oasis for a growing family. Boasting luxurious marble worksurfaces, a stunning conservatory, and a south west
Property Oracle says ..
The property is located in West Mersea, a charming seaside town in Essex. The area benefits from being close to Mersea Island School (rated Good by Ofsted), and is within reasonable distance of other schools. While specific transportation details are limited, the proximity to the seaside and the mention of local amenities suggest convenient access to shops and other services. The house itself appears to be in good condition based on the provided photos; it is a well-maintained, five-bedroom detached property with a modern kitchen and conservatory. The presence of a garden adds to its appeal. However, the lack of plot size information makes it difficult to assess the land size accurately. Pricing information is scarce, making it hard to determine if the list price of £785,000 is reasonable. More data on comparable properties and the average price per square foot in the area would be needed for a conclusive assessment.
Therefore, we give this property 7 / 10. *Disclaimer: This is our option and does constitute a recommendation or financial advice. Do your own research. *
- Price
- 6
- Condition
- 8
- Location
- 8
- Land
- 7
- Bedrooms
- 5
- Bathrooms
- 4
- Sqft (est)
- 1,920.00
The heatmap indicates the level of crime in the area. The color of the heatmap indicates the crime severity and recency.
Metrics Year-on-Year
- Average area value
- 343,500.00 £Decreased by 10.23 %
- Est sale value
- 577,920.00 £Increased by 62.70 %
- Average area rental value
- 1,207.00 £/moDecreased by 5.18 %
- Est letting value
- 1,920.00 £/mo
- Est rental Yield
- 4.22 %Increased by 5.76 %
- Crime Rate
- 30.00 %Unchanged by 0.00 %
Agent Activity
Game Estate Agents created the listing.
Nearby Schools
| Name | Type | Ofsted | Distance |
|---|---|---|---|
| Mersea Island School | Foundation School | Good | 0.37 KM |
| Langenhoe Community Primary School | Community School | Requires improvement | 5.84 KM |
| St Cedd'S Church Of England Primary School | Academy Sponsor Led | Good | 6.46 KM |
| Fingringhoe Church Of England Voluntary Aided Primary School | Voluntary Aided School | Good | 7.78 KM |
| Cherry Tree Academy | Academy Sponsor Led | Requires improvement | 8.62 KM |
Images
Nearby Streets
| Name | Average Price | Average Sqft | Distance |
|---|---|---|---|
| Windsor Road | £ 135,000 | 0 | 0.00 KM |
| Oakwood Drive | £ 0 | 0 | 0.00 KM |
| Going's Lane | £ 0 | 0 | 0.00 KM |
| Alexandra Avenue | £ 725,000 | 0 | 0.00 KM |
| Meadow Lane | £ 825,000 | 0 | 0.00 KM |
Nearby Transport
| Name | NLC | TLC | Distance |
|---|---|---|---|
| Wivenhoe | 6860 | WIV | 9.44 KM |
Nearby Listings
| Address | Price | Type | Score | Distance |
|---|---|---|---|---|
| West Mersea, CO5 8RB | £ 785,000 | BUY | 7 / 10 | 0.00 KM |
| Kingsland Road, West Mersea | £ 735,000 | BUY | 7 / 10 | 0.03 KM |
| Kingsland Road, West Mersea | £ 785,000 | BUY | 6 / 10 | 0.03 KM |
| Elmwood Drive, West Mersea | £ 590,000 | BUY | 6 / 10 | 0.07 KM |
| Kingsland Road, West Mersea | £ 300,000 | BUY | Unknown | 0.09 KM |
Nearby Properties
| Address | Price | Distance |
|---|---|---|
| 21 Kingsland Road | £ 160,000 | 0.02 KM |
| 12 Kingsland Road | £ 160,000 | 0.02 KM |
| 12a Kingsland Road | £ 455,000 | 0.02 KM |
| 25 Kingsland Road | £ 228,000 | 0.07 KM |
| 23 Kingsland Road | £ 275,000 | 0.07 KM |