Sadlers Close, Holmes Chapel
By Gascoigne Halman
£ 425,000
Reviews
4 out of 5 stars
Gascoigne Halman says ..
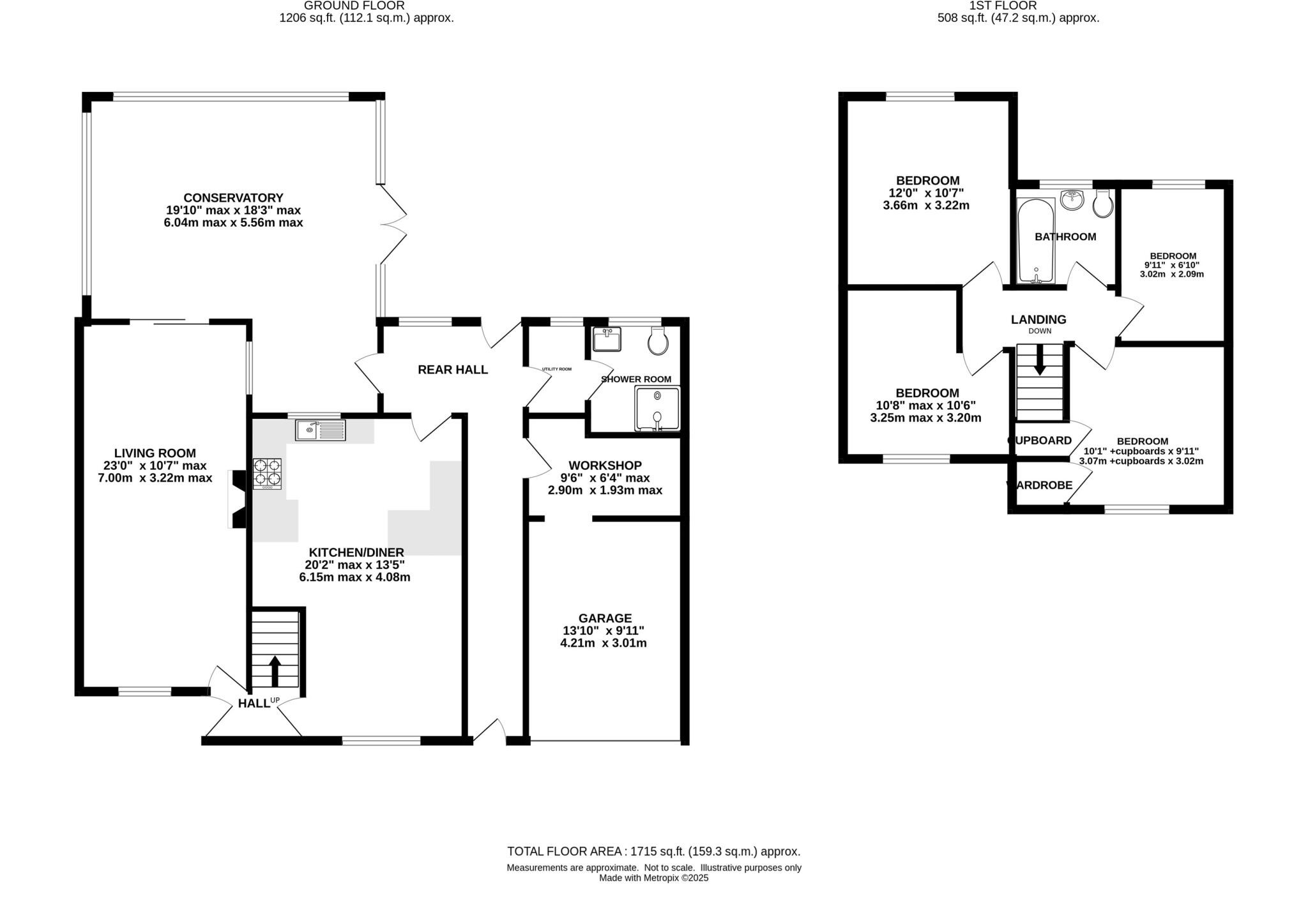
A large, tastefully presented and well maintained, four bedroom semi-detached home located in the heart of Holmes Chapel with a south facing rear garden.
Property Oracle says ..
Therefore, we give this property 8 / 10. *Disclaimer: This is our option and does constitute a recommendation or financial advice. Do your own research. *
- Price
- 9
- Condition
- 8
- Location
- 9
- Land
- 7
- Bedrooms
- 4
- Bathrooms
- 2
- Sqft (est)
- 1,493.60
The heatmap indicates the level of crime in the area. The color of the heatmap indicates the crime severity and recency.
Metrics Year-on-Year
- Average area value
- 420,645.00 £Increased by 5.85 %
- Est sale value
- 704,979.20 £Increased by 43.90 %
- Average area rental value
- 1,250.00 £/moDecreased by 18.03 %
- Est letting value
- 1,493.60 £/moUnchanged by 0.00 %
- Est rental Yield
- 3.57 %Decreased by 22.56 %
- Crime Rate
- 6.00 %Unchanged by 0.00 %
from 397,385.00 £
from 489,900.80 £
from 1,525.00 £/mo
from 1,493.60 £/mo
from 4.61 %
from 6.00 %
Agent Activity
Gascoigne Halman created the listing.
Nearby Schools
| Name | Type | Ofsted | Distance |
|---|---|---|---|
| Holmes Chapel Primary School | Academy Converter | Outstanding | 0.19 KM |
| Holmes Chapel Comprehensive School | Academy Converter | Good | 1.00 KM |
| Hermitage Primary School | Academy Converter | 1.28 KM | |
| Goostrey Community Primary School | Community School | Outstanding | 4.17 KM |
| Brereton Cofe Primary School | Academy Converter | 4.49 KM |
Images
Nearby Streets
| Name | Average Price | Average Sqft | Distance |
|---|---|---|---|
| Northway | £ 330,000 | 0 | 0.00 KM |
| Church View | £ 0 | 0 | 0.00 KM |
| Southlands | £ 0 | 0 | 0.00 KM |
| Cartmel Close | £ 0 | 0 | 0.00 KM |
| Ash Close | £ 0 | 0 | 0.00 KM |
Nearby Transport
| Name | NLC | TLC | Distance |
|---|---|---|---|
| Holmes Chapel | 1221 | HCH | 1.35 KM |
| Goostrey | 1220 | GTR | 4.54 KM |
| Sandbach | 1261 | SDB | 6.82 KM |
Nearby Listings
| Address | Price | Type | Score | Distance |
|---|---|---|---|---|
| Sadlers Close, Holmes Chapel | £ 425,000 | BUY | 8 / 10 | 0.00 KM |
| Sadlers Close, Holmes Chapel, Crewe, Cheshire, CW4 | £ 425,000 | BUY | 7 / 10 | 0.00 KM |
| Middlewich Road, Holmes Chapel | £ 375,000 | BUY | Unknown | 0.25 KM |
| Capesthorne Close, Holmes Chapel | £ 425,000 | BUY | 6 / 10 | 0.26 KM |
| Bramhall Drive, Holmes Chapel | £ 640,000 | BUY | 7 / 10 | 0.26 KM |
Nearby Properties
| Address | Price | Distance |
|---|---|---|
| 64 Middlewich Road | £ 235,000 | 0.13 KM |
| 58 Middlewich Road | £ 225,000 | 0.13 KM |
| 68 Middlewich Road | £ 349,000 | 0.13 KM |
| 70 Middlewich Road | £ 403,000 | 0.13 KM |
| 44 Middlewich Road | £ 194,000 | 0.13 KM |