Acorn says ..
Introducing this beautifully presented 1-bedroom apartment, nestled in a brand-new, contemporary development in the heart of Bexleyheath Broadway. This stunning property is situated on the upper floor offering the ultimate in convenience and luxury. The apartment is a perfect example ...
Property Oracle says ..
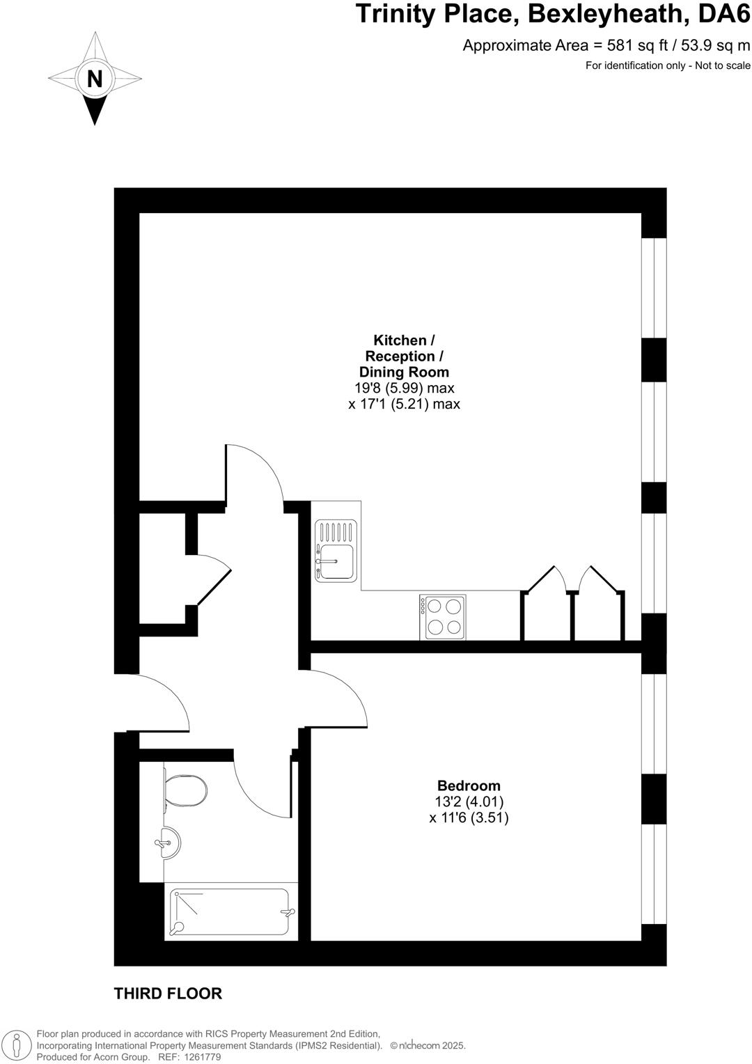
The property is a 1-bedroom, 1-bathroom apartment located in Bexleyheath, Greater London. It has a floor area of 148 sqft and a plot size of 581 sqft. The list price is £300,000. The average property price in the area is £400,198, with an average price per sqft of £464. This suggests that the property is priced below the average for the area. The apartment appears to be in excellent condition, with modern fixtures and fittings throughout. The images show a contemporary design with a high-quality finish. The location is positive, with good proximity to several schools which have received good or outstanding Ofsted ratings and also several Southeastern train stations. While the plot size is relatively small for a property in this area, it’s important to note that this is an apartment, and therefore a smaller plot size is expected. Considering the property’s modern condition, desirable location, and below-average price point, it presents good value. However, the limited plot size is a factor to consider.
Therefore, we give this property 7 / 10. *Disclaimer: This is our option and does constitute a recommendation or financial advice. Do your own research. *
- Price
- 9
- Condition
- 10
- Location
- 8
- Land
- 3
- Bedrooms
- 1
- Bathrooms
- 1
- Sqft (est)
- 148.00
- Lot (est)
- 581.00
The heatmap indicates the level of crime in the area. The color of the heatmap indicates the crime severity and recency.
Metrics Year-on-Year
- Average area value
- 439,150.00 £Increased by 4.63 %
- Est sale value
- 89,836.00 £Increased by 22.13 %
- Average area rental value
- 1,750.00 £/moDecreased by 8.81 %
- Est letting value
- 296.00 £/moUnchanged by 0.00 %
- Est rental Yield
- 4.78 %Decreased by 12.93 %
- Crime Rate
- 23.00 %Unchanged by 0.00 %
Agent Activity
Acorn created the listing.
Nearby Schools
| Name | Type | Ofsted | Distance |
|---|---|---|---|
| Upland Primary School | Academy Converter | Good | 0.49 KM |
| Bexleyheath Academy | Academy Sponsor Led | Good | 0.78 KM |
| Townley Grammar School | Academy Converter | Outstanding | 0.84 KM |
| St Thomas More Catholic Primary School | Voluntary Aided School | Outstanding | 1.00 KM |
| Upton Primary School | Community School | Outstanding | 1.04 KM |
Images
Nearby Streets
| Name | Average Price | Average Sqft | Distance |
|---|---|---|---|
| Mayfield | £ 300,000 | 0 | 0.00 KM |
| Bynon Avenue | £ 400,000 | 0 | 0.00 KM |
| Queen Street | £ 0 | 0 | 0.00 KM |
| FP226 | £ 315,000 | 0 | 0.00 KM |
| Emerton Close | £ 0 | 0 | 0.00 KM |
Nearby Transport
| Name | NLC | TLC | Distance |
|---|---|---|---|
| Bexleyheath | 5094 | BXH | 0.86 KM |
| Bexley | 5093 | BXY | 2.19 KM |
| Barnehurst | 5089 | BNH | 2.42 KM |
| Albany Park | 5132 | AYP | 2.89 KM |
| Belvedere | 5092 | BVD | 4.09 KM |
Nearby Listings
| Address | Price | Type | Score | Distance |
|---|---|---|---|---|
| Trinity Place, Bexleyheath, DA6 | £ 300,000 | BUY | 6 / 10 | 0.00 KM |
| 19 Trinity Place, Bexleyheath, DA6 | £ 280,000 | BUY | 6 / 10 | 0.00 KM |
| Trinity Place, Bexleyheath | £ 300,000 | BUY | 7 / 10 | 0.00 KM |
| Trinity Place, Bexleyheath, Kent, DA6 | £ 260,000 | BUY | 6 / 10 | 0.00 KM |
| Albery Apartments, 19 Trinity Place, Bexleyheath | £ 300,000 | BUY | 6 / 10 | 0.01 KM |
Nearby Properties
| Address | Price | Distance |
|---|---|---|
| 231a Broadway | £ 170,000 | 0.08 KM |
| 233a Broadway | £ 163,000 | 0.08 KM |
| 221a Broadway | £ 150,000 | 0.08 KM |
| 229a Broadway | £ 233,500 | 0.08 KM |
| 217a Broadway | £ 107,500 | 0.08 KM |