Hicks Hadley says ..
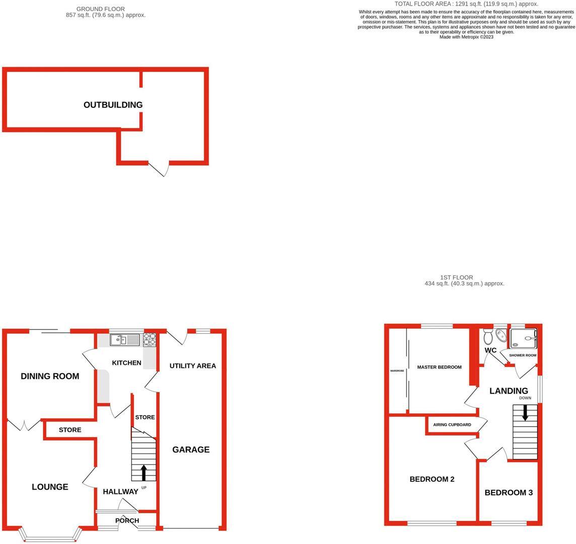
**NO UPWARD CHAIN** A fantastic three bedroom semi-detached property in this most popular of locations for schools, transport links and all local amenities. The property briefly comprises: modern porch, reception hall, spacious lounge, separate dining room, kitchen with pantry, three generous...
Property Oracle says ..
The property is a three-bedroom semi-detached house located on Whittingham Road in Halesowen, Belle Vale. It is conveniently located near local schools and transport links. While the property requires some renovation, it features a good-sized garden with a shed. The listing price of £255,000 appears reasonable when compared to similar properties in the area, especially considering the square footage and the need for modernisation.
Therefore, we give this property 6 / 10. *Disclaimer: This is our option and does constitute a recommendation or financial advice. Do your own research. *
- Price
- 7
- Condition
- 5
- Location
- 7
- Land
- 7
- Bedrooms
- 3
- Bathrooms
- 1
- Sqft (est)
- 1,291.00
The heatmap indicates the level of crime in the area. The color of the heatmap indicates the crime severity and recency.
Metrics Year-on-Year
- Average area value
- 251,538.00 £Increased by 21.55 %
- Est sale value
- 267,237.00 £Decreased by 4.17 %
- Average area rental value
- 754.00 £/moDecreased by 18.22 %
- Est letting value
- 0.00 £/mo
- Est rental Yield
- 3.60 %Decreased by 32.71 %
- Crime Rate
- 9.00 %Unchanged by 0.00 %
Agent Activity
Hicks Hadley created the listing.
Nearby Schools
| Name | Type | Ofsted | Distance |
|---|---|---|---|
| Newfield Park Primary School | Community School | Good | 0.12 KM |
| Halesowen College | Further Education | Good | 0.44 KM |
| The Earls High School | Academy Converter | Good | 0.62 KM |
| Halesowen Cofe Primary School | Voluntary Aided School | Good | 0.69 KM |
| Windsor High School And Sixth Form | Academy Converter | Good | 0.79 KM |
Images
Nearby Streets
| Name | Average Price | Average Sqft | Distance |
|---|---|---|---|
| King Street | £ 170,000 | 0 | 0.00 KM |
| Beach Drive | £ 240,000 | 0 | 0.00 KM |
| Queen Street | £ 0 | 0 | 0.00 KM |
| Regent Close | £ 201,225 | 0 | 0.00 KM |
| Melbourne Road | £ 327,475 | 0 | 0.00 KM |
Nearby Transport
| Name | NLC | TLC | Distance |
|---|---|---|---|
| Old Hill | 4641 | OHL | 1.63 KM |
| Rowley Regis | 4606 | ROW | 3.53 KM |
| Cradley Heath | 4639 | CRA | 4.21 KM |
| Lye (West Midlands) | 4640 | LYE | 6.77 KM |
| Langley Green | 4607 | LGG | 6.92 KM |
Nearby Listings
| Address | Price | Type | Score | Distance |
|---|---|---|---|---|
| Whittingham Road, Halesowen | £ 255,000 | BUY | 6 / 10 | 0.00 KM |
| Newfield Crescent, Halesowen | £ 325,000 | BUY | 7 / 10 | 0.08 KM |
| Newfield Crescent, Halesowen | £ 270,000 | BUY | 7 / 10 | 0.09 KM |
| Newfield Crescent, Halesowen | £ 250,000 | BUY | 5 / 10 | 0.09 KM |
| Greenbush Drive, Halesowen | £ 330,000 | BUY | 7 / 10 | 0.27 KM |
Nearby Properties
| Address | Price | Distance |
|---|---|---|
| 98 Whittingham Road | £ 160,000 | 0.07 KM |
| 84 Whittingham Road | £ 155,000 | 0.07 KM |
| 102 Whittingham Road | £ 164,000 | 0.07 KM |
| 86 Whittingham Road | £ 80,000 | 0.07 KM |
| 80 Whittingham Road | £ 185,000 | 0.07 KM |