Clocaenog, Ruthin
WI

Clocaenog, Ruthin

By Williams Estates

£ 575,000

Reviews

3 out of 5 stars

Williams Estates says ..

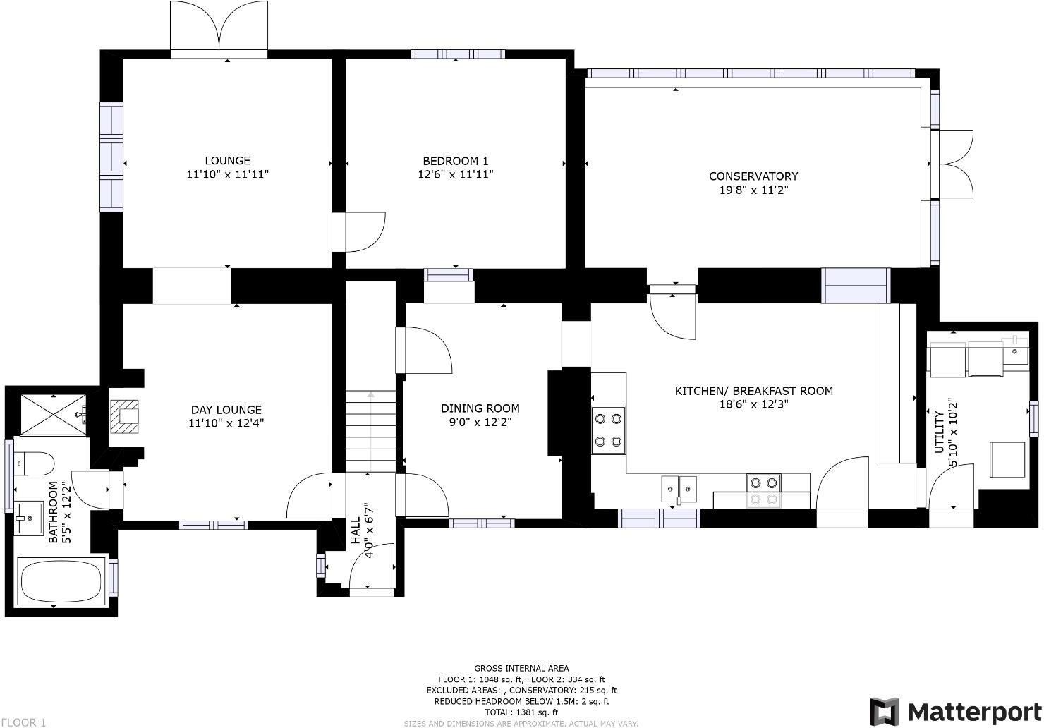
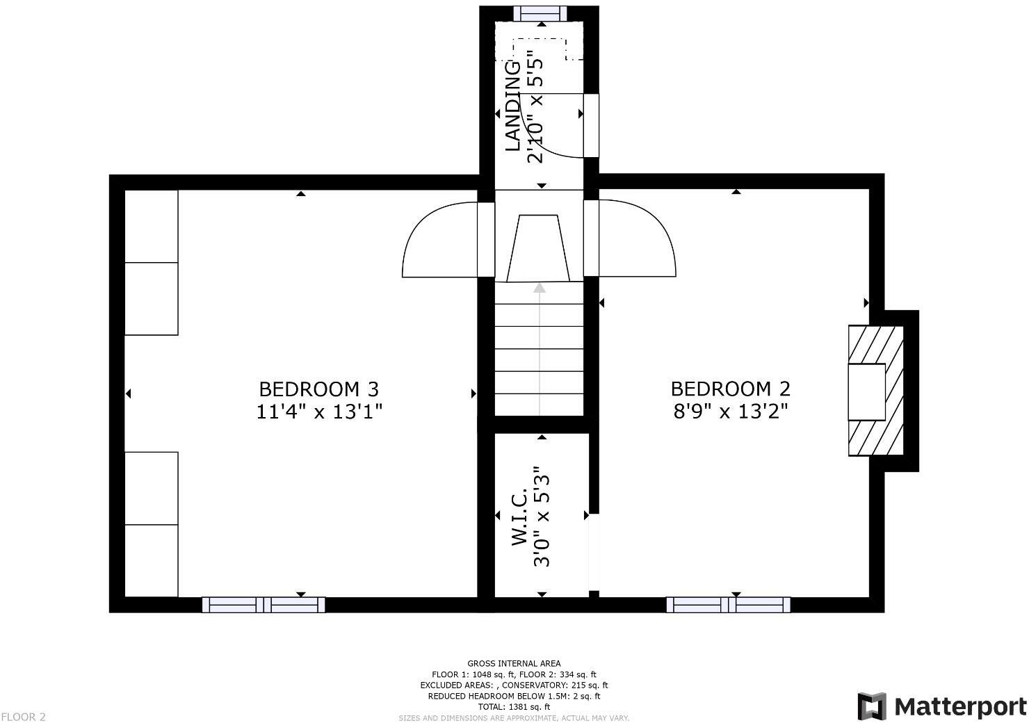
An extended and highly appointed three-bedroom detached farmhouse located off a very secluded and no through country lane standing in an elevated setting amidst mature grounds of about 0.5 acre, and an adjoining paddock and parcel of maturing woodland the whole extending to about 3 acres.

Property Oracle says ..

This property is a charming detached house located in Clocaenog, Ruthin, with a list price of £575,000. The house has three bedrooms and one bathroom, and is situated on a sizable plot of land, as shown in the provided images. The property appears to be well-maintained and in good condition, with a modern kitchen and conservatory. The surrounding area is rural, offering a tranquil setting. However, the nearest schools are several kilometers away, and there is no nearby transportation information available. Considering the average house price in the area is £363,878, and the average price per square foot is £391, this property is priced significantly higher. This could be justified by the larger plot size and the additional outbuildings, but further investigation into comparable properties with similar land sizes would be beneficial to determine the accuracy of the list price.

Therefore, we give this property 7 / 10. *Disclaimer: This is our option and does constitute a recommendation or financial advice. Do your own research. *

Price
5
Condition
8
Location
6
Land
9
Bedrooms
3
Bathrooms
1
Sqft (est)
1,381.00

The heatmap indicates the level of crime in the area. The color of the heatmap indicates the crime severity and recency.

Metrics Year-on-Year

Average area value
326,418.00 £
Decreased by 0.78 %
from 328,985.00 £
Est sale value
461,254.00 £
Increased by 1.52 %
from 454,349.00 £
Average area rental value
1,459.00 £/mo
Increased by 29.46 %
from 1,127.00 £/mo
Est letting value
1,381.00 £/mo
Unchanged by 0.00 %
from 1,381.00 £/mo
Est rental Yield
5.36 %
Increased by 30.41 %
from 4.11 %
Crime Rate
0.00 %
from 0.00 %

Agent Activity

  • Williams Estates created the listing.

Nearby Schools

NameTypeOfstedDistance
Borthyn V.C. Primary SchoolWelsh Establishment6.17 KM
Ysgol Reoledig Llanfair D.C.Welsh Establishment6.98 KM
Ysgol Pen BarrasWelsh Establishment7.31 KM
Rhos Street C.P. SchoolWelsh Establishment7.39 KM
Ysgol Bro ElwernWelsh Establishment7.64 KM

Images

WE_1.jpg WE_2.jpg WE_3.jpg WE_4.jpg WE_5.jpg WE_6.jpg WE_7.jpg WE_8.jpg WE_9.jpg WE_10.jpg WE_11.jpg WE_12.jpg WE_13.jpg WE_14.jpg WE_15.jpg WE_16.jpg WE_17.jpg WE_18.jpg WE_19.jpg WE_20.jpg WE_21.jpg WE_22.jpg WE_23.jpg WE_24.jpg WE_25.jpg WE_26.jpg WE_27.jpg WE_28.jpg WE_29.jpg WE_30.jpg WE_31.jpg WE_32.jpg WE_33.jpg

Nearby Listings

AddressPriceTypeScoreDistance
Clocaenog, Ruthin £ 575,000BUY7 / 100.00 KM
Cae Segwen, Clocaenog, Ruthin £ 325,000BUY7 / 100.01 KM
Clawddnewydd, Ruthin £ 230,000BUY7 / 101.50 KM
Clocaenog, Ruthin £ 460,000BUY6 / 101.57 KM
Clocaenog, Ruthin £ 470,000BUYUnknown1.63 KM

Nearby Properties

AddressPriceDistance
The Lodge £ 275,0001.90 KM
1 Crud Yr Awel £ 203,0001.90 KM
5 Crud Yr Awel £ 176,0001.90 KM
2 Crud Yr Awel £ 192,0001.91 KM
5 Maes Caenog £ 137,0001.92 KM