Murrayfield Park, 37 Corstorphine Road, Edinburgh
By Murray & Currie
£ 560,000
Reviews
3 out of 5 stars
Murray & Currie says ..
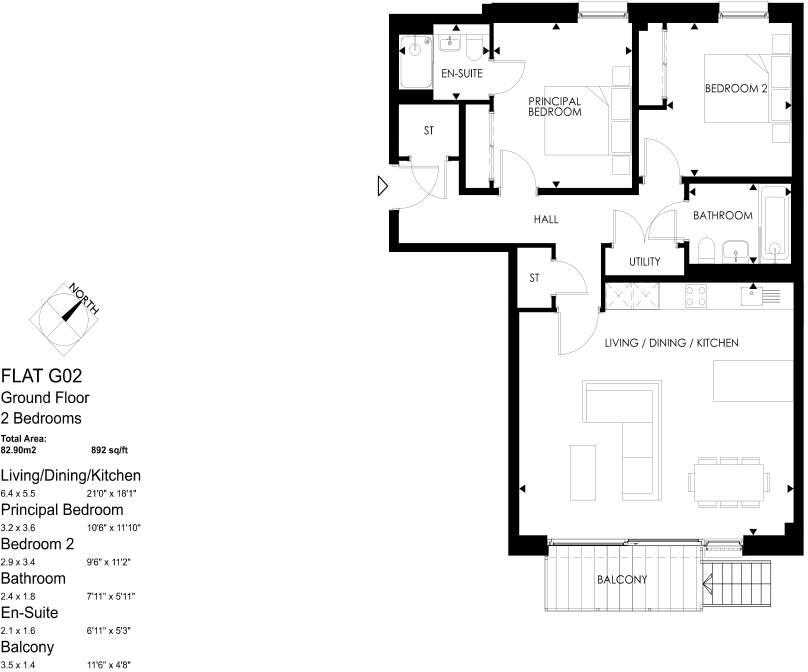
Plot G02 - Murray and Currie are delighted to present this new development by Rennick Property.
Property Oracle says ..
The property is a 2-bedroom, 2-bathroom flat located in the Murrayfield area of Edinburgh. Based on the images provided, the property appears to be modern in design and in excellent condition. The location is desirable, with nearby transportation links and schools. The list price of £560,000 seems reasonable considering the average price per sqft in the area and the property’s modern condition and desirable location. However, more information on the plot size and specifics of the property’s features would be beneficial in providing a more comprehensive analysis.
Therefore, we give this property 7 / 10. *Disclaimer: This is our option and does constitute a recommendation or financial advice. Do your own research. *
- Price
- 8
- Condition
- 10
- Location
- 9
- Land
- 3
- Bedrooms
- 2
- Bathrooms
- 2
- Sqft (est)
- 892.00
- Lot (est)
- 82.90
The heatmap indicates the level of crime in the area. The color of the heatmap indicates the crime severity and recency.
Metrics Year-on-Year
- Average area value
- 349,600.00 £Decreased by 7.69 %
- Est sale value
- 374,640.00 £Increased by 30.43 %
- Average area rental value
- 1,149.00 £/moDecreased by 24.51 %
- Est letting value
- 892.00 £/moUnchanged by 0.00 %
- Est rental Yield
- 3.94 %Decreased by 18.26 %
- Crime Rate
- 0.00 %
Agent Activity
Murray & Currie created the listing.
Nearby Schools
| Name | Type | Ofsted | Distance |
|---|---|---|---|
| Merchiston Castle School | Offshore Schools | 4.03 KM | |
| Cargilfield School | Offshore Schools | 7.16 KM |
Images
Nearby Streets
| Name | Average Price | Average Sqft | Distance |
|---|---|---|---|
| Succoth Avenue | £ 0 | 0 | 0.00 KM |
| Roseburn Path | £ 1,300,000 | 0 | 0.00 KM |
| Coltbridge Vale | £ 0 | 0 | 0.00 KM |
| Westerlea Gardens | £ 772,500 | 0 | 0.00 KM |
| Riversdale Road | £ 0 | 0 | 0.00 KM |
Nearby Transport
| Name | NLC | TLC | Distance |
|---|---|---|---|
| Slateford | 9236 | SLA | 2.14 KM |
| Haymarket | 9419 | HYM | 2.40 KM |
| Kingsknowe | 9217 | KGE | 4.05 KM |
| Edinburgh | 9328 | EDB | 5.79 KM |
| Wester Hailes | 9231 | WTA | 6.00 KM |
Nearby Listings
| Address | Price | Type | Score | Distance |
|---|---|---|---|---|
| Murrayfield Park, 37 Corstorphine Road, Edinburgh | £ 590,000 | BUY | 6 / 10 | 0.00 KM |
| Murrayfield Park, 37 Corstorphine Road, Edinburgh | £ 560,000 | BUY | 7 / 10 | 0.00 KM |
| Murrayfield Park, 37 Corstorphine Road, Edinburgh | £ 575,000 | BUY | 7 / 10 | 0.00 KM |
| Murrayfield Park, 37 Corstorphine Road, Edinburgh | £ 765,000 | BUY | 6 / 10 | 0.00 KM |
| Murrayfield Park, 37 Corstorphine Road, Edinburgh | £ 745,000 | BUY | 8 / 10 | 0.00 KM |