Stonesfield, Oxfordshire, OX29
CH

Stonesfield, Oxfordshire, OX29

By Chancellors

£ 400,000

Reviews

3 out of 5 stars

Chancellors says ..

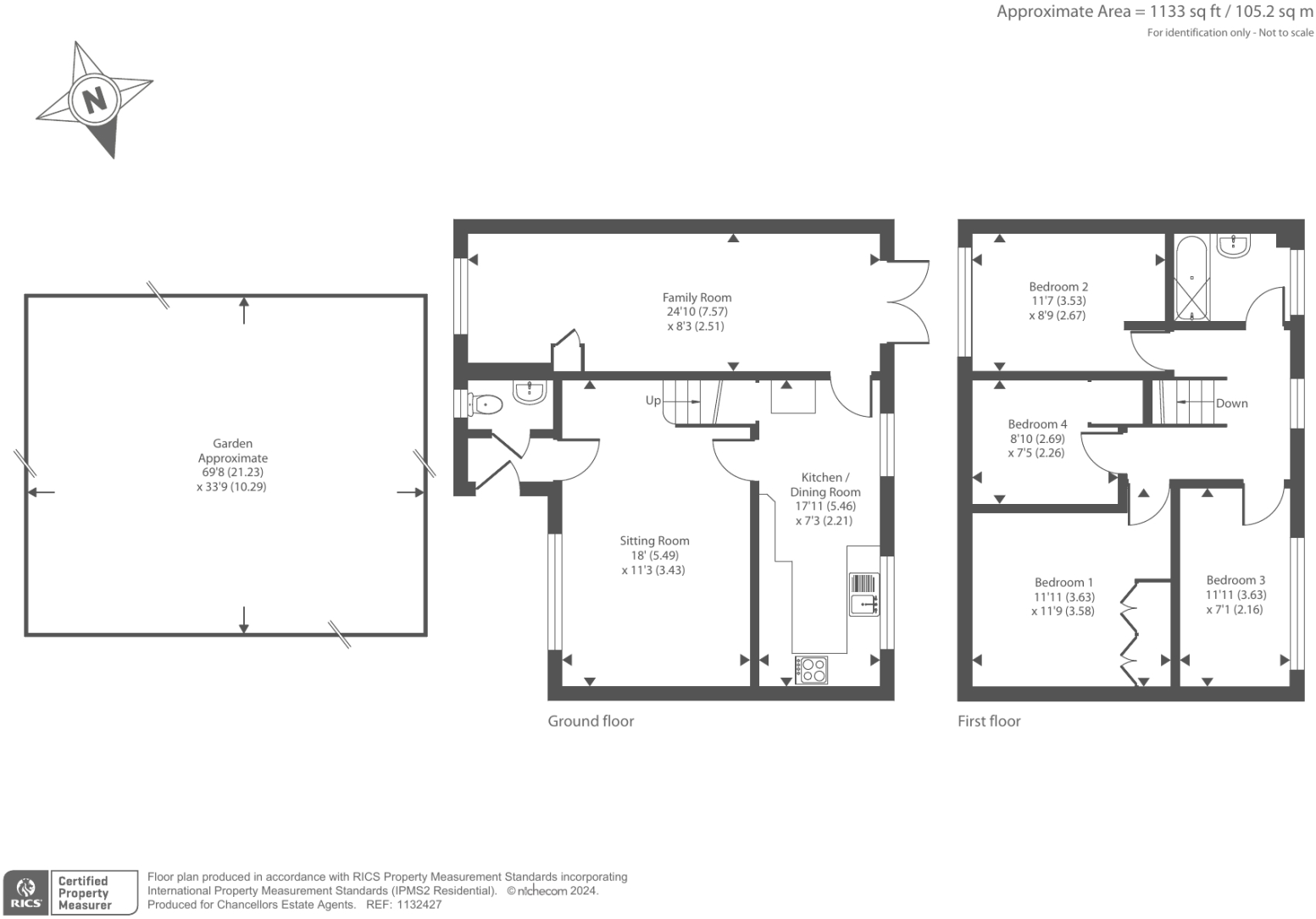
A semi-detached family home, situated in a small close in the very sought after village of Stonesfield. The property compromises of Four good sized bedrooms, two ample sized reception rooms, a well presented private rear garden and off street parking.

Property Oracle says ..

This four-bedroom semi-detached house in Stonesfield, Oxfordshire, presents a comfortable family home with several attractive features. The property’s location in Stonesfield offers a strong advantage, with the nearby Stonesfield Primary School being a major draw for families. While the photos don’t provide a comprehensive view of the property, the kitchen and bedrooms show a property that is habitable and well-maintained, though somewhat dated in decor. The garden, while not expansive, provides outdoor space. The list price falls within the range of similar properties in the area, but additional information on local square foot pricing would provide a more precise valuation. Potential buyers should assess the need for any cosmetic upgrades or renovations before purchase. Overall, the property presents a solid offering for a family seeking a home in a sought-after village location with good schooling.

Therefore, we give this property 6 / 10. *Disclaimer: This is our option and does constitute a recommendation or financial advice. Do your own research. *

Price
7
Condition
6
Location
7
Land
4
Bedrooms
4
Bathrooms
1
Sqft (est)
1,133.00
Lot (est)
711.46

The heatmap indicates the level of crime in the area. The color of the heatmap indicates the crime severity and recency.

Metrics Year-on-Year

Average area value
270,000.00 £
Increased by 41.58 %
from 190,711.00 £
Est sale value
411,279.00 £
Increased by 61.33 %
from 254,925.00 £
Average area rental value
936.00 £/mo
Decreased by 3.51 %
from 970.00 £/mo
Est letting value
1,133.00 £/mo
Unchanged by 0.00 %
from 1,133.00 £/mo
Est rental Yield
4.16 %
Decreased by 31.80 %
from 6.10 %
Crime Rate
45.00 %
Unchanged by 0.00 %
from 45.00 %

Agent Activity

  • Chancellors created the listing.

Nearby Schools

NameTypeOfstedDistance
Stonesfield Primary SchoolCommunity SchoolGood0.19 KM
Combe Cofe Primary SchoolVoluntary Controlled SchoolOutstanding3.43 KM
North Leigh Church Of England (Controlled) SchoolAcademy ConverterGood4.63 KM
Freeland Church Of England Primary SchoolAcademy ConverterGood4.96 KM
Finstock Church Of England Primary SchoolAcademy ConverterGood5.25 KM

Images

External View Kitchen Bedroom Bedroom Garden Reception Room Reception Room Bedroom Garden

Nearby Streets

NameAverage PriceAverage SqftDistance
High Street £ 900,00000.00 KM
Well Lane £ 500,00000.00 KM

Nearby Transport

NameNLCTLCDistance
Finstock3012FIN4.30 KM
Combe (Oxon)3005CME4.67 KM
Charlbury3004CBY6.86 KM
Hanborough3007HND7.06 KM

Nearby Listings

AddressPriceTypeScoreDistance
Stonesfield, Oxfordshire, OX29 £ 400,000BUY7 / 100.00 KM
Stonesfield, Oxfordshire, OX29 £ 400,000BUY6 / 100.00 KM
Peaks Lane, Stonesfield, OX29 £ 750,000BUY7 / 100.10 KM
Stonesfield, Oxfordshire, OX29 £ 675,000BUYUnknown0.10 KM
Stonesfield, Oxfordshire, OX29 £ 650,000BUYUnknown0.10 KM

Nearby Properties

AddressPriceDistance
22 Pumbro £ 297,5000.04 KM
26 Pumbro £ 190,0000.04 KM
11 Pumbro £ 280,0000.04 KM
27 Pumbro £ 248,0000.04 KM
14 Pumbro £ 273,5000.04 KM