Tannery Street, Sheffield
By William H. Brown
£ 290,000
Reviews
3 out of 5 stars
William H. Brown says ..
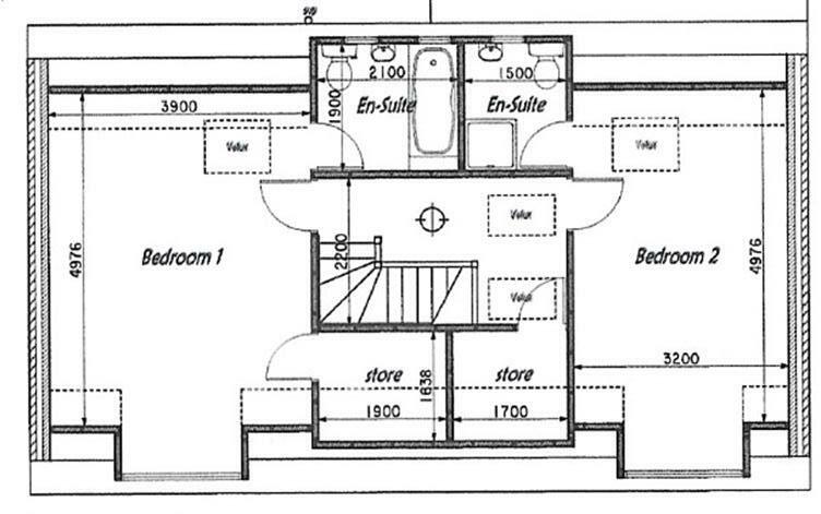
Two NEW BUILD modern, three bedroom properties that offer flexible living over two floors. With bi folding doors and appliances included these ENERGY EFFICENT homes will be ready for SPRING/SUMMER 2024. Contact us for more information.
Property Oracle says ..
This property in Woodhouse, Sheffield is a three-bedroom, two-bathroom house with an approximate size of 1,117.83 square feet. The architectural drawings suggest a modern and potentially energy-efficient design. The property includes a garden, which is a positive feature. It is noteworthy that the listing mentions the property’s readiness for spring/summer 2024, implying it may still be under construction or recently completed. Its location in Woodhouse provides relative proximity to schools and railway stations. While comparable properties in the surrounding area show varying prices and sizes, making precise price-per-square-foot comparisons challenging, the list price appears reasonably aligned with the market in Woodhouse and neighbouring streets with similar properties. More information regarding the actual finished property and precise land area would greatly enhance the assessment.
Therefore, we give this property 6 / 10. *Disclaimer: This is our option and does constitute a recommendation or financial advice. Do your own research. *
- Price
- 7
- Condition
- 8
- Location
- 7
- Land
- 4
- Bedrooms
- 3
- Bathrooms
- 2
- Sqft (est)
- 1,117.83
The heatmap indicates the level of crime in the area. The color of the heatmap indicates the crime severity and recency.
Metrics Year-on-Year
- Average area value
- 461,429.00 £Increased by 13.94 %
- Est sale value
- 617,042.16 £Increased by 13.58 %
- Average area rental value
- 1,822.00 £/moIncreased by 0.77 %
- Est letting value
- 2,235.66 £/moUnchanged by 0.00 %
- Est rental Yield
- 4.74 %Decreased by 11.57 %
- Crime Rate
- 63.00 %Unchanged by 0.00 %
Agent Activity
William H. Brown created the listing.
Nearby Schools
| Name | Type | Ofsted | Distance |
|---|---|---|---|
| Handsworth Grange Community Sports College | Academy Converter | Outstanding | 1.22 KM |
| Brunswick Community Primary School | Foundation School | Good | 1.23 KM |
| Woodhouse West Primary School | Academy Converter | 1.38 KM | |
| Ballifield Primary School | Foundation School | Good | 1.42 KM |
| Woodhouse Children'S Centre | Children's Centre Linked Site | 1.55 KM |
Images
Nearby Streets
| Name | Average Price | Average Sqft | Distance |
|---|---|---|---|
| Cross Drive | £ 240,000 | 0 | 0.00 KM |
| Waterslacks Road | £ 106,250 | 0 | 0.00 KM |
| Brunswick Gardens Village | £ 190,000 | 0 | 0.00 KM |
| Brookside Close | £ 325,000 | 0 | 0.00 KM |
| Highfield Lane | £ 0 | 0 | 0.00 KM |
Nearby Transport
| Name | NLC | TLC | Distance |
|---|---|---|---|
| Woodhouse | 6732 | WDH | 1.77 KM |
| Darnall | 6729 | DAN | 5.32 KM |
| Meadowhall | 6663 | MHS | 7.97 KM |
| Rotherham Central | 6676 | RMC | 8.36 KM |
Nearby Listings
| Address | Price | Type | Score | Distance |
|---|---|---|---|---|
| Tannery Street, Sheffield | £ 290,000 | BUY | 6 / 10 | 0.00 KM |
| Sheffield Road, Woodhouse, Sheffield | £ 230,000 | BUY | 6 / 10 | 0.19 KM |
| Chapel Street, Woodhouse, Sheffield, S13 7JL | £ 150,000 | BUY | 6 / 10 | 0.19 KM |
| Chapel Street, Woodhouse, Sheffield, South Yorkshire, S13 | £ 120,000 | BUY | 5 / 10 | 0.19 KM |
| Chapel Street, Woodhouse, Sheffield, South Yorkshire, S13 | £ 100,000 | BUY | 6 / 10 | 0.19 KM |
Nearby Properties
| Address | Price | Distance |
|---|---|---|
| 40 Tannery Street | £ 372,500 | 0.05 KM |
| 10 Tannery Street | £ 135,000 | 0.05 KM |
| 20 Tannery Street | £ 140,000 | 0.05 KM |
| 22 Tannery Street | £ 75,000 | 0.05 KM |
| 18 Tannery Street | £ 109,000 | 0.05 KM |