Grove Street, Hill Top, Slaithwaite, Huddersfield, HD7
By WM. Sykes & Son
£ 200,000
Reviews
2 out of 5 stars
WM. Sykes & Son says ..
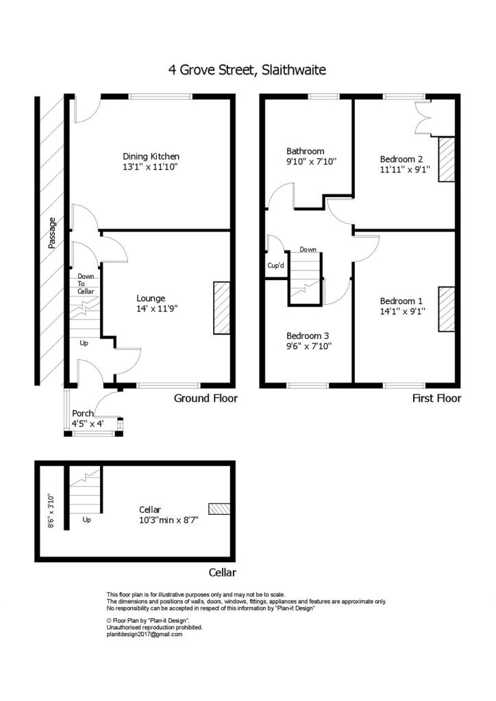
This surprisingly spacious 3 bedroomed stone built end terraced house occupies a popular residential location within walking distance of all the village amenities and a railway station, convenience store and fish & chip shop just a stone’s throw away. It has slightly more space at firs...
Property Oracle says ..
This end of terrace property is located in Slaithwaite, a village in the Colne Valley. The property itself is in need of modernisation, however it does benefit from having a small yard. The location is good, with nearby primary schools and a train station. The property is listed at £200,000, which is below the average price for the area. However, given the condition of the property, this price may still be slightly high.
Therefore, we give this property 5 / 10. *Disclaimer: This is our option and does constitute a recommendation or financial advice. Do your own research. *
- Price
- 6
- Condition
- 4
- Location
- 7
- Land
- 3
- Bedrooms
- 3
- Bathrooms
- 1
The heatmap indicates the level of crime in the area. The color of the heatmap indicates the crime severity and recency.
Metrics Year-on-Year
- Average area value
- 301,900.00 £Increased by 9.07 %
- Average area rental value
- 990.00 £/moIncreased by 18.71 %
- Est rental Yield
- 3.94 %Increased by 8.84 %
- Crime Rate
- 38.00 %Unchanged by 0.00 %
Agent Activity
WM. Sykes & Son created the listing.
Nearby Schools
| Name | Type | Ofsted | Distance |
|---|---|---|---|
| Nields Junior Infant And Nursery School | Community School | Good | 0.60 KM |
| Colne Valley Children'S Centre | Children's Centre | 0.65 KM | |
| Slaithwaite Church Of England Voluntary Controlled Junior And Infant School | Voluntary Controlled School | Good | 0.97 KM |
| Clough Head Junior And Infant School | Community School | Good | 1.75 KM |
| Wilberlee Junior And Infant School | Community School | Good | 1.83 KM |
Images
Nearby Streets
| Name | Average Price | Average Sqft | Distance |
|---|---|---|---|
| Wood Street | £ 0 | 0 | 0.00 KM |
| Brookside | £ 275,000 | 0 | 0.00 KM |
| Cross Street | £ 0 | 0 | 0.00 KM |
| Knowle Road | £ 0 | 0 | 0.00 KM |
| Glen Side Road | £ 0 | 0 | 0.00 KM |
Nearby Transport
| Name | NLC | TLC | Distance |
|---|---|---|---|
| Slaithwaite | 8450 | SWT | 0.22 KM |
| Marsden (Yorks) | 8445 | MSN | 5.74 KM |
| Lockwood | 8443 | LCK | 9.21 KM |
| Sowerby Bridge | 8527 | SOW | 9.63 KM |
| Berry Brow | 8431 | BBW | 9.96 KM |
Nearby Listings
| Address | Price | Type | Score | Distance |
|---|---|---|---|---|
| Grove Street, Hill Top, Slaithwaite, Huddersfield, HD7 | £ 200,000 | BUY | 5 / 10 | 0.00 KM |
| Grove Street, Slaithwaite, Huddersfield, West Yorkshire, HD7 | £ 215,000 | BUY | 6 / 10 | 0.04 KM |
| Union Street, Slaithwaite, Huddersfield, West Yorkshire, HD7 | £ 425,000 | BUY | Unknown | 0.08 KM |
| Union Street, Slaithwaite, Huddersfield, HD7 | £ 175,000 | BUY | 6 / 10 | 0.09 KM |
| Union Street, Slaithwaite, Huddersfield, HD7 | £ 185,000 | BUY | 6 / 10 | 0.09 KM |
Nearby Properties
| Address | Price | Distance |
|---|---|---|
| 22 Grove Street | £ 104,000 | 0.04 KM |
| 12 Grove Street | £ 160,000 | 0.04 KM |
| 15 Grove Street | £ 121,000 | 0.04 KM |
| 8 Grove Street | £ 50,000 | 0.04 KM |
| 1 Grove Street | £ 225,000 | 0.04 KM |