Oakwood Drive, Mount Pleasant, Shrewsbury, Shropshire, SY1
By D B Roberts & Partners
£ 200,000
Reviews
3 out of 5 stars
D B Roberts & Partners says ..
For Sale by Modern Method of Auction. Starting Bid £200,000 plus Reservation Fee. This is an excellent opportunity to acquire a spacious three-bedroom semi-detached house with great potential to improve and make a lovely family home or a perfect addition to a rental portfolio.
Property Oracle says ..
This is a three-bedroom semi-detached property located in Mount Pleasant, Shrewsbury. The property benefits from its proximity to local schools and transportation links. While the property requires renovation, it offers a good amount of space and garden. The asking price of £200,000 seems reasonable given the property’s condition and the local market.
Therefore, we give this property 6 / 10. *Disclaimer: This is our option and does constitute a recommendation or financial advice. Do your own research. *
- Price
- 7
- Condition
- 4
- Location
- 7
- Land
- 6
- Bedrooms
- 3
- Bathrooms
- 1
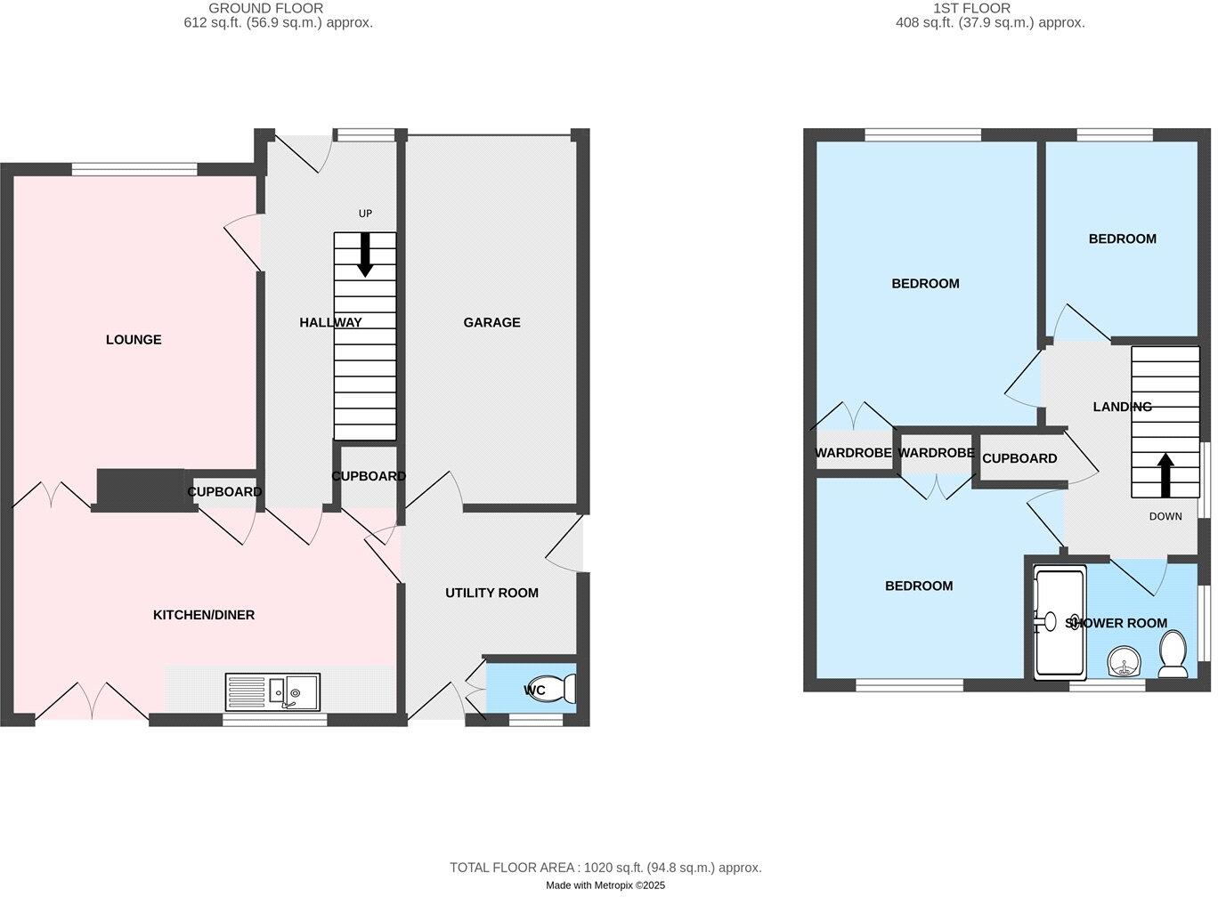
- Sqft (est)
- 1,020.00
The heatmap indicates the level of crime in the area. The color of the heatmap indicates the crime severity and recency.
Metrics Year-on-Year
- Average area value
- 243,278.00 £Decreased by 3.15 %
- Est sale value
- 319,260.00 £Increased by 28.81 %
- Average area rental value
- 1,186.00 £/moIncreased by 12.42 %
- Est letting value
- 1,020.00 £/moUnchanged by 0.00 %
- Est rental Yield
- 5.85 %Increased by 16.07 %
- Crime Rate
- 1.00 %Unchanged by 0.00 %
Agent Activity
D B Roberts & Partners created the listing.
Nearby Schools
| Name | Type | Ofsted | Distance |
|---|---|---|---|
| Mount Pleasant Primary | Academy Converter | Good | 0.55 KM |
| Grange Primary School | Academy Sponsor Led | 0.80 KM | |
| Greenfields Primary School | Academy Converter | Good | 1.18 KM |
| Greenacres Primary School | Academy Converter | 1.43 KM | |
| Shrewsbury Cathedral Catholic Primary School And Nursery | Voluntary Aided School | Good | 1.50 KM |
Images
Nearby Streets
| Name | Average Price | Average Sqft | Distance |
|---|---|---|---|
| Heathfield Close | £ 0 | 0 | 0.00 KM |
| Horley Drive | £ 250,000 | 0 | 0.00 KM |
| Worcester Road | £ 0 | 0 | 0.00 KM |
| Mount Pleasant Road | £ 160,000 | 0 | 0.00 KM |
| Cedar Drive | £ 500,000 | 0 | 0.00 KM |
Nearby Transport
| Name | NLC | TLC | Distance |
|---|---|---|---|
| Shrewsbury | 4387 | SHR | 2.12 KM |
| Yorton | 1351 | YRT | 8.78 KM |
Nearby Listings
| Address | Price | Type | Score | Distance |
|---|---|---|---|---|
| Oakwood Drive, Mount Pleasant, Shrewsbury, Shropshire, SY1 | £ 200,000 | BUY | 6 / 10 | 0.00 KM |
| 2 Ashfields Road, Heath Farm, Shrewsbury, SY1 3EE | £ 365,000 | BUY | 6 / 10 | 0.10 KM |
| Oakwood Drive, Heath Farm, Shrewsbury | £ 240,000 | BUY | 6 / 10 | 0.13 KM |
| Ashfields Road, Heath Farm, Shrewsbury, Shropshire, SY1 | £ 240,000 | BUY | Unknown | 0.21 KM |
| Ashfields Road, Shrewsbury | £ 350,000 | BUY | 6 / 10 | 0.22 KM |
Nearby Properties
| Address | Price | Distance |
|---|---|---|
| 14 Ashfields Road | £ 167,000 | 0.06 KM |
| 4 Oakdale Drive | £ 210,000 | 0.07 KM |
| 5 Oakdale Drive | £ 350,000 | 0.07 KM |
| 4 Langtree Drive | £ 275,000 | 0.12 KM |
| 6 Langtree Drive | £ 83,000 | 0.12 KM |