Taylor Engley says ..
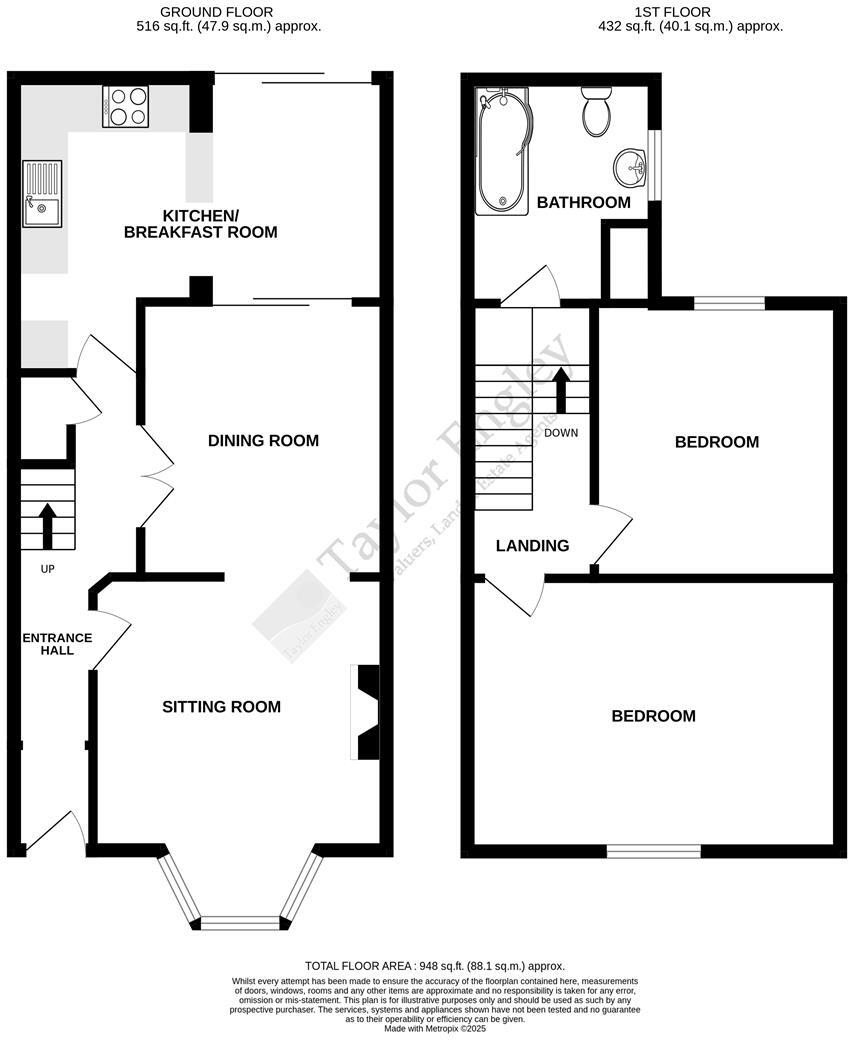
An opportunity arises to acquire this TWO BEDROOMED TERRACE HOME, located in the popular Seaside area of Eastbourne. The property is considered to be in good decorative order and has the benefit of gas fired central heating and double glazed windows. Features include a bay fronted sitting room, d...
Property Oracle says ..
Therefore, we give this property 6 / 10. *Disclaimer: This is our option and does constitute a recommendation or financial advice. Do your own research. *
- Price
- 7
- Condition
- 8
- Location
- 7
- Land
- 3
- Bedrooms
- 2
- Bathrooms
- 1
- Sqft (est)
- 948.00
The heatmap indicates the level of crime in the area. The color of the heatmap indicates the crime severity and recency.
Metrics Year-on-Year
- Average area value
- 238,995.00 £Decreased by 14.36 %
- Est sale value
- 273,024.00 £Increased by 26.87 %
- Average area rental value
- 991.00 £/moDecreased by 9.99 %
- Est letting value
- 948.00 £/mo
- Est rental Yield
- 4.98 %Increased by 5.29 %
- Crime Rate
- 17.00 %Unchanged by 0.00 %
from 279,071.00 £
from 215,196.00 £
from 1,101.00 £/mo
from 0.00 £/mo
from 4.73 %
from 17.00 %
Agent Activity
Taylor Engley created the listing.
Nearby Schools
| Name | Type | Ofsted | Distance |
|---|---|---|---|
| Devonshire Children'S Centre | Children's Centre | 0.24 KM | |
| Bourne Primary School | Community School | Good | 0.38 KM |
| Anderida Learning Centre | Other Independent Special School | Good | 0.53 KM |
| Roselands Infants' School | Academy Converter | 0.78 KM | |
| Stafford Junior School | Academy Sponsor Led | 1.42 KM |
Images
Nearby Streets
| Name | Average Price | Average Sqft | Distance |
|---|---|---|---|
| Manifold Mews | £ 0 | 0 | 0.00 KM |
| Abbotts Close | £ 250,000 | 0 | 0.00 KM |
| Whitley Road | £ 270,000 | 0 | 0.00 KM |
| Sovereign Court | £ 126,856 | 0 | 0.00 KM |
| Upper Avenue Roundabout | £ 0 | 0 | 0.00 KM |
Nearby Transport
| Name | NLC | TLC | Distance |
|---|---|---|---|
| Eastbourne | 5448 | EBN | 1.61 KM |
| Hampden Park (Sussex) | 5450 | HMD | 3.19 KM |
| Pevensey And Westham | 5461 | PEV | 5.81 KM |
| Pevensey Bay | 5462 | PEB | 7.25 KM |
| Polegate | 5455 | PLG | 7.76 KM |
Nearby Listings
| Address | Price | Type | Score | Distance |
|---|---|---|---|---|
| Seaside, Eastbourne | £ 265,000 | BUY | 6 / 10 | 0.00 KM |
| 74 Seaside Flat 1, Eastbourne | £ 127,000 | BUY | Unknown | 0.07 KM |
| Seaside, Eastbourne, East Sussex, BN22 | £ 795,000 | BUY | 7 / 10 | 0.09 KM |
| St. Aubyns Road, Eastbourne | £ 500,000 | BUY | 6 / 10 | 0.09 KM |
| St. Aubyns Road, Eastbourne | £ 150,000 | BUY | 5 / 10 | 0.09 KM |
Nearby Properties
| Address | Price | Distance |
|---|---|---|
| 162 - 164 Seaside | £ 138,000 | 0.07 KM |
| 108a Seaside | £ 145,000 | 0.08 KM |
| 112a Seaside | £ 135,000 | 0.08 KM |
| 108 Seaside | £ 82,160 | 0.08 KM |
| 108b Seaside | £ 94,950 | 0.09 KM |