Dock Street, Leeds, LS10
By The Home Movement
£ 400,000
Reviews
3 out of 5 stars
The Home Movement says ..
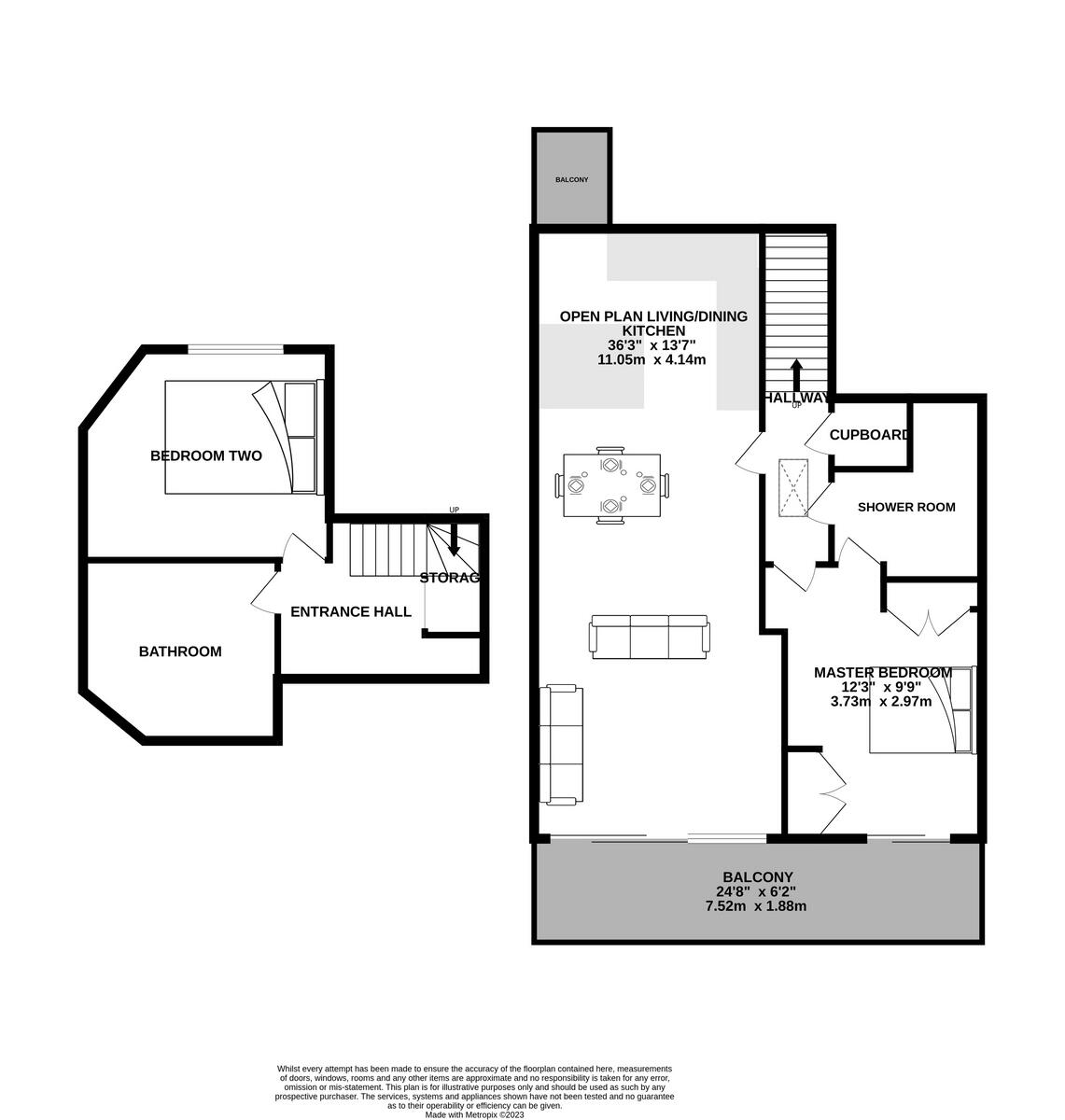
Welcome to this stunning two bedroom, two bathroom duplex penthouse nestled in the heart of Leeds at the prestigious 1 Dock Street development,.This exclusive development combines luxury living with breathtaking city and riverside views
Property Oracle says ..
This two-bedroom, two-bathroom apartment is located on Dock Street in Leeds’ Hunslet & Riverside area, a highly sought-after location due to its proximity to Leeds City Centre and excellent transport links. The property benefits from a short distance (0.83km) to Leeds Train Station, making commuting convenient. Local schools include The Ruth Gorse Academy, which has an Outstanding Ofsted rating, enhancing the property’s family appeal.
The interior is presented to a high standard, with a modern kitchen and bathroom. The decor is stylish and contemporary. Large windows allow ample natural light and offer views of the surrounding area, which, from the photos, appears to be a mix of older and newer residential and commercial buildings. A balcony is also included.
The lack of information on the plot size suggests this is an apartment within a larger development. While the property is aesthetically pleasing and well-located, further analysis is needed to compare its price per square foot with other similar properties in the same development and surrounding area before a definitive conclusion can be reached on the list price’s competitiveness. Currently, the price appears reasonable but not outstandingly good value, given the variety of pricing for nearby comparable properties.
Therefore, we give this property 6 / 10. *Disclaimer: This is our option and does constitute a recommendation or financial advice. Do your own research. *
- Price
- 7
- Condition
- 9
- Location
- 8
- Land
- 2
- Bedrooms
- 2
- Bathrooms
- 2
- Sqft (est)
- 836.79
The heatmap indicates the level of crime in the area. The color of the heatmap indicates the crime severity and recency.
Metrics Year-on-Year
- Average area value
- 203,580.00 £Increased by 6.29 %
- Est sale value
- 234,301.20 £Increased by 10.24 %
- Average area rental value
- 1,193.00 £/moIncreased by 0.17 %
- Est letting value
- 836.79 £/moUnchanged by 0.00 %
- Est rental Yield
- 7.03 %Decreased by 5.76 %
- Crime Rate
- 22.00 %Unchanged by 0.00 %
Agent Activity
The Home Movement created the listing.
Nearby Schools
| Name | Type | Ofsted | Distance |
|---|---|---|---|
| The Ruth Gorse Academy | Free Schools | Outstanding | 0.67 KM |
| University Technical College Leeds | University Technical College | Requires improvement | 0.94 KM |
| Leeds College Of Music | Higher Education Institutions | 0.95 KM | |
| Ls-Ten | Other Independent School | 1.12 KM | |
| Leeds College Of Building | Further Education | Good | 1.18 KM |
Images
Nearby Streets
| Name | Average Price | Average Sqft | Distance |
|---|---|---|---|
| Leeds Bridge | £ 0 | 0 | 0.00 KM |
| Assembly Street | £ 0 | 0 | 0.00 KM |
| Pine Court | £ 210,000 | 0 | 0.00 KM |
| Southern Access Road | £ 0 | 0 | 0.00 KM |
| Blayd's Mews | £ 0 | 0 | 0.00 KM |
Nearby Transport
| Name | NLC | TLC | Distance |
|---|---|---|---|
| Leeds | 8487 | LDS | 0.83 KM |
| Burley Park | 8500 | BUY | 4.57 KM |
| Cottingley | 8505 | COT | 5.95 KM |
| Headingley | 8498 | HDY | 6.50 KM |
| Morley | 8504 | MLY | 7.41 KM |
Nearby Listings
| Address | Price | Type | Score | Distance |
|---|---|---|---|---|
| Dock Street, Leeds, LS10 | £ 400,000 | BUY | 6 / 10 | 0.00 KM |
| No.1 Dock Street | £ 160,000 | BUY | 7 / 10 | 0.02 KM |
| No.1 Dock Street | £ 310,000 | BUY | 5 / 10 | 0.04 KM |
| Flax House, Navigation Walk | £ 275,000 | BUY | 4 / 10 | 0.05 KM |
| 1 DOCK STREET, LEEDS, LS10 | £ 260,000 | BUY | 7 / 10 | 0.07 KM |
Nearby Properties
| Address | Price | Distance |
|---|---|---|
| 23 Riverside Court | £ 96,500 | 0.07 KM |
| 43 Riverside Court | £ 180,000 | 0.07 KM |
| 42 Riverside Court | £ 155,000 | 0.07 KM |
| 21 Riverside Court | £ 155,000 | 0.07 KM |
| 15 Riverside Court | £ 59,500 | 0.07 KM |