Musters Road, West Bridgford, Nottingham, Nottinghamshire, NG2
By Rex Gooding
£ 165,000
Reviews
3 out of 5 stars
Rex Gooding says ..
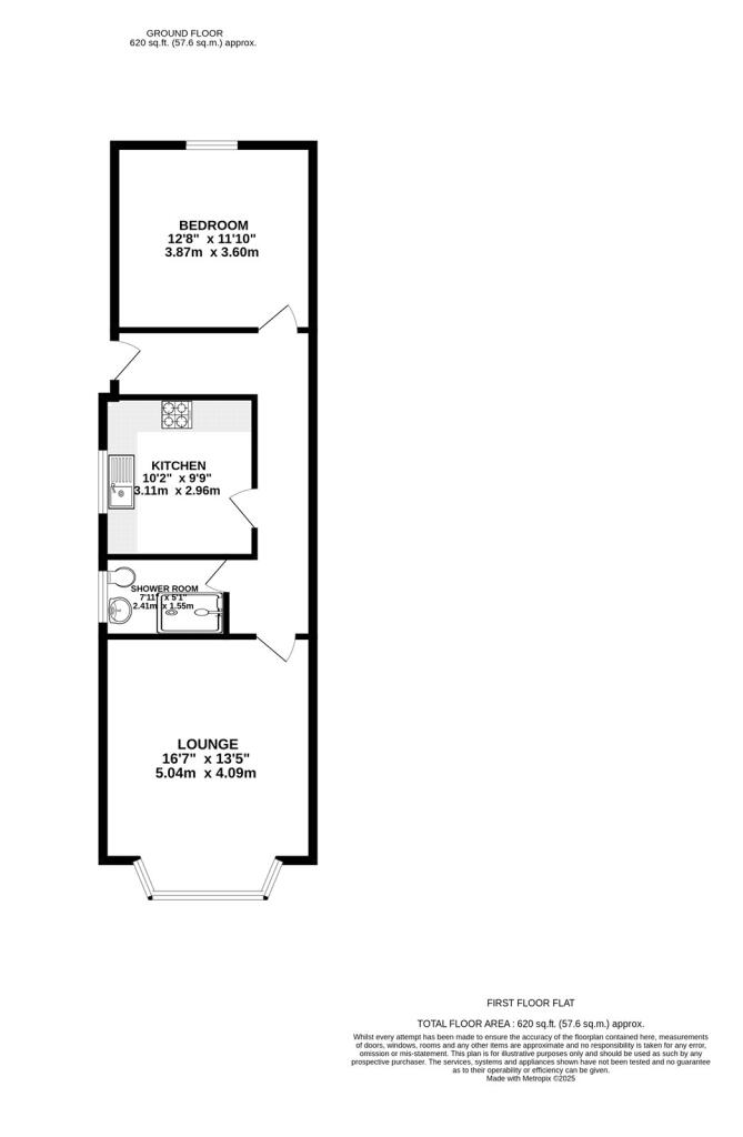
FOOTPRINT OF A TWO BED WITH POTENTIAL TO CREATE A SECOND BEDROOM (620 SQ.FT.). LEASEHOLD 970 YEARS REMAINING. Perfectly positioned in the heart of West Bridgford, this beautifully presented first-floor apartment offers an exceptional opportunity to secure a prime piece of real estate ...
Property Oracle says ..
This is a one-bedroom apartment located on Musters Road in West Bridgford. The property appears to be in good condition, with a modern kitchen and bathroom. While it lacks private outdoor space, its location offers convenient access to local amenities, schools, and transportation. The listing price seems appropriate for the area and property type. The apartment is near West Bridgford Infant School which is rated as ‘Outstanding’.
Therefore, we give this property 6 / 10. *Disclaimer: This is our option and does constitute a recommendation or financial advice. Do your own research. *
- Price
- 7
- Condition
- 7
- Location
- 7
- Land
- 3
- Bedrooms
- 1
- Bathrooms
- 1
The heatmap indicates the level of crime in the area. The color of the heatmap indicates the crime severity and recency.
Metrics Year-on-Year
- Average area value
- 424,500.00 £Increased by 7.93 %
- Average area rental value
- 830.00 £/moDecreased by 15.99 %
- Est rental Yield
- 2.35 %Decreased by 21.93 %
- Crime Rate
- 6.00 %Unchanged by 0.00 %
Agent Activity
Rex Gooding created the listing.
Nearby Schools
| Name | Type | Ofsted | Distance |
|---|---|---|---|
| West Bridgford Infant School | Community School | Outstanding | 0.18 KM |
| Clayfield House | Secure Units | 0.67 KM | |
| West Bridgford Junior School | Community School | Outstanding | 1.16 KM |
| Lady Bay Primary School | Community School | Good | 1.44 KM |
| Jesse Gray Primary School | Community School | Good | 1.49 KM |
Images
Nearby Streets
| Name | Average Price | Average Sqft | Distance |
|---|---|---|---|
| Melton Grove | £ 0 | 0 | 0.00 KM |
| Ethel Road | £ 0 | 0 | 0.00 KM |
| Carlyle Court | £ 305,000 | 0 | 0.00 KM |
| The Poplars | £ 200,000 | 0 | 0.00 KM |
| Welbeck Road | £ 0 | 0 | 0.00 KM |
Nearby Transport
| Name | NLC | TLC | Distance |
|---|---|---|---|
| Nottingham | 1826 | NOT | 2.31 KM |
| Netherfield | 6241 | NET | 6.76 KM |
| Carlton | 6201 | CTO | 7.09 KM |
| Beeston | 1625 | BEE | 8.35 KM |
Nearby Listings
| Address | Price | Type | Score | Distance |
|---|---|---|---|---|
| Musters Road, West Bridgford, Nottingham, Nottinghamshire, NG2 | £ 165,000 | BUY | 6 / 10 | 0.00 KM |
| Musters Road, West Bridgford, NG2 | £ 175,000 | BUY | 6 / 10 | 0.08 KM |
| George Road, Nottingham | £ 550,000 | BUY | Unknown | 0.13 KM |
| Musters Road, West Bridgford, Nottinghamshire, NG2 7PS | £ 190,000 | BUY | 5 / 10 | 0.13 KM |
| Musters Road, West Bridgford, Nottingham, Nottinghamshire, NG2 | £ 249,950 | BUY | 6 / 10 | 0.14 KM |
Nearby Properties
| Address | Price | Distance |
|---|---|---|
| 92 Musters Road | £ 395,000 | 0.06 KM |
| 78a Musters Road | £ 270,000 | 0.07 KM |
| 78 Musters Road | £ 159,000 | 0.07 KM |
| 114b Musters Road | £ 172,000 | 0.13 KM |
| 114a Musters Road | £ 110,000 | 0.13 KM |