BR
Sandstone Drive, Newton, Merseyside, CH48
By Bradshaw Farnham & Lea
£ 450,000
Reviews
4 out of 5 stars
Bradshaw Farnham & Lea says ..
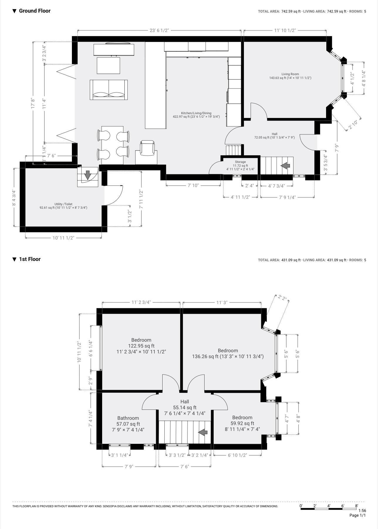
This detached family home has been refurbished in a contemporary style. If you are looking for a property that offers a quiet location, plenty of room to entertain and convenience to transport links, then this home is for you. You can move in, put your belongings in situ, open up the bi fold door...
Property Oracle says ..
Therefore, we give this property 8 / 10. *Disclaimer: This is our option and does constitute a recommendation or financial advice. Do your own research. *
- Price
- 9
- Condition
- 8
- Location
- 8
- Land
- 7
- Bedrooms
- 3
- Bathrooms
- 1
- Sqft (est)
- 1,174.32
The heatmap indicates the level of crime in the area. The color of the heatmap indicates the crime severity and recency.
Metrics Year-on-Year
- Average area value
- 469,059.00 £Decreased by 9.83 %
- Est sale value
- 472,076.64 £Increased by 6.91 %
- Average area rental value
- 1,813.00 £/moIncreased by 59.88 %
- Est letting value
- 1,174.32 £/mo
- Est rental Yield
- 4.64 %Increased by 77.10 %
- Crime Rate
- 7.00 %Unchanged by 0.00 %
from 520,171.00 £
from 441,544.32 £
from 1,134.00 £/mo
from 0.00 £/mo
from 2.62 %
from 7.00 %
Agent Activity
Bradshaw Farnham & Lea created the listing.
Nearby Schools
| Name | Type | Ofsted | Distance |
|---|---|---|---|
| Hilbre High School | Academy Converter | Good | 0.61 KM |
| Calday Grange Grammar School | Academy Converter | Good | 0.77 KM |
| Black Horse Hill Junior School | Community School | Good | 0.84 KM |
| Black Horse Hill Infant School | Community School | Requires improvement | 0.84 KM |
| West Kirby Children'S Centre | Children's Centre | 0.99 KM |
Images
Nearby Streets
| Name | Average Price | Average Sqft | Distance |
|---|---|---|---|
| Woodland Road | £ 0 | 0 | 0.00 KM |
| Cheriton Avenue | £ 0 | 0 | 0.00 KM |
| Willow Close | £ 0 | 0 | 0.00 KM |
| King's Drive | £ 2,250,000 | 0 | 0.00 KM |
| Sussex Road | £ 0 | 0 | 0.00 KM |
Nearby Transport
| Name | NLC | TLC | Distance |
|---|---|---|---|
| West Kirby | 2201 | WKI | 2.92 KM |
| Manor Road | 2253 | MNR | 2.96 KM |
| Meols | 2254 | MEO | 3.06 KM |
| Hoylake | 2194 | HYK | 3.11 KM |
| Moreton (Merseyside) | 2151 | MRT | 6.22 KM |
Nearby Listings
| Address | Price | Type | Score | Distance |
|---|---|---|---|---|
| Sandstone Drive, Newton, Merseyside, CH48 | £ 450,000 | BUY | 8 / 10 | 0.00 KM |
| Sandstone Drive, Wirral, CH48 | £ 395,000 | BUY | 6 / 10 | 0.05 KM |
| Sandstone Drive, West Kirby, Wirral | £ 475,000 | BUY | 7 / 10 | 0.06 KM |
| Ennisdale Drive, Wirral | £ 165,000 | BUY | 6 / 10 | 0.07 KM |
| Sandstone Drive, West Kirby, Wirral | £ 165,000 | BUY | 7 / 10 | 0.10 KM |
Nearby Properties
| Address | Price | Distance |
|---|---|---|
| 24 Sandstone Drive | £ 377,500 | 0.01 KM |
| 8 Sandstone Drive | £ 425,000 | 0.01 KM |
| 6 Sandstone Drive | £ 445,000 | 0.01 KM |
| 4 Sandstone Drive | £ 365,000 | 0.01 KM |
| 30 Sandstone Drive | £ 214,000 | 0.01 KM |