Whisterfield Lane, Lower Withington, SK11
By Stuart Rushton & Co
£ 1,795,000
Reviews
4 out of 5 stars
Stuart Rushton & Co says ..
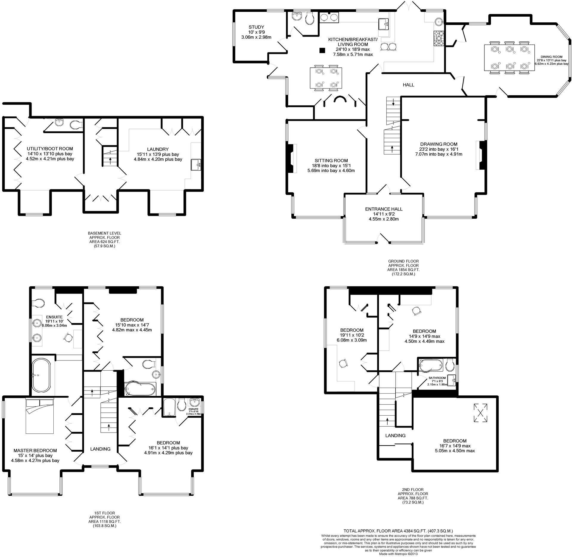
Stunning lakeside period home with 3,500 sq. ft. of living space over 4 floors. Beautiful gardens, stables, and paddock all set on about 4.25 acres of land.
Property Oracle says ..
This property is a large family home located in Lower Withington, Cheshire. The house is in excellent condition and has been well maintained. The property boasts a large garden and is situated in a desirable location close to good schools and transport links. The list price is high, but given the size, condition, and location of the property, it is reasonable.
Therefore, we give this property 8 / 10. *Disclaimer: This is our option and does constitute a recommendation or financial advice. Do your own research. *
- Price
- 7
- Condition
- 9
- Location
- 8
- Land
- 9
- Bedrooms
- 6
- Bathrooms
- 4
- Sqft (est)
- 3,157.00
- Lot (est)
- 4,384.00
The heatmap indicates the level of crime in the area. The color of the heatmap indicates the crime severity and recency.
Metrics Year-on-Year
- Average area value
- 751,347.00 £Increased by 38.02 %
- Est sale value
- 1,572,186.00 £Increased by 35.33 %
- Average area rental value
- 1,608.00 £/moIncreased by 29.47 %
- Est letting value
- 3,157.00 £/mo
- Est rental Yield
- 2.57 %Decreased by 6.20 %
- Crime Rate
- 0.00 %
Agent Activity
Stuart Rushton & Co created the listing.
Nearby Schools
| Name | Type | Ofsted | Distance |
|---|---|---|---|
| Chelford Cofe Primary School | Voluntary Controlled School | Good | 4.74 KM |
| Marton And District Cofe Aided Primary School | Voluntary Aided School | Good | 4.92 KM |
| Terra Nova School | Other Independent School | 5.41 KM | |
| Nether Alderley Primary School | Academy Converter | Good | 5.90 KM |
| David Lewis School | Non-maintained Special School | Good | 6.12 KM |
Images
Nearby Transport
| Name | NLC | TLC | Distance |
|---|---|---|---|
| Chelford (Cheshire) | 2764 | CEL | 4.24 KM |
| Goostrey | 1220 | GTR | 7.62 KM |
| Alderley Edge | 2760 | ALD | 7.67 KM |
Nearby Listings
| Address | Price | Type | Score | Distance |
|---|---|---|---|---|
| Whisterfield Lane, Lower Withington, SK11 | £ 1,795,000 | BUY | 8 / 10 | 0.00 KM |
| Whitecroft Heath Road, Lower Withington, SK11 | £ 1,795,000 | BUY | 8 / 10 | 0.90 KM |
| 1-2 Piggotts Hall, Congleton Lane, SK11 | £ 1,250,000 | BUY | 7 / 10 | 0.93 KM |
| Salters Lane, Lower Withington, Macclesfield, Cheshire, SK11 | £ 1,895,000 | BUY | 7 / 10 | 1.30 KM |
Nearby Properties
| Address | Price | Distance |
|---|---|---|
| Withington House | £ 775,000 | 0.07 KM |
| Haddon Cottage | £ 700,000 | 0.07 KM |
| The Croft | £ 1,600,000 | 0.79 KM |
| Bodkin Hall | £ 1,825,000 | 0.79 KM |
| Walnut Cottage | £ 520,250 | 0.79 KM |