Brian Cox says ..
Brian Cox Estate Agents are delighted to offer this three bedroom semi-detached family home to the market! This property offers comfortable living near amenities, schools, and sprawling greens. It showcases a well-proportioned interior with charming interiors. This property benefits from having a...
Property Oracle says ..
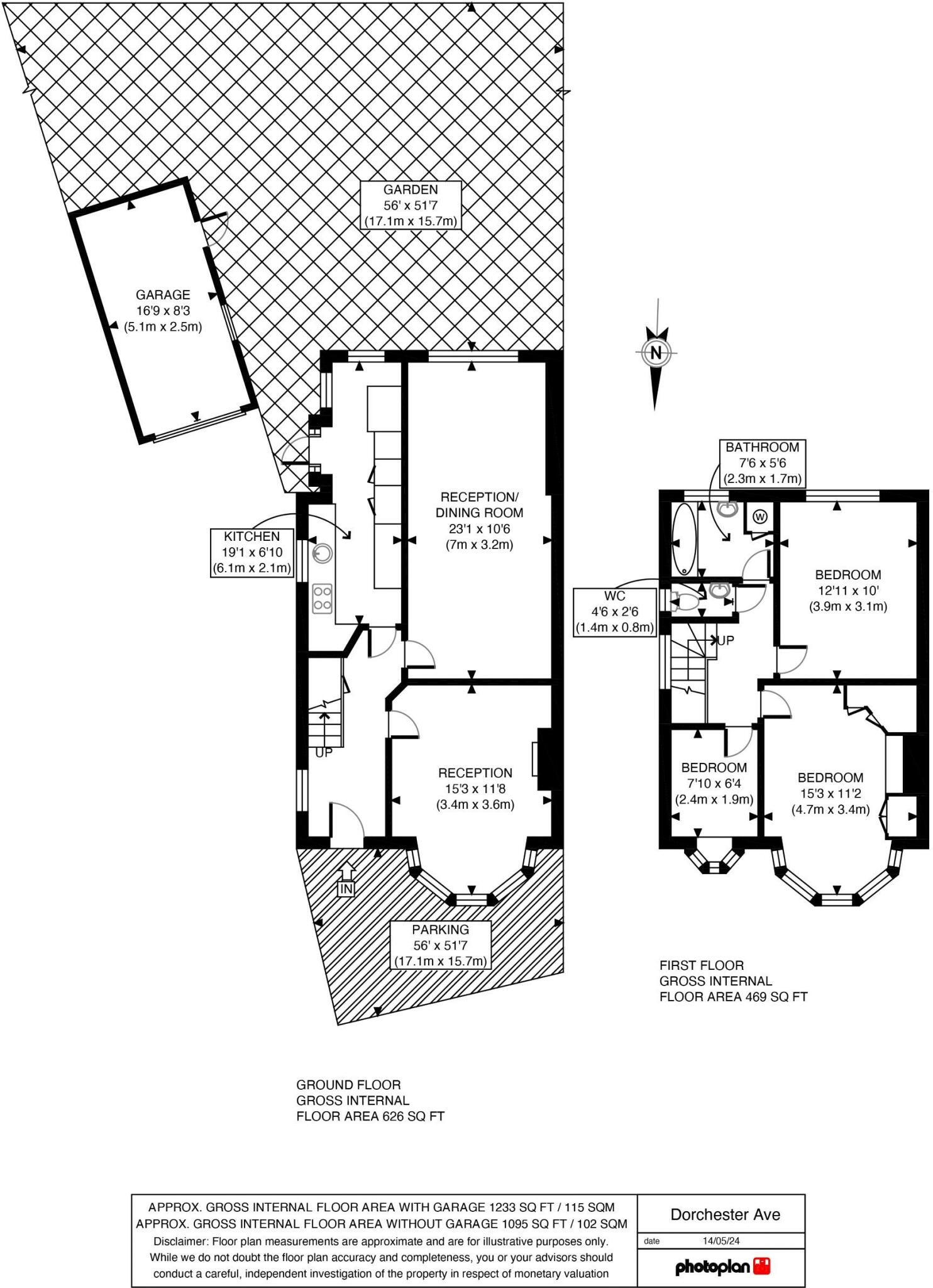
This three-bedroom semi-detached house in West Harrow, HA2 7AX, presents a comfortable family home with a good-sized garden. The property’s location is advantageous, being close to highly-rated primary and secondary schools, providing a significant draw for families. While transport links are not immediately proximate, there are several stations within reasonable commuting distance. The interior is functional but would benefit from some modernisation to enhance its aesthetic appeal. The photographs reveal a relatively well-maintained property with a sizeable and inviting garden, including paved patio areas and a grassy lawn, ideal for outdoor living. The list price seems competitive when considering comparable properties in the area, indicating a reasonable value proposition for buyers. However, potential buyers should factor in potential costs associated with updating or modernising the interior to reflect current style trends.
Therefore, we give this property 6 / 10. *Disclaimer: This is our option and does constitute a recommendation or financial advice. Do your own research. *
- Price
- 7
- Condition
- 6
- Location
- 7
- Land
- 7
- Bedrooms
- 3
- Bathrooms
- 1
- Sqft (est)
- 1,237.85
The heatmap indicates the level of crime in the area. The color of the heatmap indicates the crime severity and recency.
Metrics Year-on-Year
- Average area value
- 341,429.00 £Increased by 9.95 %
- Est sale value
- 387,447.05 £Decreased by 25.65 %
- Average area rental value
- 875.00 £/moDecreased by 18.53 %
- Est letting value
- 0.00 £/moDecreased by 100.00 %
- Est rental Yield
- 3.08 %Decreased by 25.78 %
- Crime Rate
- 1.00 %Unchanged by 0.00 %
Agent Activity
Brian Cox created the listing.
Nearby Schools
| Name | Type | Ofsted | Distance |
|---|---|---|---|
| Vaughan Primary School | Community School | Outstanding | 0.10 KM |
| Grange | Children's Centre Linked Site | 0.69 KM | |
| Whitmore High School | Community School | Outstanding | 0.82 KM |
| Grange Primary School | Community School | Requires improvement | 0.92 KM |
| Rayners Lane Children'S Centre | Children's Centre Linked Site | 1.34 KM |
Images
Nearby Streets
| Name | Average Price | Average Sqft | Distance |
|---|---|---|---|
| Argyle Road | £ 0 | 0 | 0.00 KM |
| Grafton Road | £ 360,000 | 0 | 0.00 KM |
| Station Road | £ 173,750 | 0 | 0.00 KM |
| Marshall Close | £ 495,000 | 0 | 0.00 KM |
| Pool Road | £ 320,000 | 0 | 0.00 KM |
Nearby Transport
| Name | NLC | TLC | Distance |
|---|---|---|---|
| Harrow-On-The-Hill | 598 | HOH | 2.05 KM |
| Headstone Lane | 1434 | HDL | 2.52 KM |
| Northolt Park | 1478 | NLT | 2.54 KM |
| Harrow And Wealdstone | 1397 | HRW | 2.70 KM |
| Sudbury Hill Harrow | 1484 | SDH | 3.26 KM |
Nearby Listings
| Address | Price | Type | Score | Distance |
|---|---|---|---|---|
| Dorchester Avenue, Harrow, HA2 | £ 725,000 | BUY | 6 / 10 | 0.06 KM |
| Dorchester Avenue, West Harrow | £ 699,950 | BUY | 6 / 10 | 0.06 KM |
| Beaumont Avenue, North Harrow | £ 725,000 | BUY | 6 / 10 | 0.10 KM |
| Blenheim Road, North Harrow | £ 725,000 | BUY | 6 / 10 | 0.18 KM |
| Blenheim Road, Harrow | £ 295,000 | BUY | 7 / 10 | 0.22 KM |
Nearby Properties
| Address | Price | Distance |
|---|---|---|
| 69 Dorchester Avenue | £ 185,000 | 0.01 KM |
| 23 Dorchester Avenue | £ 340,000 | 0.01 KM |
| 11 Dorchester Avenue | £ 625,000 | 0.01 KM |
| 15 Dorchester Avenue | £ 520,000 | 0.01 KM |
| 35 Dorchester Avenue | £ 274,500 | 0.01 KM |