Upper Marlborough Road, St Albans, AL1
By Ashtons
£ 375,000
Reviews
3 out of 5 stars
Ashtons says ..
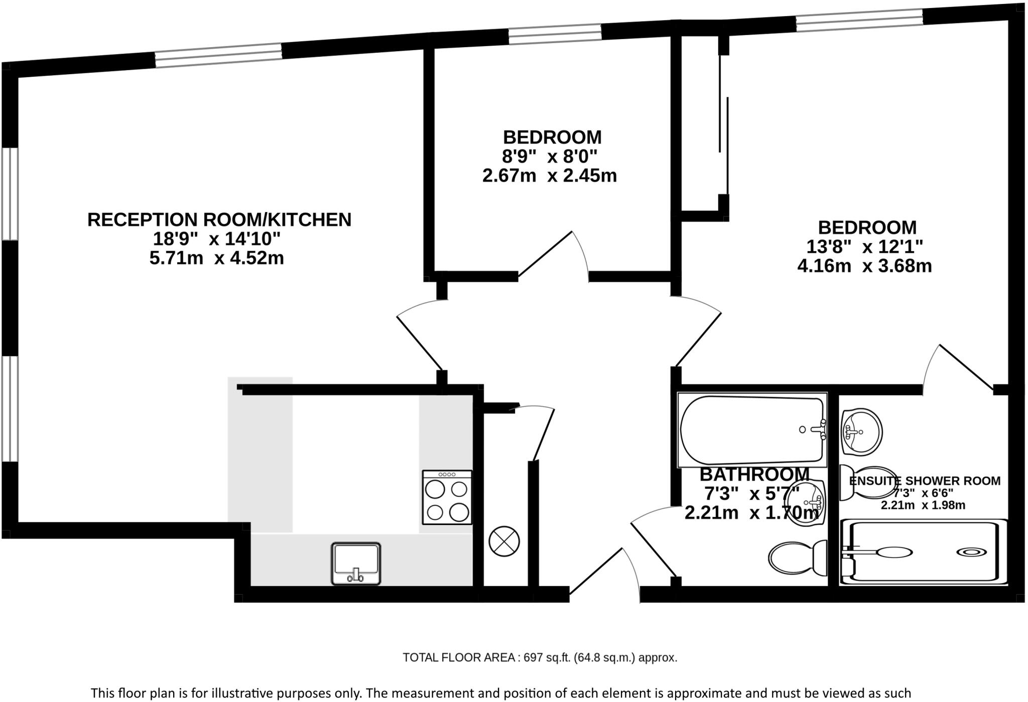
Offered to the market chain-free, this elegant two-bedroom, two-bathroom apartment forms part of a period conversion in the City centre of St Albans, just a few minutes walk from the mainline station.
Property Oracle says ..
This 2-bedroom, 2-bathroom flat is located in the St Peters area of St Albans, Hertfordshire. The property is modern and well presented, with a contemporary kitchen and bathrooms. The flat benefits from a secure allocated parking space. The location is convenient, with good access to local schools, amenities, and transport links. St Albans City train station is within walking distance, providing easy access to London and other parts of the UK. The nearby schools are rated good by Ofsted. The list price of £375,000 is slightly below the average price for the area which is £440,715. However, it is important to note that the average property size in the area is 791 sqft compared to this property at 697 sqft. Considering the modern condition of the property, convenient location and secure parking, the price seems reasonable.
Therefore, we give this property 6 / 10. *Disclaimer: This is our option and does constitute a recommendation or financial advice. Do your own research. *
- Price
- 8
- Condition
- 9
- Location
- 9
- Land
- 1
- Bedrooms
- 2
- Bathrooms
- 2
- Sqft (est)
- 697.00
The heatmap indicates the level of crime in the area. The color of the heatmap indicates the crime severity and recency.
Metrics Year-on-Year
- Average area value
- 488,600.00 £Decreased by 6.01 %
- Est sale value
- 438,413.00 £Increased by 9.01 %
- Average area rental value
- 1,814.00 £/moIncreased by 6.02 %
- Est letting value
- 1,394.00 £/moIncreased by 100.00 %
- Est rental Yield
- 4.46 %Increased by 12.91 %
- Crime Rate
- 14.00 %Unchanged by 0.00 %
Agent Activity
Ashtons created the listing.
Nearby Schools
| Name | Type | Ofsted | Distance |
|---|---|---|---|
| Sa6 St Albans Family Centre | Children's Centre | 0.25 KM | |
| St Albans Independent College | Other Independent School | Good | 0.30 KM |
| Alban City School | Free Schools | Good | 0.36 KM |
| St Peter'S School | Community School | Good | 0.56 KM |
| Maple Primary School | Community School | Good | 0.57 KM |
Images
Nearby Streets
| Name | Average Price | Average Sqft | Distance |
|---|---|---|---|
| Jubilee Square | £ 200,833 | 0 | 0.00 KM |
| St Peter's Road | £ 550,000 | 0 | 0.00 KM |
| Cattle Walk | £ 0 | 0 | 0.00 KM |
| Cross Street | £ 0 | 0 | 0.00 KM |
| Orchard House Lane | £ 0 | 0 | 0.00 KM |
Nearby Transport
| Name | NLC | TLC | Distance |
|---|---|---|---|
| St Albans City | 1548 | SAC | 0.79 KM |
| St Albans Abbey | 1562 | SAA | 1.15 KM |
| Park Street | 1561 | PKT | 2.95 KM |
| How Wood (Hertfordshire) | 1563 | HWW | 3.90 KM |
| Bricket Wood | 1560 | BWO | 5.79 KM |
Nearby Listings
| Address | Price | Type | Score | Distance |
|---|---|---|---|---|
| Upper Marlborough Road, St Albans, AL1 | £ 375,000 | BUY | 6 / 10 | 0.00 KM |
| Upper Marlborough Road, St. Albans, Hertfordshire, AL1 | £ 400,000 | BUY | 5 / 10 | 0.00 KM |
| Upper Marlborough Road, St. Albans | £ 325,000 | BUY | 6 / 10 | 0.01 KM |
| Upper Marlborough Road, St. Albans, Hertfordshire, AL1 | £ 325,000 | BUY | 6 / 10 | 0.02 KM |
| Victoria Street, St Albans, AL1 | £ 350,000 | BUY | Unknown | 0.05 KM |
Nearby Properties
| Address | Price | Distance |
|---|---|---|
| 28 Marlborough Road | £ 700,000 | 0.07 KM |
| 12 Marlborough Road | £ 735,000 | 0.07 KM |
| 14 Marlborough Road | £ 570,000 | 0.08 KM |
| 32 Marlborough Road | £ 470,000 | 0.08 KM |
| 36 Marlborough Road | £ 415,000 | 0.08 KM |